longhujiatianxia
作品详情
  • Details of the work 标题横线
    头像或者logo
    图片 李洪清 华浔品味装饰集团特约推荐
    城市:泉州
    公司: 华浔品味装饰泉州分公司
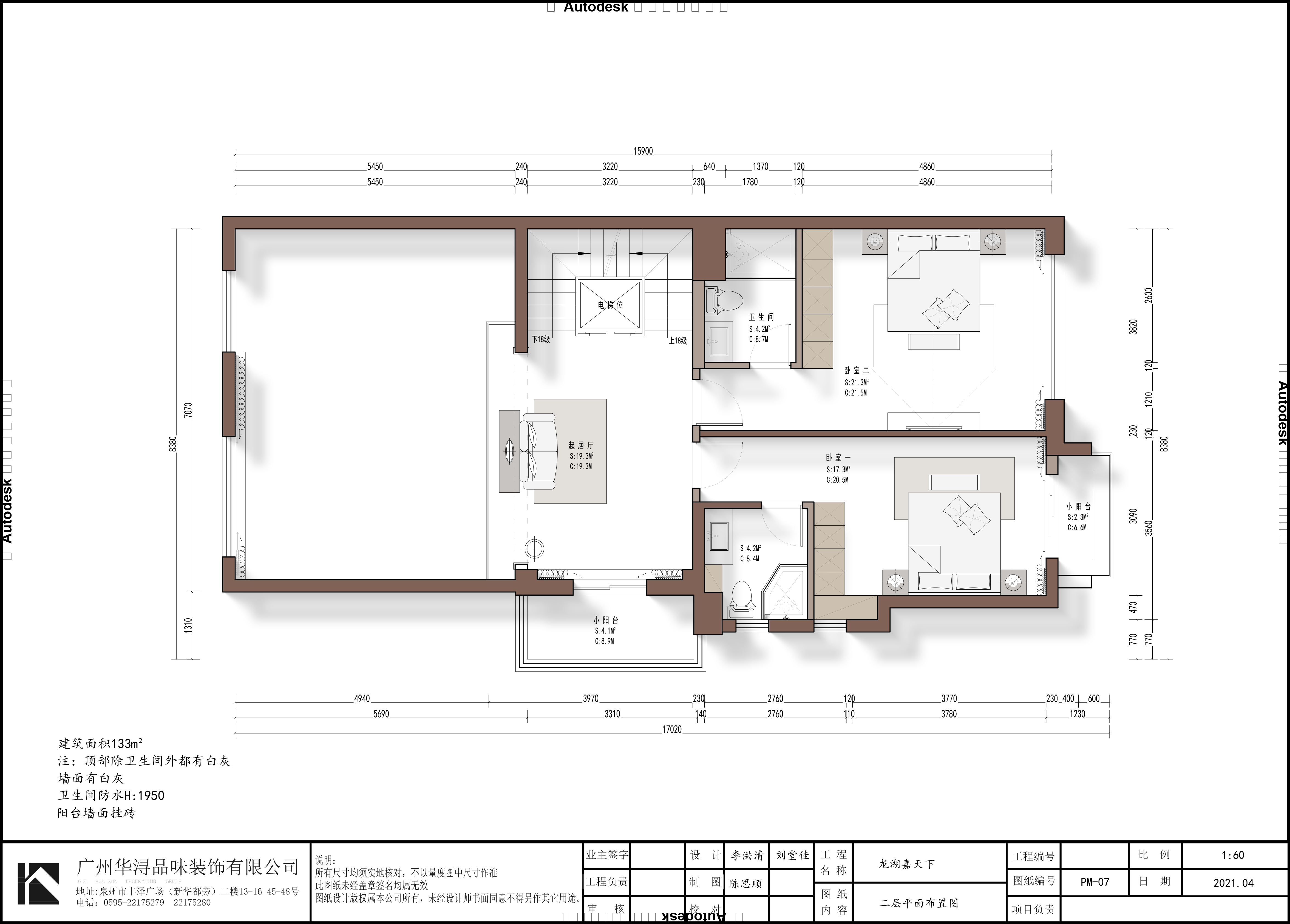
    参赛作品: 龙湖嘉天下
    空间类型:公寓(150㎡以下)
    个人/公司简介:
    李洪清 华浔品味装饰设计总监 全国华浔十佳设计师 空间研究师 黎明大学讲师 丰良(国际)艺术学院讲师 中国杰出青年室内设计师 国家注册高级设计师 CIID室内装饰学会会员 IFDA国际室内设计师协会注册高级设计师 全国住宅装饰优秀设计师 作品多次刊登于各大报刊及设计刊物 十余载设计,荣获多项专业设计大奖
    设计说明 | Design Instruction
  • 设计师:李洪清 小区:龙湖嘉天下 户型:别墅(三层) 面积:450㎡ 造价(不含主材):90万(半包) 主材:护墙板、大理石、岩板、硬包、墙布等 设计说明: 设计师利用岩板大理石与护墙板打造个性淡雅的冷色系别墅空间,入户玄关形成隔而不断的视觉效果,既界定了空间区域,同时具备必要的缓冲与隐私性。 设计师以环绕式沙发打造温馨愉快的会客场景,利用高低差增强视觉上的凹凸感,带来更加立体的层次效应。餐厅区域打造整墙到顶的储物柜,搭配暖光条,储物与展示兼备,美观且实用,大理石餐桌与质感家具相呼应,带来轻奢的就餐体验。 二层空间为业主一家的生活区,沿着设计感十足的楼梯往上,入目即是起居室。两间套房各自配备有独立淋浴间,干湿分离的设计,在简洁之余兼顾实用效率。
  • 图片
  • 图片
  • 图片
  • 图片
  • 图片
  • 图片
  • 图片
  • 图片
  • 图片
  • 图片
  • 图片
  • 图片
  • 图片
  • 图片
  • 图片
  • 图片
  • 图片
  • 图片
  • 图片
  • 图片
  • 图片
  • 图片
  • 图片
  • 图片
  • 图片
  • 图片
  • 图片
  • 图片
  • 图片
  • 图片
  • 图片
  • 图片
  • 上一个 下一个
    《金腾奖优秀作品年鉴》 私宅丨地产丨餐饮丨酒店丨办公丨商业丨公共丨产品丨公益丨人气 jintengAWARD(小金_金腾奖组委会) 广州市海珠区琶洲大道68号华新中心21楼
    金腾奖视频号 金腾奖小红书号 监制:闫虹
    统筹:吴佳佳
    运营:朱倩仪 王赫萱 张芷莹 胡岚恩 小金
    新媒体:王贝贝 严洁 侯乐 鹅姐
    经纪:刘译遥 石征 曹凯月
    技术:张桐 黄天佑
    最终解释权归金腾奖主办方所有