Home, born for a long time
作品详情
  • Details of the work 标题横线
    头像或者logo
    图片 方 聪 华浔品味装饰集团特约推荐
    城市:上饶市
    公司: 上饶华浔品味装饰
    参赛作品: 家,为期许而生
    空间类型:公寓(150㎡以下)
    个人/公司简介:
    高级室内注册设计师 进修于北京清华大学美术学院 中国江西(国际)设计力量协会会员 从事室内设计工作至今15载,曾在广东、江苏、四川等地工作。现就于上饶华浔品味装饰担任设计总监。在上饶紫阳名星广场、奥林至尊、长安府、融辉城、万力时代、友邦壹号公馆、友邦壹号院、滨江棕榈公园壹号、十里风荷及信江府别墅等都有设计作品。室内设计是一个与空间对话的过程,做适合业主的设计才是真正好的设计。 设计理念:设计是一种生活方式,不同的生活方式决定不同的设计思路。自己喜欢并擅长设计风格:现代简约风、新中式、原木简约风、轻法式…… 服务宗旨:对细节把握一定苛刻,对品质追求从不妥协。 用心投入,换位思考,只为赢得每次与客户交流时满意的微笑。
    设计说明 | Design Instruction
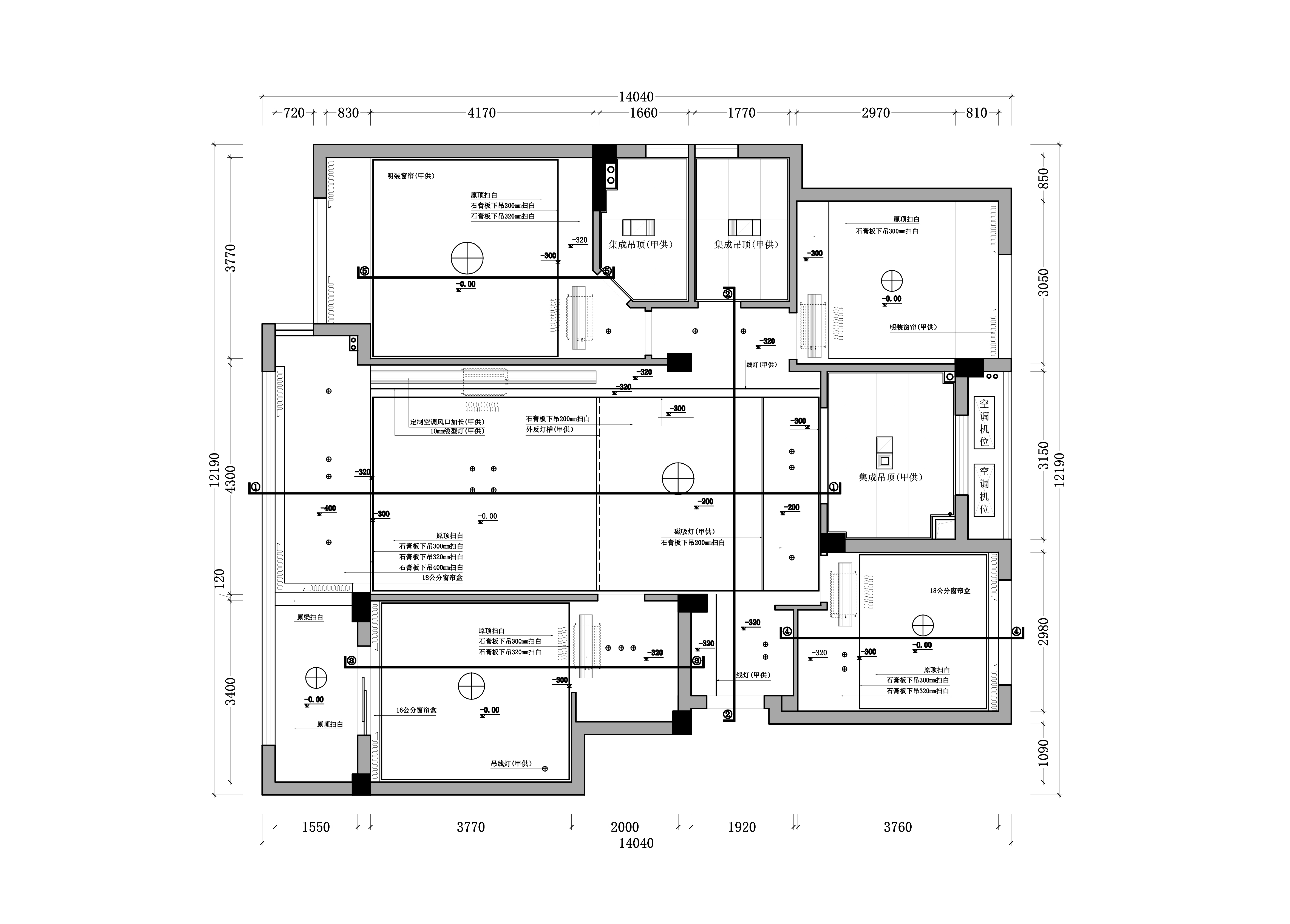
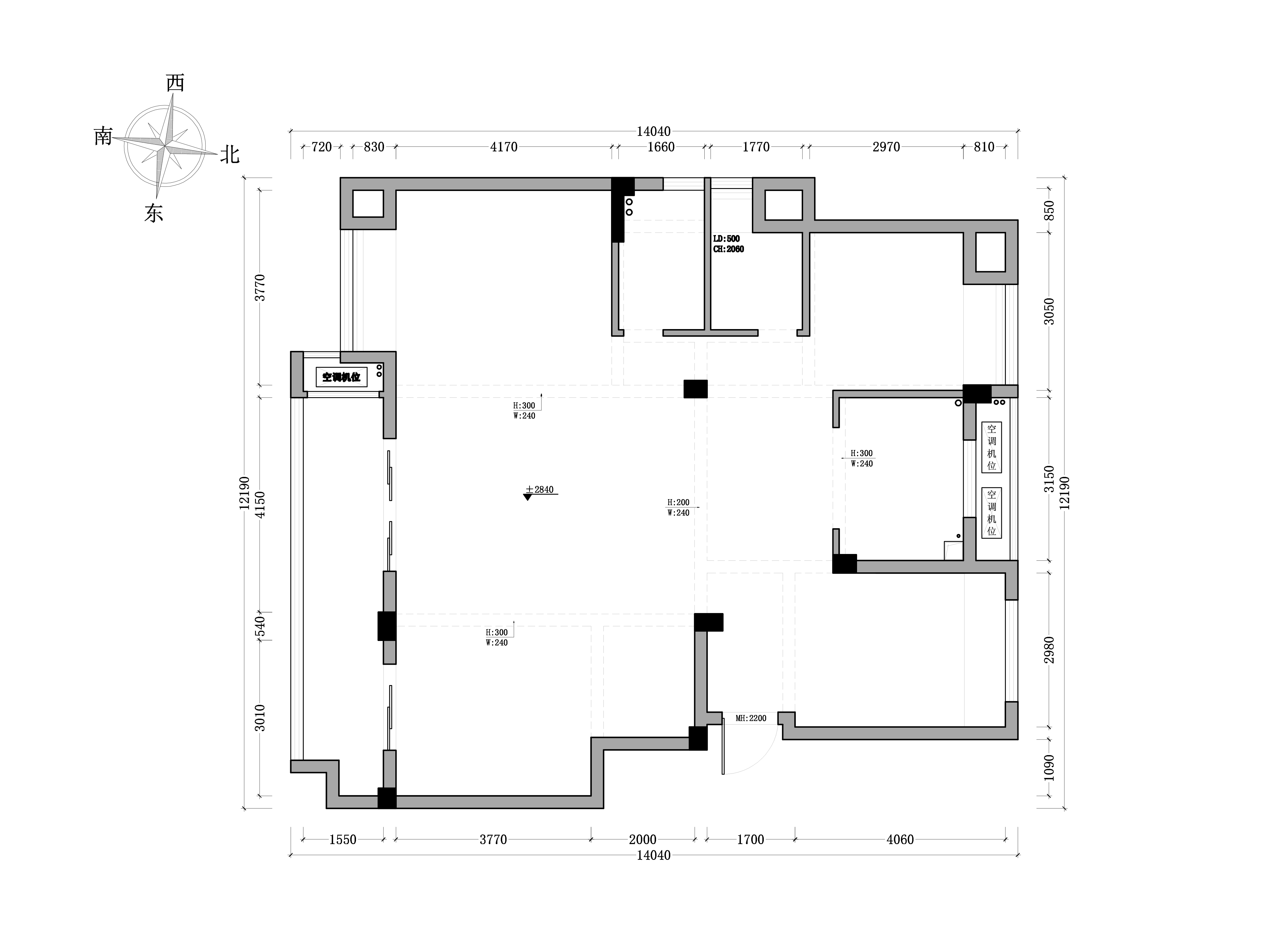
  • 本案例业主选择全案模式,从硬装到软装由设计师全程跟进落地,让家庭装修的琐碎工程变得省心省事。在设计上以拓展空间视野和连通互动为宗旨,强化空间功能使用的舒适和便捷,整体以简约为主线加上有温度的木质材料做主导,让空间简洁不失温暖体现家的治愈和惬意。 客餐厅暖色木地板的映衬,让空间柔和宁静,传递平实单纯的温暖质感。点、线、面的穿插,让空间层次有度,空间软装的留白,让空间的使用自由度大幅提升。整面电视墙做了收纳系统,隐形门的设计让柜体在空间中不显突兀,有藏有露的造型让柜子多元化比表现。开放格区域可用于屋主放置常用书籍,封闭式柜门便把杂物统统掩盖起来,放眼望去,既有简约的造型,又能满足收纳的需求。 业主家小孩4岁,沟通设计时我们选择将一间卧室改造成小孩玩耍的区域,使得孩子在精彩的童年时光里,拥有一个无尽的乐趣源泉和成长的摇篮。这是每个孩子梦寐以求的。希望通过精心的设计与装修,希望这个空间可以成为孩子最喜爱的美好回忆。
  • 图片
  • 图片
  • 图片
  • 图片
  • 图片
  • 图片
  • 图片
  • 图片
  • 图片
  • 图片
  • 图片
  • 图片
  • 图片
  • 图片
  • 图片
  • 图片
  • 图片
  • 图片
  • 图片
  • 图片
  • 图片
  • 图片
  • 图片
  • 图片
  • 图片
  • 图片
  • 图片
  • 图片
  • 图片
  • 图片
  • 图片
  • 上一个 下一个
    《金腾奖优秀作品年鉴》 私宅丨地产丨餐饮丨酒店丨办公丨商业丨公共丨产品丨公益丨人气 jintengAWARD(小金_金腾奖组委会) 广州市海珠区琶洲大道68号华新中心21楼
    金腾奖视频号 金腾奖小红书号 监制:闫虹
    统筹:吴佳佳
    运营:朱倩仪 王赫萱 张芷莹 胡岚恩 小金
    新媒体:王贝贝 严洁 侯乐 鹅姐
    经纪:刘译遥 石征 曹凯月
    技术:张桐 黄天佑
    最终解释权归金腾奖主办方所有