East Bay
作品详情
  • Details of the work 标题横线
    头像或者logo
    图片 陈 诺 华浔品味装饰集团特约推荐
    城市:泉州
    公司: 华浔品味装饰集团
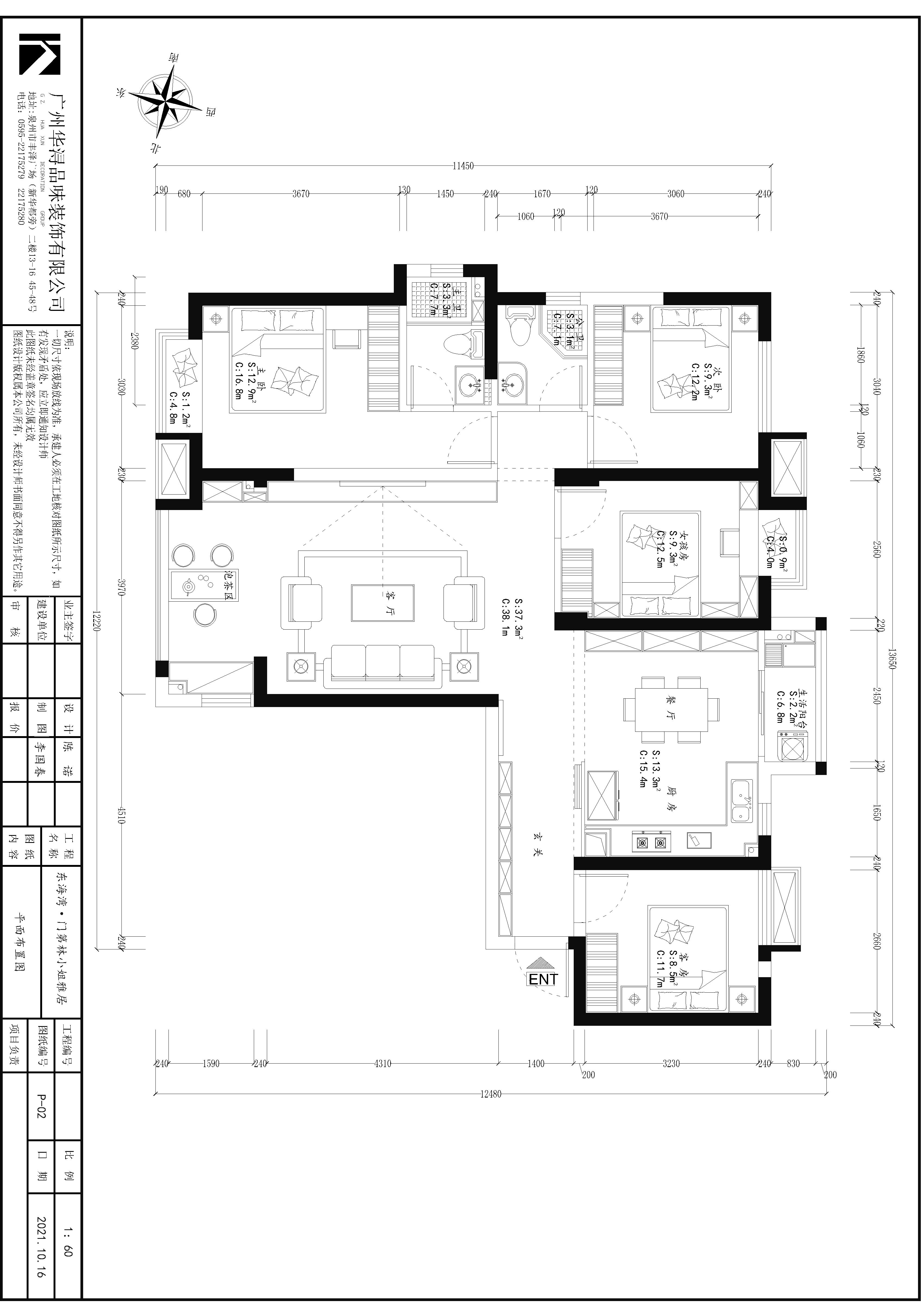
    参赛作品: 东海湾
    空间类型:公寓(150㎡以下)
    个人/公司简介:
    中国室内高级设计师 杭州环境艺术学院 CIID中国建筑学会会员 中国美院高级软装设计师 南京设易学院精英软装设计师 深圳DOMOS高级软装师 2008年获得“厦门海峡导报”室内设计大赛优秀作品奖 2009年获得“厦门室内设计优秀女设计师” 2010年获得“厦门日报”室内设计大赛银奖 2012年被评为厦门家装行业金牌设计师 2015年被评为华浔集团金牌设计师 2017年获得泉州华浔软装设计冠军 2018年获得“碧桂园 .汇悦台杯”设计大赛优胜奖 2019年获得“泉州大区华浔”设计大赛金奖 2020年获得“广州金住奖”“上海中国设计金梁奖” 2021年获得“泉州大区实景奖” 2022年获得“上海中国设计金梁奖” 2023年获得“广州千人设计计划城市代表” 工作经历: 2005年——至今华浔品味装饰集团工作 设计作品: 厦门(巴厘香墅、海峡国际、宝墅湾、鑫海湾、云顶至尊、恒和七尚、爱琴海、总裁行馆、天琴湾、源昌新天地、国贸春天、当代天境、世贸湖滨首府等……) 同安(航空高郡/祥郡、新景上院、古龙御园、公园道一号、银溪春墅、芸溪居住公园等……)样板房。其中一些案例还多次出现装饰书刊、杂志和报纸。 泉州(宝珊花园南溪谷、千亿山庄、新天城市广场、中骏天峰(天璟)、富林天下、御花园、东海泰禾、上实海上海等……) 擅长风格:轻奢、欧式、中式、北欧、现代、混搭 设计理念: 椅子不光要讲究功能,更要创作设计美感。 个人喜好:爬山、旅行、音乐、走小巷研究古建筑
    设计说明 | Design Instruction
  • 本案是一套实景,坐落于东海湾门第,业主喜欢纯粹简约,带有时尚感的空间。在本案的设计中,设计师更多思考人与空间的关系,在热闹中独立,在情绪中包容,在快乐时放肆,在难过时治愈。以温柔而纯粹的配色,让空间多点的“留白”,给家足够的呼吸感与自在感。 在喧嚣中拥一方宁静 在繁杂中觅一处纯粹。 主材说明:微水泥砖、艺术漆、石膏线、整木
  • 图片
  • 图片
  • 图片
  • 图片
  • 图片
  • 图片
  • 图片
  • 图片
  • 图片
  • 图片
  • 图片
  • 图片
  • 图片
  • 图片
  • 图片
  • 图片
  • 图片
  • 图片
  • 图片
  • 上一个 下一个
    《金腾奖优秀作品年鉴》 私宅丨地产丨餐饮丨酒店丨办公丨商业丨公共丨产品丨公益丨人气 jintengAWARD(小金_金腾奖组委会) 广州市海珠区琶洲大道68号华新中心21楼
    金腾奖视频号 金腾奖小红书号 监制:闫虹
    统筹:吴佳佳
    运营:朱倩仪 王赫萱 张芷莹 胡岚恩 小金
    新媒体:王贝贝 严洁 侯乐 鹅姐
    经纪:刘译遥 石征 曹凯月
    技术:张桐 黄天佑
    最终解释权归金腾奖主办方所有