Haishan Number One
作品详情
  • Details of the work 标题横线
    头像或者logo
    图片 熊炜
    城市:顺德
    公司: 华浔品味装饰集团
    参赛作品: 海山一号
    空间类型:公寓(150㎡以下)
    个人/公司简介:
    所属公司:顺德公司熊炜 从业经验:10年经验 擅长风格:轻奢风 新中式 现代 美式 设计理念:设计方式,是对生活的一种更好的诠释
    设计说明 | Design Instruction
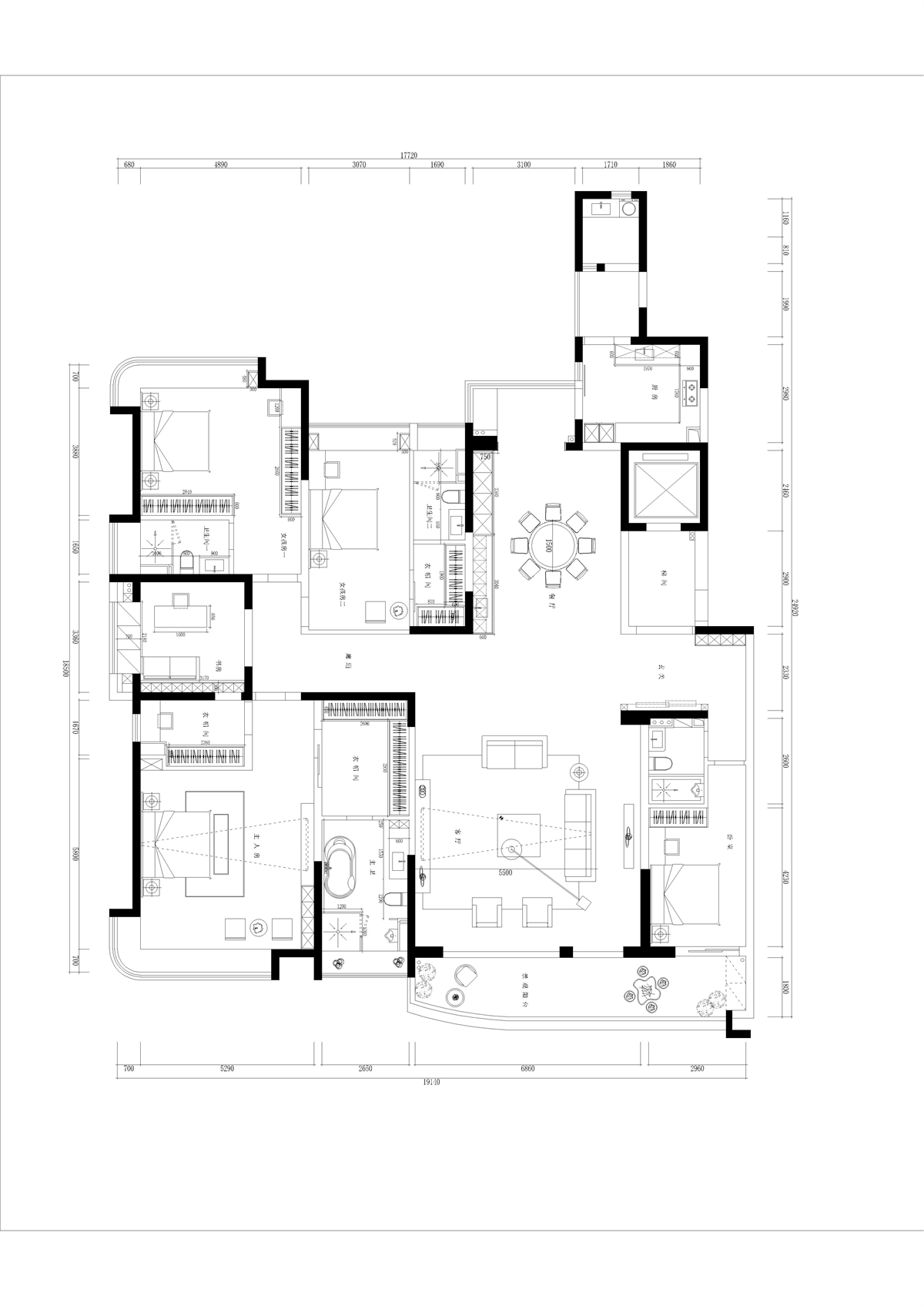
  • 楼盘名称:海山一号 户型:四房两厅四卫 面积:350平米 风格:现代 设计说明:本案为四房两厅四卫一厨室内使用面积300多方的高端住宅,为一五口之家进行设计,突出温馨且不失时尚之感,本案以简洁明亮的 设计风格为主题,全面思考,在总体布局方面,尽量满足五口之家的生活功能需求,主要装饰材料为大板砖,大理石,木饰面以及天花造型为装 饰面,创造明亮且温馨的健康的现代居家环境。
  • 图片
  • 图片
  • 图片
  • 图片
  • 图片
  • 图片
  • 图片
  • 图片
  • 图片
  • 图片
  • 图片
  • 图片
  • 图片
  • 图片
  • 图片
  • 上一个 下一个
    《金腾奖优秀作品年鉴》 私宅丨地产丨餐饮丨酒店丨办公丨商业丨公共丨产品丨公益丨人气 jintengAWARD(小金_金腾奖组委会) 广州市海珠区琶洲大道68号华新中心21楼
    金腾奖视频号 金腾奖小红书号 监制:闫虹
    统筹:吴佳佳
    运营:朱倩仪 王赫萱 张芷莹 胡岚恩 小金
    新媒体:王贝贝 严洁 侯乐 鹅姐
    经纪:刘译遥 石征 曹凯月
    技术:张桐 黄天佑
    最终解释权归金腾奖主办方所有