The Cool Housing for Contemporary New Youth
作品详情
  • Details of the work 标题横线
    头像或者logo
    图片 唐璇 华浔品味装饰集团特约推荐
    城市:南宁市
    公司: 华浔品味装饰
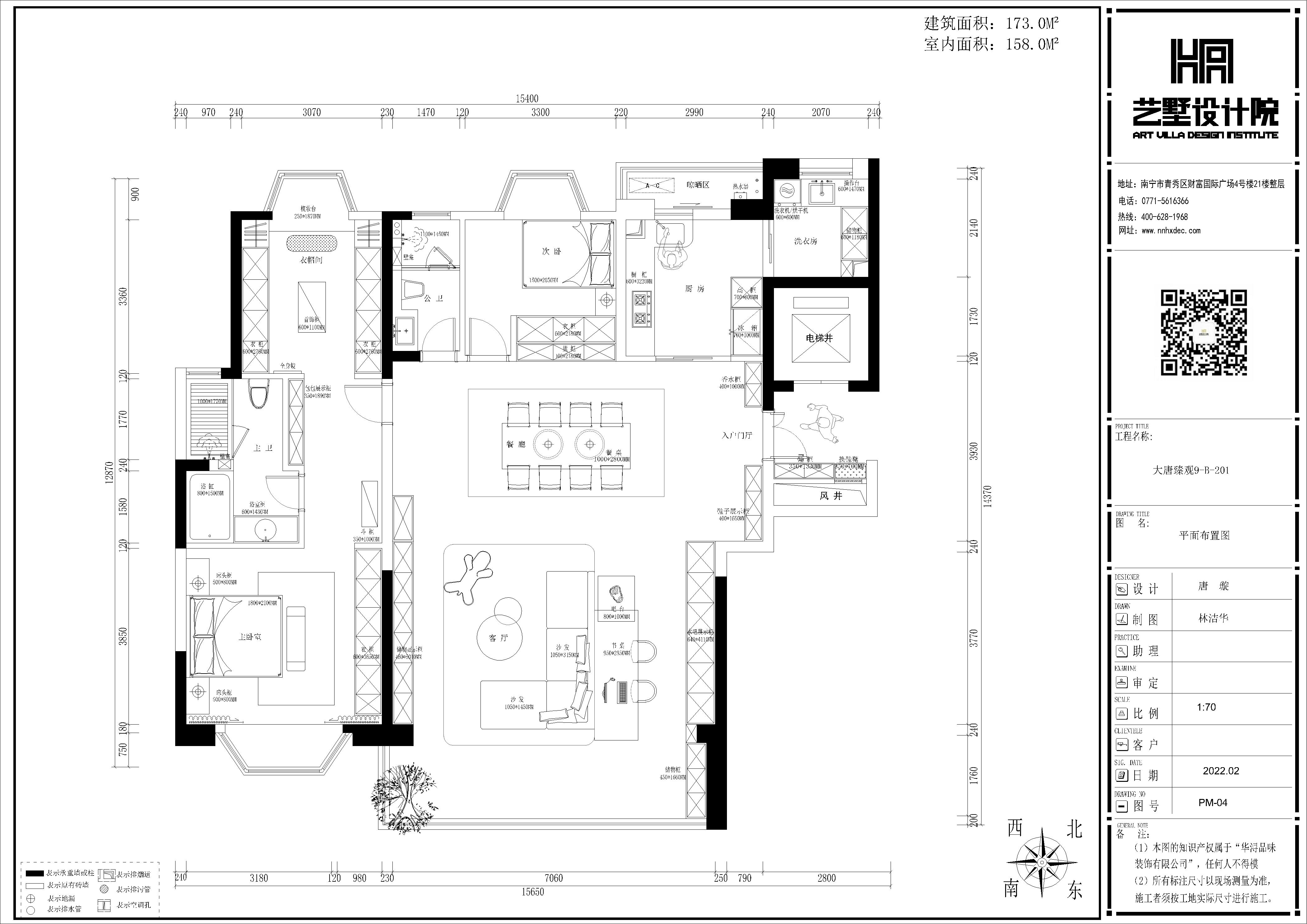
    参赛作品: 当代新青年的玩酷住宅
    空间类型:公寓(150㎡以下)
    个人/公司简介:
    设计总监|唐璇 TONSHINE 设计经验|12年 擅长风格|极简 意式 法式 侘寂 美式 新中式 简约 设计理念:做有责任、有态度、有温度的设计。 设计师说:从社会学来讲,生活也是艺术的需要与基础。比如说,设计一个柜子,这是为生活做设计,但是除了满足柜子的基本功能之外,它还可以设计得更艺术。空间设计也是这样,首先是满足生活的需要,同时,艺术在其中。因为生活艺术美,也是人们的本能的需求,艺术的、美的物品在生活中应用起来会让人更愉悦、更快乐。所以,生活中有艺术,生活更轻松;艺术中有生活,艺术更容易去落地。 楼盘案例:大唐臻观、三祺和顺园、保利冠江墅、绿地中央广场、明秀单位房、广源国际、霖峰壹号、春江明月 所获荣誉 2015年“雨虹杯"第三届金马克室内设计大赛,公共空间设计类(金奖) 2015年“华夏奖”中南地区国际空间环境艺术设计大赛,方案设计空间(金奖) 2015年第六届“IDOL锋范奖”中国广西室内设计总评榜,最具商业价值优秀奖 2015年华浔品味装饰集团“变未来”平面创意大赛优秀奖 2015年第二届“戛迪奖”陈设艺术设计邀请赛,职业组商业空间类优秀奖 2017年“雨虹杯”第四届金马克室内设计大赛,创意效果类优秀奖 2018年 4O UNDER 40 中国(广西)设计杰出青年(2018-2019) 2019设计源 世界观,年度设计公益精英人物 2019中国(南宁)十大居住空间设计师-金住奖 2019获得高级室内设计师证书 2019为生活设计-年度十佳设计师 2019为生活设计-年度别墅大宅类-优秀奖 2019福田杯第十届中国国际空间大赛-入围奖 2020人居中国年度设计精英人物 2021第五届家装产业红鼎创新大赛红鼎风格Top10 2021年第六届金马克室内大赛Top10
    设计说明 | Design Instruction
  • 屋主是一位00后的小姐姐,将5房改2房,整体是灰白调,自带优雅轻奢的质感,这种主色调沉稳舒适,置身于这个空间给人一种悠然自得的心境。利用材料的对比来区分不同的区域,不同肌理的饰面为空间提供了丰富的触感。 设计透过色彩、家具、艺术品等的搭配和布置,调度动线,落实功能。潮牌手办展现生活情趣,空间注重时尚潮流氛围的营造,用艺术的语言表达空间的时髦态度!
  • 图片
  • 图片
  • 图片
  • 图片
  • 图片
  • 图片
  • 图片
  • 图片
  • 图片
  • 图片
  • 图片
  • 图片
  • 图片
  • 图片
  • 图片
  • 图片
  • 图片
  • 图片
  • 图片
  • 上一个 下一个
    《金腾奖优秀作品年鉴》 私宅丨地产丨餐饮丨酒店丨办公丨商业丨公共丨产品丨公益丨人气 jintengAWARD(小金_金腾奖组委会) 广州市海珠区琶洲大道68号华新中心21楼
    金腾奖视频号 金腾奖小红书号 监制:闫虹
    统筹:吴佳佳
    运营:朱倩仪 王赫萱 张芷莹 胡岚恩 小金
    新媒体:王贝贝 严洁 侯乐 鹅姐
    经纪:刘译遥 石征 曹凯月
    技术:张桐 黄天佑
    最终解释权归金腾奖主办方所有