Love and Joy
作品详情
  • Details of the work 标题横线
    头像或者logo
    图片 欧阳君霞 华浔品味装饰集团特约推荐
    城市:南宁市
    公司: 华浔品味装饰
    参赛作品: 爱与乐
    空间类型:公寓(150㎡以下)
    个人/公司简介:
    设计师 |欧阳君霞 JESSIE 擅长风格|现代简约 新中式 轻奢主义 北欧风格... 擅长户型|大平层 复式 loft 跃层 合院 别墅 设计经验|5年 所获荣誉 广西设计力量会员+指导师 广州全案设计落地培训导师 中国装饰协会会员 中国建筑学院会员 华浔集团优秀员工 设计专家 广州特聘色彩搭配设计师 广西2019.20(广州)十大居住空间设计银奖 设计理念:在秩序和逻辑性成立的同时,更注重居住者的内心情感,以人为本。 设计师说:美好生活不在高处,它藏在阳光倾洒的每一个角落,藏在一日三餐、四季更迭中,藏在孩子欢声笑语里,藏在家庭共同成长的记忆里……平凡而珍贵的日常,似乎就是幸福的模样。 空间并非是填充物品的容器,而应是承载情感的场所。对于私宅空间而言,更在实现私密和公共、艺术和实用、理想和现实间微妙的平衡与碰撞。
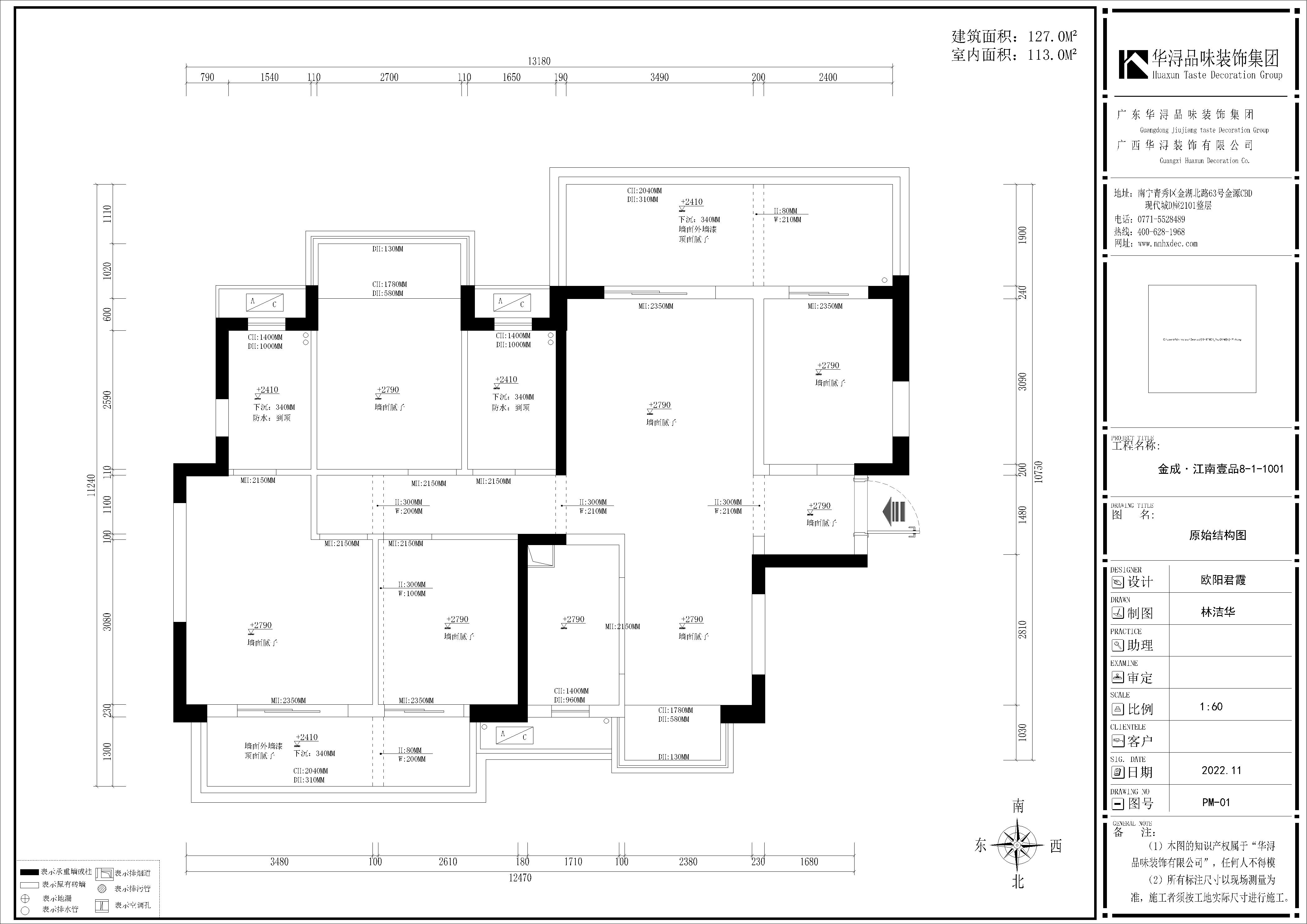
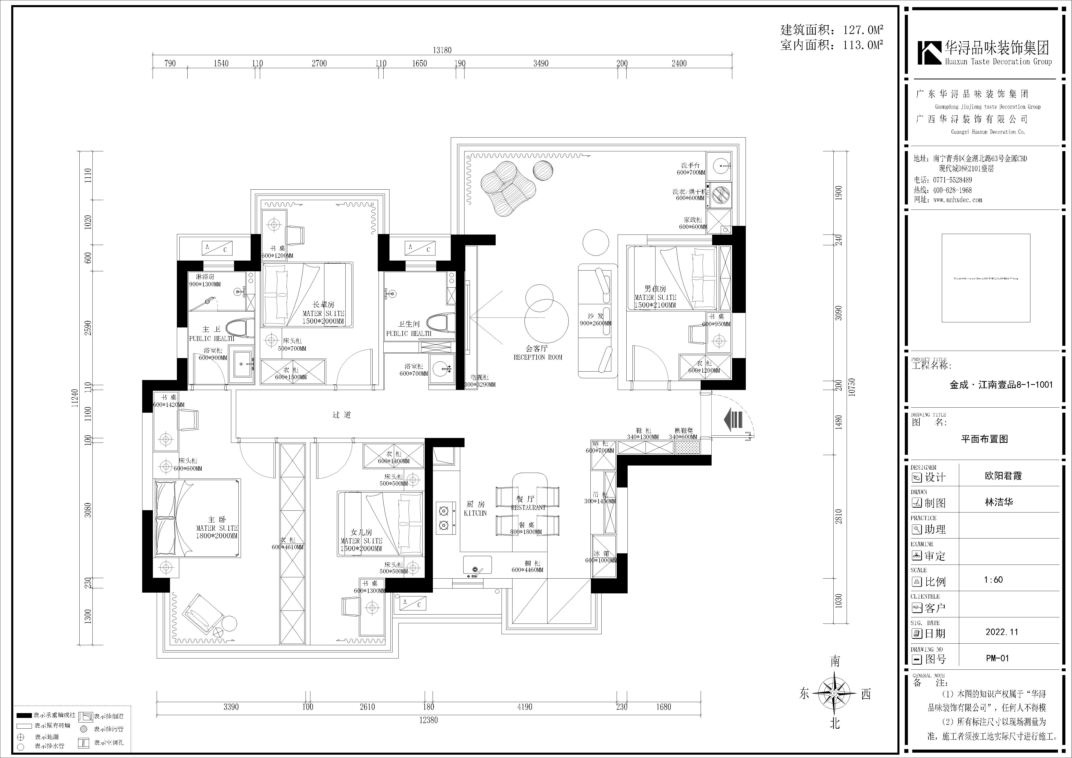
    设计说明 | Design Instruction
  • 本案《爱与乐》是幸福的4口之家,整体硬装简洁大方,开放式厨房设计,让空间看起来更加开阔。这样的设计不仅方便了家庭成员之间的交流,还增添了空间的美观度,当家人围坐在餐桌旁,品尝着美食,享受这温馨的时光,他们也可以欣赏到整个客厅的美丽景色,同时也方便日常清洁和整理,让家庭更加舒适和温馨。
  • 图片
  • 图片
  • 图片
  • 图片
  • 图片
  • 图片
  • 图片
  • 图片
  • 图片
  • 图片
  • 图片
  • 图片
  • 图片
  • 图片
  • 图片
  • 图片
  • 图片
  • 图片
  • 图片
  • 图片
  • 图片
  • 图片
  • 图片
  • 图片
  • 上一个 下一个
    《金腾奖优秀作品年鉴》 私宅丨地产丨餐饮丨酒店丨办公丨商业丨公共丨产品丨公益丨人气 jintengAWARD(小金_金腾奖组委会) 广州市海珠区琶洲大道68号华新中心21楼
    金腾奖视频号 金腾奖小红书号 监制:闫虹
    统筹:吴佳佳
    运营:朱倩仪 王赫萱 张芷莹 胡岚恩 小金
    新媒体:王贝贝 严洁 侯乐 鹅姐
    经纪:刘译遥 石征 曹凯月
    技术:张桐 黄天佑
    最终解释权归金腾奖主办方所有