lvdiguojibolancheng
作品详情
  • Details of the work 标题横线
    头像或者logo
    图片 吴水东&薛翠兰 华浔品味装饰集团特约推荐
    城市:南昌
    公司: 华浔品味装饰南昌分公司
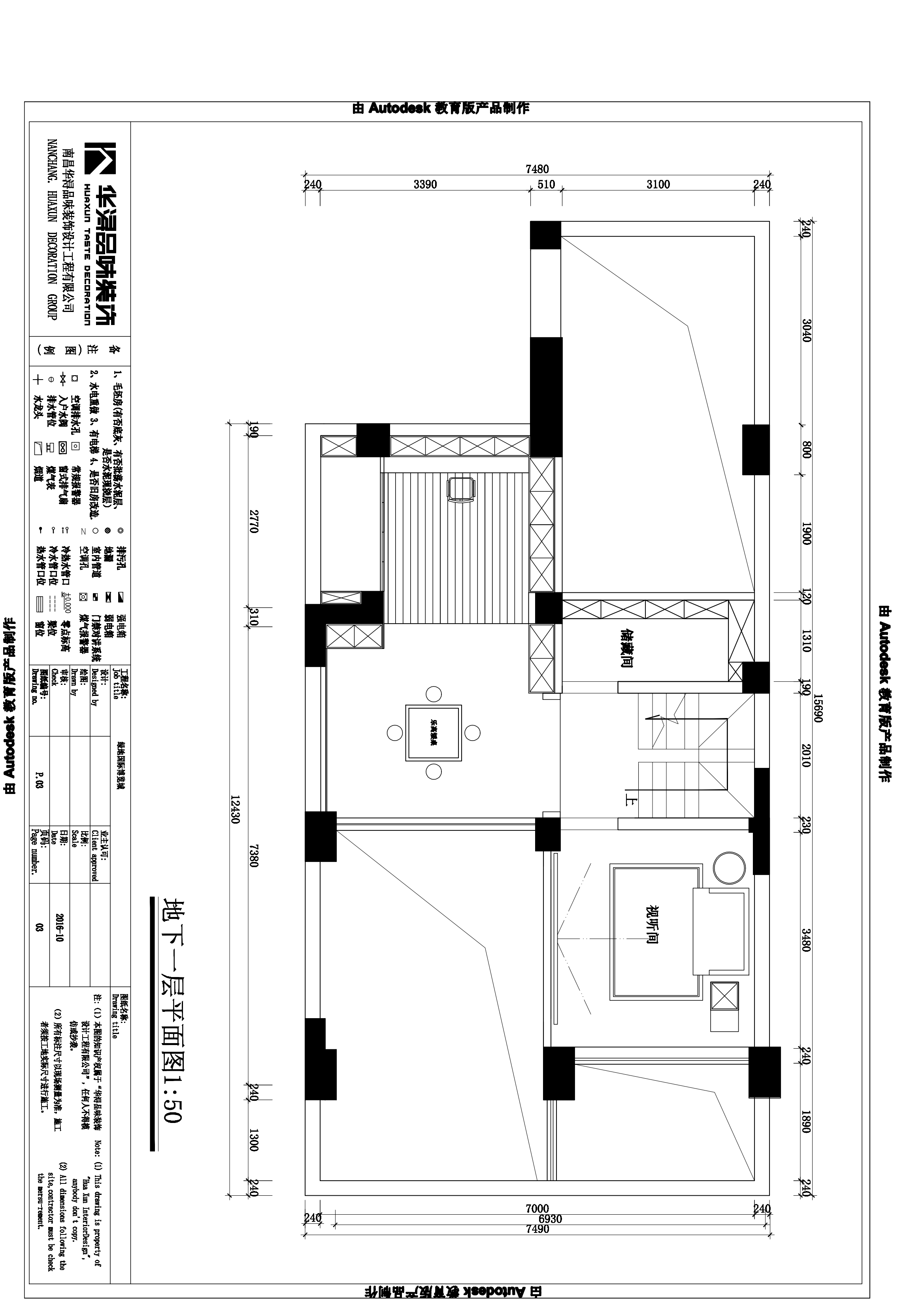
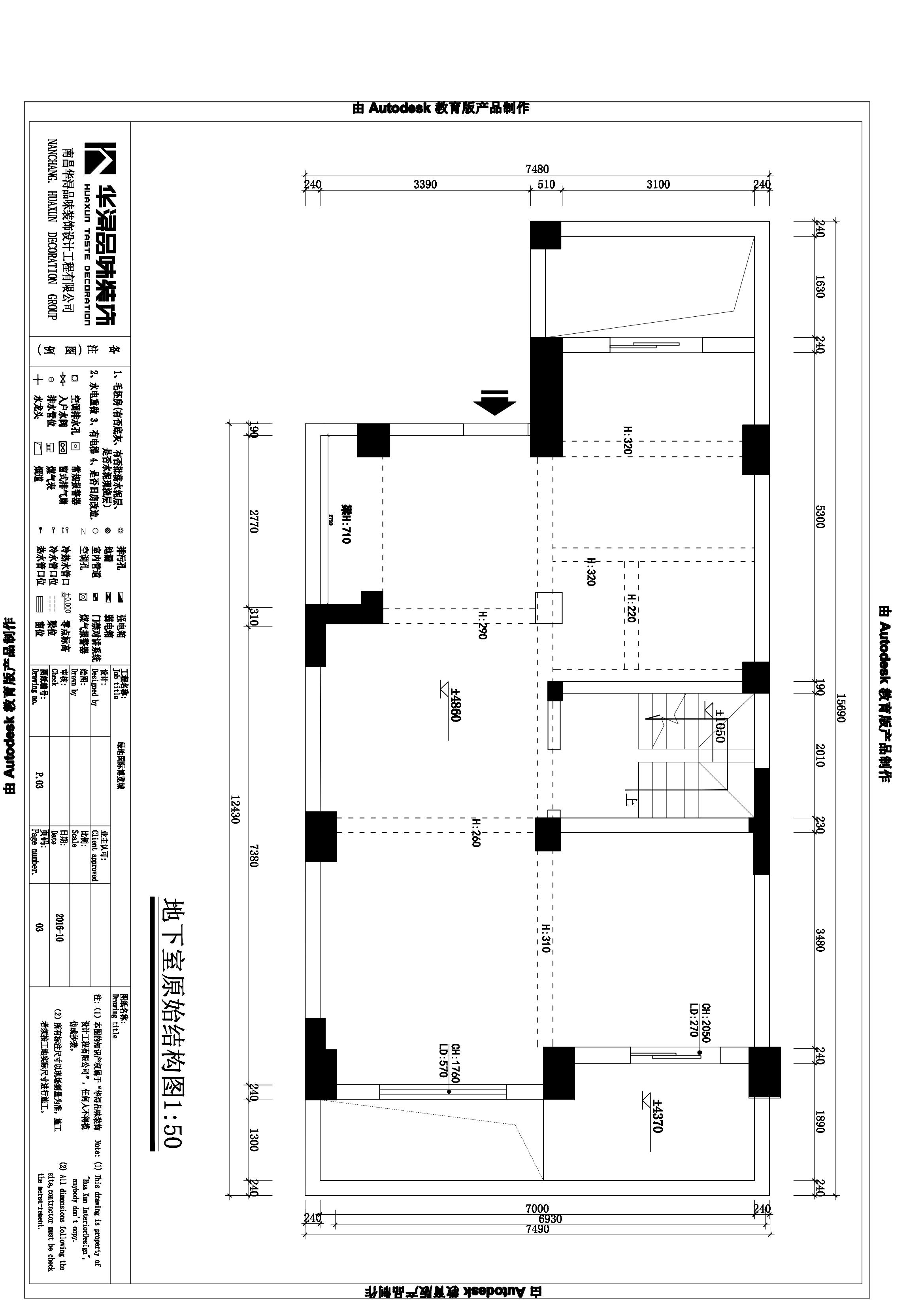
    参赛作品: 绿地国际博览城
    空间类型:公寓(150㎡以下)
    个人/公司简介:
    吴水东 · 高级室内设计师 · 国际设计师协会副秘书长 · 华浔设计协会分会会长 · 华浔运杰商学院设计院副院长 · 先锋软件学院客座教授 · 江西美术学院客座教授 · 1997年 毕业于南昌职业技术师范学院; · 2001年 广东华浔品味装饰总部设计总监; · 2005年 获中国建筑装饰协会授予的"全国优秀设计师”称号; · 2007年 国际设计师协会副秘书长; · 2008年 广东华浔品味装饰(南昌)设计总监; · 2011年 进修清华大学建筑与室内设计高级研修班; · 2012年 作品多次发表在《江西装潢》、等各大权威杂志; · 2013年 广东华浔品味装饰江西大区设计总监; · 2016年 进修 “ 大师工作营 ”精英设计班。 薛翠兰 2000年毕业与浙江纺织职业技术学院建筑装潢专业 2001年广东名匠装饰公司东莞分公司设计师 2002年广东华浔品味装饰公司广州总部设计师 2013年第二届“金马克”杯全国室内设计大赛手绘作品一等奖
    设计说明 | Design Instruction
  • 项目名称:绿地国际博览城 设 计:吴水冬/薛翠兰 建筑面积:290㎡ 项目地址:南昌市 主要材料:LD、蜜蜂瓷砖,新特丽照明,艺术涂料,旧土砖、旧石板 工程施工:华浔品味装饰 念·旧 念旧的人,像拾荒者,将旧时的物一点一点收捡起,珍藏。 念旧的人眼中的老物件,内敛含蓄,落满岁月的尘埃,是时光的味道,朴素而静美;老物件的残缺是沧桑的故事,即使不完美也有着别样的韵味。 念旧的设计师亦是屋主夫妇,他们将空间装饰简约化,用简单的白与深灰、温柔的原木为底色,让各种喜欢的老物件静静而立,来表达老物件流经岁月沉淀的美与现下居住家不期而遇两者之间和谐舒适的氛围。
  • 图片
  • 图片
  • 图片
  • 图片
  • 图片
  • 图片
  • 图片
  • 图片
  • 图片
  • 图片
  • 图片
  • 图片
  • 图片
  • 图片
  • 图片
  • 图片
  • 图片
  • 图片
  • 图片
  • 图片
  • 图片
  • 图片
  • 图片
  • 图片
  • 图片
  • 图片
  • 图片
  • 图片
  • 图片
  • 图片
  • 图片
  • 图片
  • 图片
  • 图片
  • 图片
  • 图片
  • 图片
  • 图片
  • 图片
  • 图片
  • 图片
  • 图片
  • 图片
  • 图片
  • 图片
  • 上一个 下一个
    《金腾奖优秀作品年鉴》 私宅丨地产丨餐饮丨酒店丨办公丨商业丨公共丨产品丨公益丨人气 jintengAWARD(小金_金腾奖组委会) 广州市海珠区琶洲大道68号华新中心21楼
    金腾奖视频号 金腾奖小红书号 监制:闫虹
    统筹:吴佳佳
    运营:朱倩仪 王赫萱 张芷莹 胡岚恩 小金
    新媒体:王贝贝 严洁 侯乐 鹅姐
    经纪:刘译遥 石征 曹凯月
    技术:张桐 黄天佑
    最终解释权归金腾奖主办方所有