shanghecheng
作品详情
  • Details of the work 标题横线
    头像或者logo
    图片 唐浩铭 华浔品味装饰集团特约推荐
    城市:南充
    公司: 华浔品味装饰南充分公司
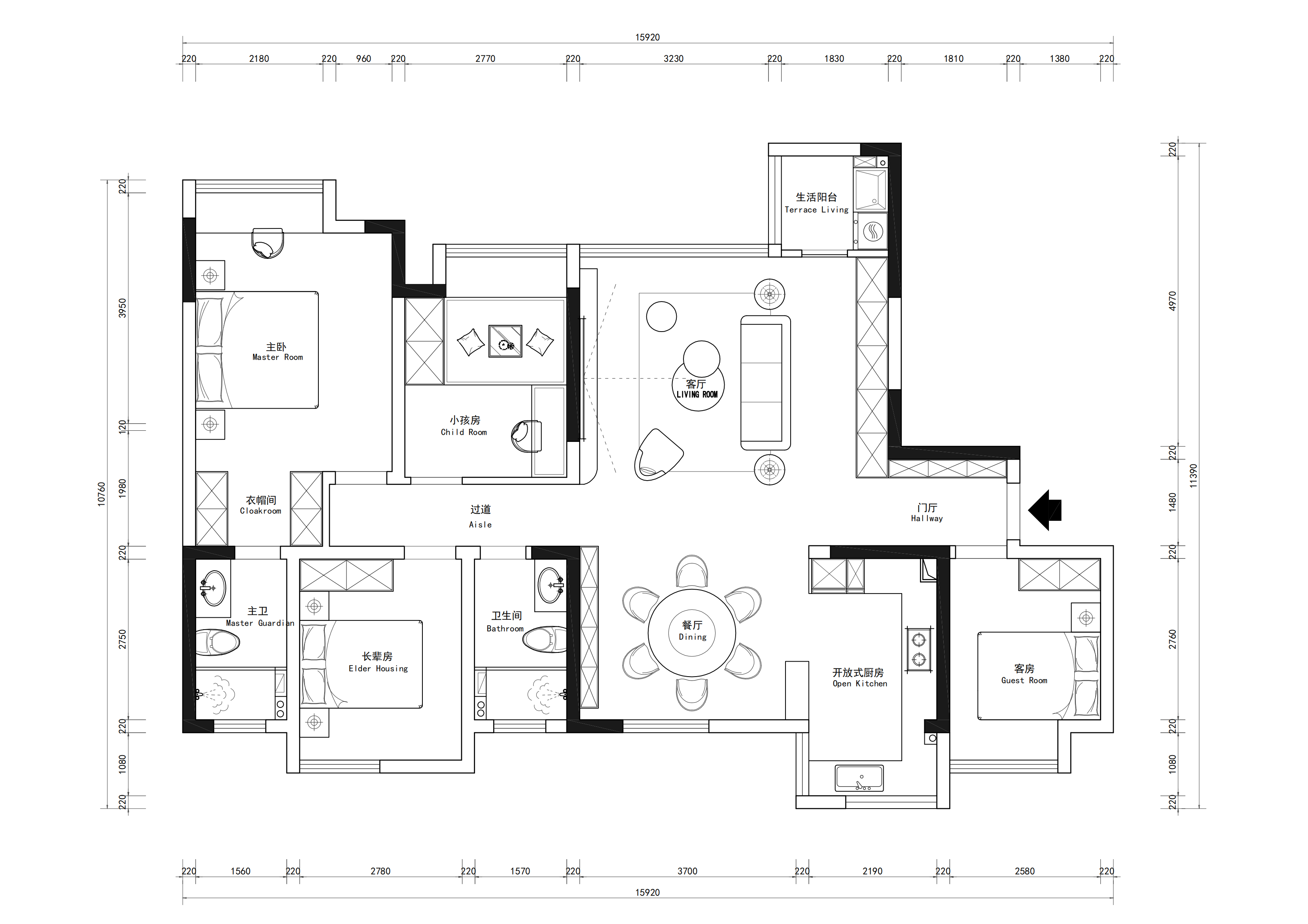
    参赛作品: 上河城
    空间类型:公寓(150㎡以下)
    个人/公司简介:
    姓名:唐浩铭 职务:设计师 从业经验:8年以上 荣获"全国优秀室内设计师"称号 荣获广东省室内设计设计大赛"银奖" 荣获中国设计品牌榜“年度青年榜样设计师” 多年被评为 “最佳设计师”、“优秀设计师”
    设计说明 | Design Instruction
  • 本案空间是一个三代同堂的住宅,自在、宽敞、舒适是业主对家的定义。 设计围绕着空间的明度展开,用结构的手法引导光线在空间中自由布局,用色彩的魔法将自然意象融入其中,木色代表阳光的光晕,黑色作为入夜的黑暗,灰色则为晨曦未出前灰蒙的天空。 在理性的空间中,跳跃的色彩点明重心,空间一扫沉闷,呈现跃动的生命力。
  • 图片
  • 图片
  • 图片
  • 图片
  • 图片
  • 图片
  • 图片
  • 图片
  • 图片
  • 图片
  • 图片
  • 图片
  • 图片
  • 图片
  • 图片
  • 图片
  • 图片
  • 图片
  • 图片
  • 图片
  • 图片
  • 图片
  • 图片
  • 图片
  • 图片
  • 图片
  • 图片
  • 图片
  • 上一个 下一个
    《金腾奖优秀作品年鉴》 私宅丨地产丨餐饮丨酒店丨办公丨商业丨公共丨产品丨公益丨人气 jintengAWARD(小金_金腾奖组委会) 广州市海珠区琶洲大道68号华新中心21楼
    金腾奖视频号 金腾奖小红书号 监制:闫虹
    统筹:吴佳佳
    运营:朱倩仪 王赫萱 张芷莹 胡岚恩 小金
    新媒体:王贝贝 严洁 侯乐 鹅姐
    经纪:刘译遥 石征 曹凯月
    技术:张桐 黄天佑
    最终解释权归金腾奖主办方所有