linggancha
作品详情
  • Details of the work 标题横线
    头像或者logo
    图片 杨恩 华浔品味装饰集团特约推荐
    城市:南充
    公司: 华浔品味装饰南充分公司
    参赛作品: 灵感茶
    空间类型:公寓(150㎡以下)
    个人/公司简介:
    从事室内设计装饰行业7年 ICAD国际商业美术环境艺术高级认证 毕业于四川建筑职业学校 现任广东华浔品味装饰南充分公司设计师
    设计说明 | Design Instruction
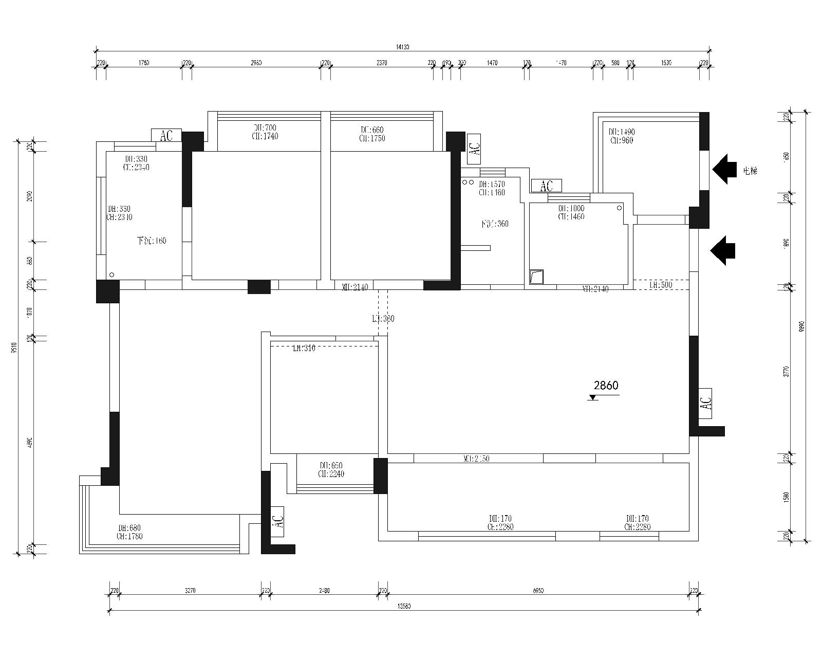
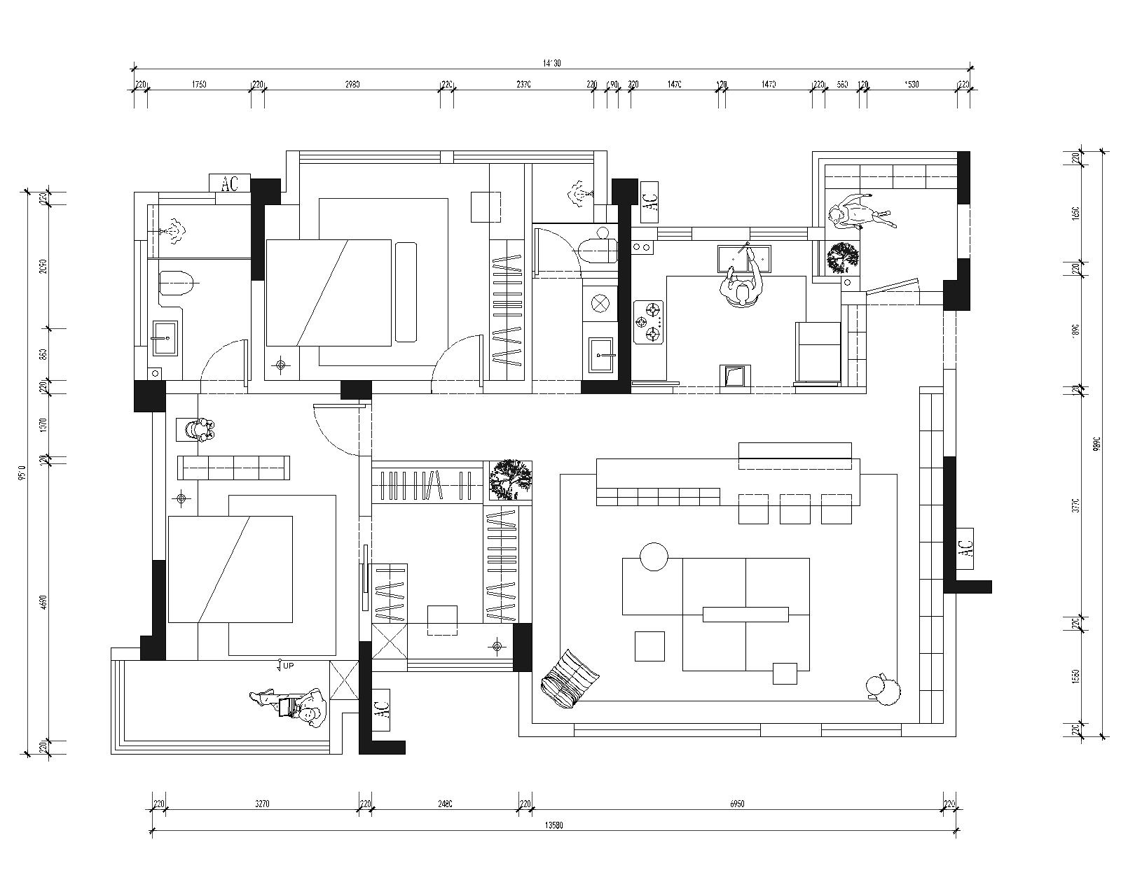
  • 电梯外门厅:进门做出鞋帽间满足实用性收纳,采用对景增添回家仪式感。 内门厅:通过定制柜增加入户收纳同时,让过道不显单调。给人一种由小到大的空间过渡。 厨房:将原来公卫空间合并厨房满足功能需求。 客餐厅:丰富空间动线,增添空间趣味性。大岛台满足朋友较多的娱乐需求。 主次卧:主卧室配套衣帽间打造出卧室独有休闲阳台,次卧室做出大尺寸空间为以后孙孙做考虑。
  • 图片
  • 图片
  • 图片
  • 图片
  • 图片
  • 图片
  • 图片
  • 图片
  • 图片
  • 图片
  • 上一个 下一个
    《金腾奖优秀作品年鉴》 私宅丨地产丨餐饮丨酒店丨办公丨商业丨公共丨产品丨公益丨人气 jintengAWARD(小金_金腾奖组委会) 广州市海珠区琶洲大道68号华新中心21楼
    金腾奖视频号 金腾奖小红书号 监制:闫虹
    统筹:吴佳佳
    运营:朱倩仪 王赫萱 张芷莹 胡岚恩 小金
    新媒体:王贝贝 严洁 侯乐 鹅姐
    经纪:刘译遥 石征 曹凯月
    技术:张桐 黄天佑
    最终解释权归金腾奖主办方所有