Milanquanzhou
作品详情
  • Details of the work 标题横线
    头像或者logo
    图片 熊冠翔
    城市:泉州
    公司: 华浔品味装饰集团
    参赛作品: 米兰泉州设计分院
    空间类型:办公
    个人/公司简介:
    艺墅设计院泉州分院院长 清华大学陈设艺术设计专业 IAAPC国际注册设计师
    设计说明 | Design Instruction
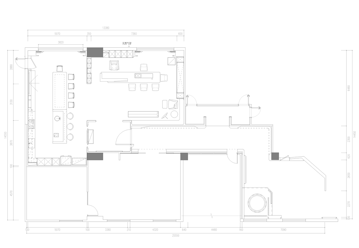
  • 扬帆起航 本案以“扬帆起航,精益求精”为设计主题。 “帆”形LOGO形象墙矗立在山水、绿植当中,营造出一个“母港”的即视感。 以“船身”形体而打造的立体过道,通过过道仿若登“船”一般,增强步入仪式感。 悬浮状的泡茶工作台融入鱼缸、海景壁画,犹如一艘“航空母舰”在浩瀚的大海里航行。 西厨与洽谈桌相结合,在增强生活体验感的同时营造出轻松愉快的签约氛围。
  • 图片
  • 图片
  • 图片
  • 图片
  • 图片
  • 图片
  • 图片
  • 图片
  • 图片
  • 图片
  • 图片
  • 图片
  • 图片
  • 图片
  • 图片
  • 图片
  • 图片
  • 图片
  • 图片
  • 图片
  • 图片
  • 图片
  • 图片
  • 图片
  • 图片
  • 图片
  • 图片
  • 图片
  • 图片
  • 图片
  • 图片
  • 图片
  • 图片
  • 图片
  • 图片
  • 图片
  • 图片
  • 图片
  • 图片
  • 图片
  • 图片
  • 图片
  • 图片
  • 图片
  • 图片
  • 图片
  • 上一个 下一个
    《金腾奖优秀作品年鉴》 私宅丨地产丨餐饮丨酒店丨办公丨商业丨公共丨产品丨公益丨人气 jintengAWARD(小金_金腾奖组委会) 广州市海珠区琶洲大道68号华新中心21楼
    金腾奖视频号 金腾奖小红书号 监制:闫虹
    统筹:吴佳佳
    运营:朱倩仪 王赫萱 张芷莹 胡岚恩 小金
    新媒体:王贝贝 严洁 侯乐 鹅姐
    经纪:刘译遥 石征 曹凯月
    技术:张桐 黄天佑
    最终解释权归金腾奖主办方所有