lvchengyunqimeiguiyuan
作品详情
  • Details of the work 标题横线
    头像或者logo
    图片 何菲 华浔品味装饰集团特约推荐
    城市:南京
    公司: 华浔品味装饰集团(南京店)
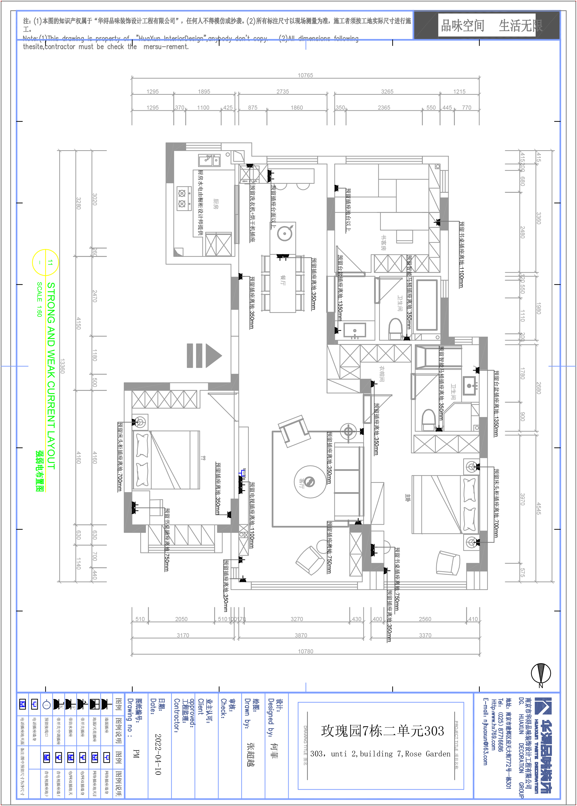
    参赛作品: 绿城云栖玫瑰园
    空间类型:公寓(150㎡以下)
    个人/公司简介:
    何菲 南京华浔设计总监 金马克室内设计奖。 「代表案例」 鲁能七号、融侨观邸、绿城玫瑰园、保利紫晶山、保利梧桐语、 景枫你山、锦绣天玺、泊云间、苏宁睿城等。
    设计说明 | Design Instruction
  • 现代简约:保留两个卧室,书房做地台式设计,过道纳入主卧衣帽间最大化利用空间,阳台去掉移门整体开阔流畅。设计上讲究实用性,追求材料、技术、空间的表现。原木色的木地板给起居增添了一丝暖意,铺满阳光的飘窗,归纳得当的玄关柜格调十足,细节之处品味尽显采用墙板以及无主灯的设计相互结合打造一个时尚舒适的空间,给人一种清逸淡雅的生活气息
  • 图片
  • 图片
  • 图片
  • 图片
  • 图片
  • 图片
  • 图片
  • 图片
  • 图片
  • 图片
  • 图片
  • 图片
  • 图片
  • 图片
  • 图片
  • 图片
  • 图片
  • 图片
  • 图片
  • 图片
  • 图片
  • 图片
  • 图片
  • 图片
  • 图片
  • 图片
  • 图片
  • 图片
  • 图片
  • 上一个 下一个
    《金腾奖优秀作品年鉴》 私宅丨地产丨餐饮丨酒店丨办公丨商业丨公共丨产品丨公益丨人气 jintengAWARD(小金_金腾奖组委会) 广州市海珠区琶洲大道68号华新中心21楼
    金腾奖视频号 金腾奖小红书号 监制:闫虹
    统筹:吴佳佳
    运营:朱倩仪 王赫萱 张芷莹 胡岚恩 小金
    新媒体:王贝贝 严洁 侯乐 鹅姐
    经纪:刘译遥 石征 曹凯月
    技术:张桐 黄天佑
    最终解释权归金腾奖主办方所有