经济舱烧烤CLUB
作品详情
  • Details of the work 标题横线
    头像或者logo
    图片 张真
    城市:郑州
    公司: 赤梁设计Studio
    参赛作品: 经济舱烧烤CLUB
    空间类型:民宿
    个人/公司简介:
    2021法国双面神 GPDP AWARD TOP100 | 国际影响力创新设计师 Economy Class BBQ CLUB 项目荣获2021法国GPDP AWARD | 国际创新奖 2021亚太设计Asia-Pacific Union of Space| 新锐设计师 2022年日本IDPA AWARD国际先锋设计大奖 金奖 2022 KAPOKDESIGN AWARDS | 中国红棉设计奖 2023 中国设计星全国12强 2022年IHDA人居设计奖 中部十大新锐设计师
    设计说明 | Design Instruction
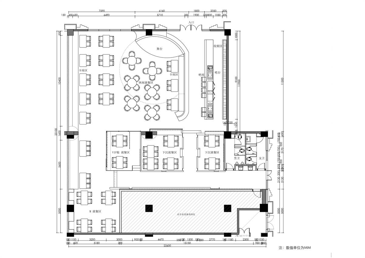
  • 宇宙间万事万物都是迂回曲折,从来不走直线。—— 爱默生:《社会和孤独、工作与时日》 当农业金属击碎了世俗的条条框框,一个新的时代即将到。项目位于河南原阳,经济舱烧烤CLUB 经济舱意为创造条件飞向想要的未来,隐含较高性价比提供餐品服务。 招牌|我们通过招牌门头采取更微妙的事物并使它们变大足以让人们看到”——即建筑如何绘制隐含的边界并构建我们之间的关系这一概念。通过立体体块及灯光吸引人流。 元素|采用弧,线性,圆,禅意灯具 等相关的构件,贯穿融合,呼应未来与传统,回到对宇宙对未来最初的遐想之中。 舞台元素|悬浮在舞台区的圆形吊顶,贯穿舞台与就餐区通过顶与地的区域划定,使进入者更具浸入式体验感。 下沉就餐区|在较为单调的平层开阔空间制造空间层次错位,使身体感官产生空间上与下的空间变换,进入空间节奏,让体验感丰富达到较大值 VIP舱就餐区|丰富空间,通过建筑体块强调VIP舱区域,制造仪式感,使就餐场景更具多样性与满足多种客户需求。 M就餐区|沉浸式就餐区域营造,同材质高频率的包裹性,使其空间相对更静谧感 实验性质|岩浆墙面的模拟处理对整个项目来讲是非常关键的一点,设计媒介与工艺之间的实验与探索对于赤梁是其进步的重要一环,如何将实验性质融入空间氛围将是赤梁要进一步思考与探索。 情景模拟|为满足项目运营需求,此次项目灯光为不同时间段及情景可调节多种模式,迷失与温暖之间的空间表情切换
  • 图片
  • 图片
  • 图片
  • 图片
  • 图片
  • 图片
  • 图片
  • 图片
  • 图片
  • 图片
  • 图片
  • 图片
  • 图片
  • 图片
  • 图片
  • 图片
  • 图片
  • 图片
  • 图片
  • 图片
  • 图片
  • 图片
  • 图片
  • 图片
  • 图片
  • 图片
  • 图片
  • 图片
  • 图片
  • 图片
  • 图片
  • 图片
  • 图片
  • 图片
  • 上一个 下一个
    《金腾奖优秀作品年鉴》 私宅丨地产丨餐饮丨酒店丨办公丨商业丨公共丨产品丨公益丨人气 jintengAWARD(小金_金腾奖组委会) 广州市海珠区琶洲大道68号华新中心21楼
    金腾奖视频号 金腾奖小红书号 监制:闫虹
    统筹:吴佳佳
    运营:朱倩仪 王赫萱 张芷莹 胡岚恩 小金
    新媒体:王贝贝 严洁 侯乐 鹅姐
    经纪:刘译遥 石征 曹凯月
    技术:张桐 黄天佑
    最终解释权归金腾奖主办方所有