朝昏看开落 一笑小窗中
作品详情
  • Details of the work 标题横线
    头像或者logo
    图片 周王涛 宁波市室内设计师协会特约推荐
    城市:余姚
    公司: 北京嘉和日盛装饰余姚分公司
    参赛作品: 朝昏看开落 一笑小窗中
    空间类型:公寓(150㎡以下)
    个人/公司简介:
    王侯千古盛,涛滔君子声。我是周王涛,一名来自宁波的 90 后设计师。 生活需要沉淀,设计需要思考。我习惯于从电影中找到一个静止的空间图像,将它打 乱、重组、拼凑,在脑海中形成一个新的影像。讨厌被束缚而又习惯于挑战自我,这大概 就是我不同于他人之处。 从初入设计行业的青涩少年,蜕变到现在的实力小生。我始终牢记前辈教导的话:“一 步之遥、步步难熬。”扎实的基本功,独到的审美,经验的沉淀,生活的思考。如果要配得 起设计师三个字,这是我的必经路。 艺术来源于生活,也将回归于生活,我是设计师周王涛。为你平凡的家注入不平凡的灵 魂。
    设计说明 | Design Instruction
  • 《朝昏看开落,一笑小窗中 》 儿时的乡间小院儿,一簇簇橙黄柿在风中肆意摇曳,打 谷场上金黄的稻谷堆成了山,三五孩童在木槿丛中蹦来窜 去。 多年以后,当他们有了爱的结晶,有了自己的小家,幸 福从儿时的自由自在追忆回了现在。章丹橙与木槿紫的相 遇,就像他们的爱情那般浓烈------- 英英木槿花,振振蜉蝣羽。玄关处那一束暖橙,是木格栅 墙上的一抹斜阳。一桌一画一花,教书匠的浪漫,在自由、 创造、积极的视觉空间里,写下了一首静雅的诗。 南向的待客之厅,一张沙发倚在雀蓝的哑光墙上,皮质 的沙发,碧亮的茶几,衬得地砖格外明丽。灯光落在了厅台, 瓶中的绿枝条在风里摇,你捧着书低头不语,我看着你时时 欢喜。 秋来霜露满园冬,餐厅小食热烘烘。高雅的小餐厅,总 是那么不动声色地令人沉醉。曲线流畅的餐椅,交织变换的 空间线条,搭配着曼妙的心情,煎炒烹炸,何不共享这人间 的绝色美味。 主卧 朝昏看开落,一笑小窗中,今晚的月色真是迷人。那般 不落俗套的,恰好一束圆灯垂下。紫白面墙,平顶四方,墨 灰床柜,高雅、开朗两相宜,据说有让人回忆起春天或是儿 时趣事的感觉。 儿童房 当大手牵着小手,嬉戏打闹的声音在屋里回荡。“亲爱 的孩子,年幼的你画下人生中第一幅涂鸦画,我把它别在墙 头,那是满满的惊喜与感动。你在你的小帐篷里思考宇宙的 秘密,在这个温柔的小世界,爸爸妈妈永远爱你。” ——妈妈的话 书房: 北窗高卧,以墨添香,垂帘洋洋洒洒,键盘声滴滴答 答……书柜与翻板床的结合,别有洞天。沉迷工作无法自拔, 夜深人静,不愿打扰妻儿,何不小憩几会儿。 卫浴间: 夜幕骑着清风姗姗而来,湿润的空气使灵魂自由。黑白 相间的流水石砖,错落有致的镶嵌在墙壁上。打开你的天猫 精灵,放上一曲轻音乐,花洒从丝发沐浴到心头,卸下满身 的疲惫,此时的你置身这样的卫浴间,一定很舒适吧。 从孩提到暮年,我们每个人心中都有对“家”的渴望与 幻想,它关乎友情、关乎爱情、关乎亲情。朝昏看开落,一 笑小窗中,愿你所爱之人,此刻正在你身边…… 我是设计师周王涛,我来写你的故事。
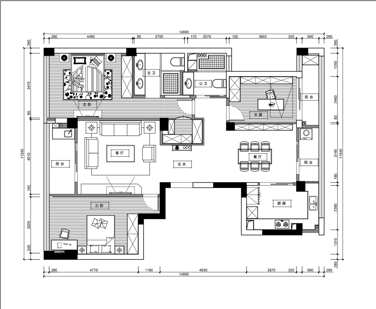
  • 图片
  • 图片
  • 图片
  • 图片
  • 图片
  • 图片
  • 图片
  • 图片
  • 图片
  • 图片
  • 图片
  • 图片
  • 图片
  • 图片
  • 图片
  • 图片
  • 上一个 下一个
    《金腾奖优秀作品年鉴》 私宅丨地产丨餐饮丨酒店丨办公丨商业丨公共丨产品丨公益丨人气 jintengAWARD(小金_金腾奖组委会) 广州市海珠区琶洲大道68号华新中心21楼
    金腾奖视频号 金腾奖小红书号 监制:闫虹
    统筹:吴佳佳
    运营:朱倩仪 王赫萱 张芷莹 胡岚恩 小金
    新媒体:王贝贝 严洁 侯乐 鹅姐
    经纪:刘译遥 石征 曹凯月
    技术:张桐 黄天佑
    最终解释权归金腾奖主办方所有