MODREN TIMES
作品详情
  • Details of the work 标题横线
    头像或者logo
    图片 张立
    城市:武汉
    公司: 独立设计师
    参赛作品: 摩登时代
    空间类型:公寓(150㎡以下)
    个人/公司简介:
    独立设计师
    设计说明 | Design Instruction
  • 在表现面对江景的住宅精神下,我们希望讲朝阳下江景,绿植,阳光的印象延续至室内场景,因此空间中主要大面积呈现场域精神。以赖特对空间周围环境的重视与尊重的理念,地坪则已经典的现代主义手法清水混凝土饰面,结合墙面与顶面贯穿的木饰面与环境造就尊重自然,学院,雅奢的现代人文居住理念。 基本上,我们希望的这个场域的空间精神像是对当代现代主义建筑的重温,通过现代主义建筑的特点运用,实现住宅的特点与建筑的重叠。简单的材质,中性的色彩,完善的功能,与众不同的形式,机能感强的家私,让空间画面传递平和稳定的情绪,而这些材质的共通性强调触感与肌理,朴实无华。透过材质传递永恒的经典,也一如密斯.凡.德.罗,少即是多,细节就是上帝。 表现形式上,主张抽象和纯朴,外形上缩减到几何形状,摒弃曲线或随性的形体造型。透过精准的平面,直线,矩形的模数化造型来达到设计上的视觉平衡。就犹如客厅背景墙的构成灵感便来自于柯布西耶的红蓝尺模数化黄金比例数据,在构图中创造稳定而富有美感的形式。大理石的运用也将光有情绪节奏的导入空间中央。顺应光的方向木饰面的导入增加了空间的节奏。
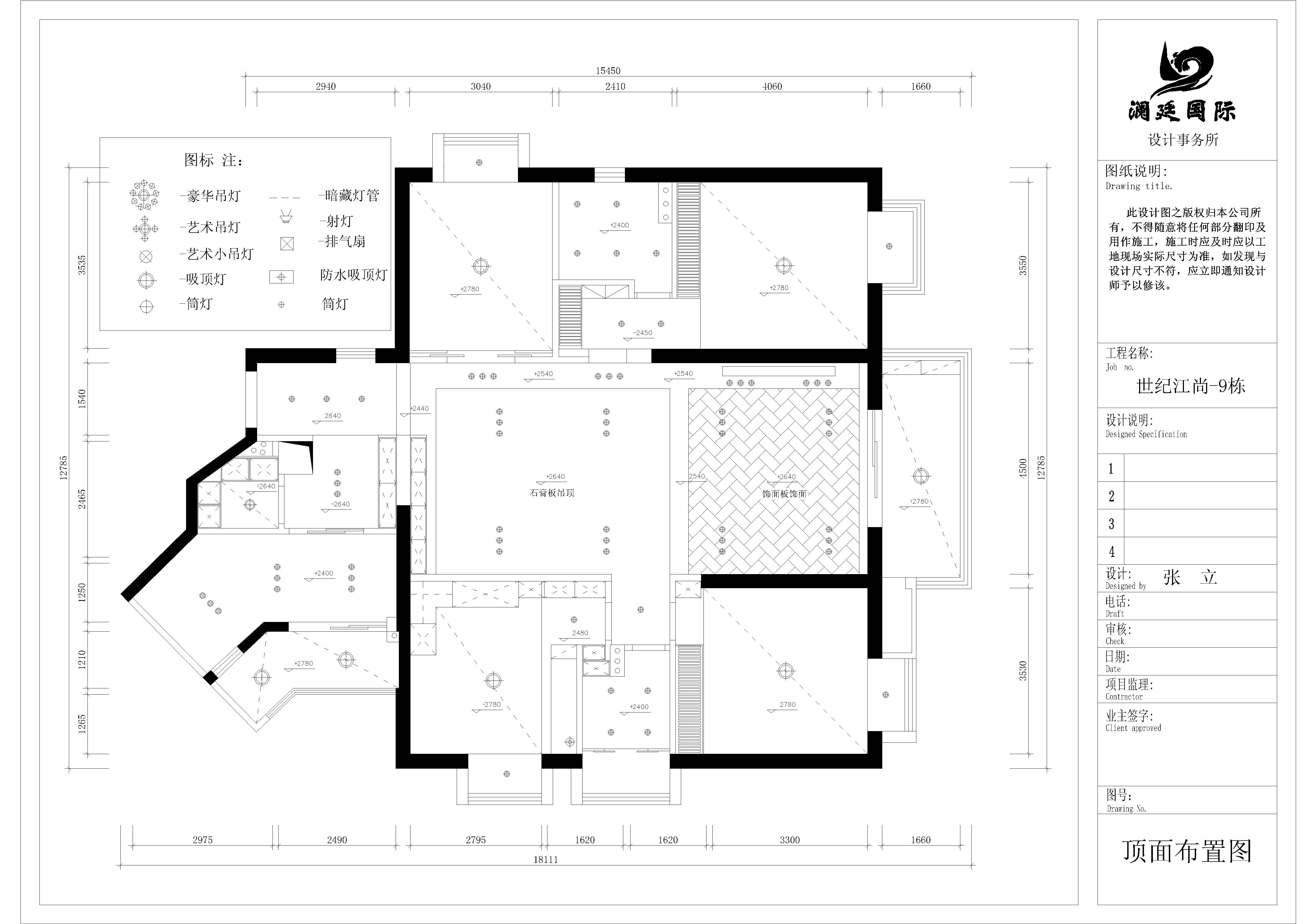
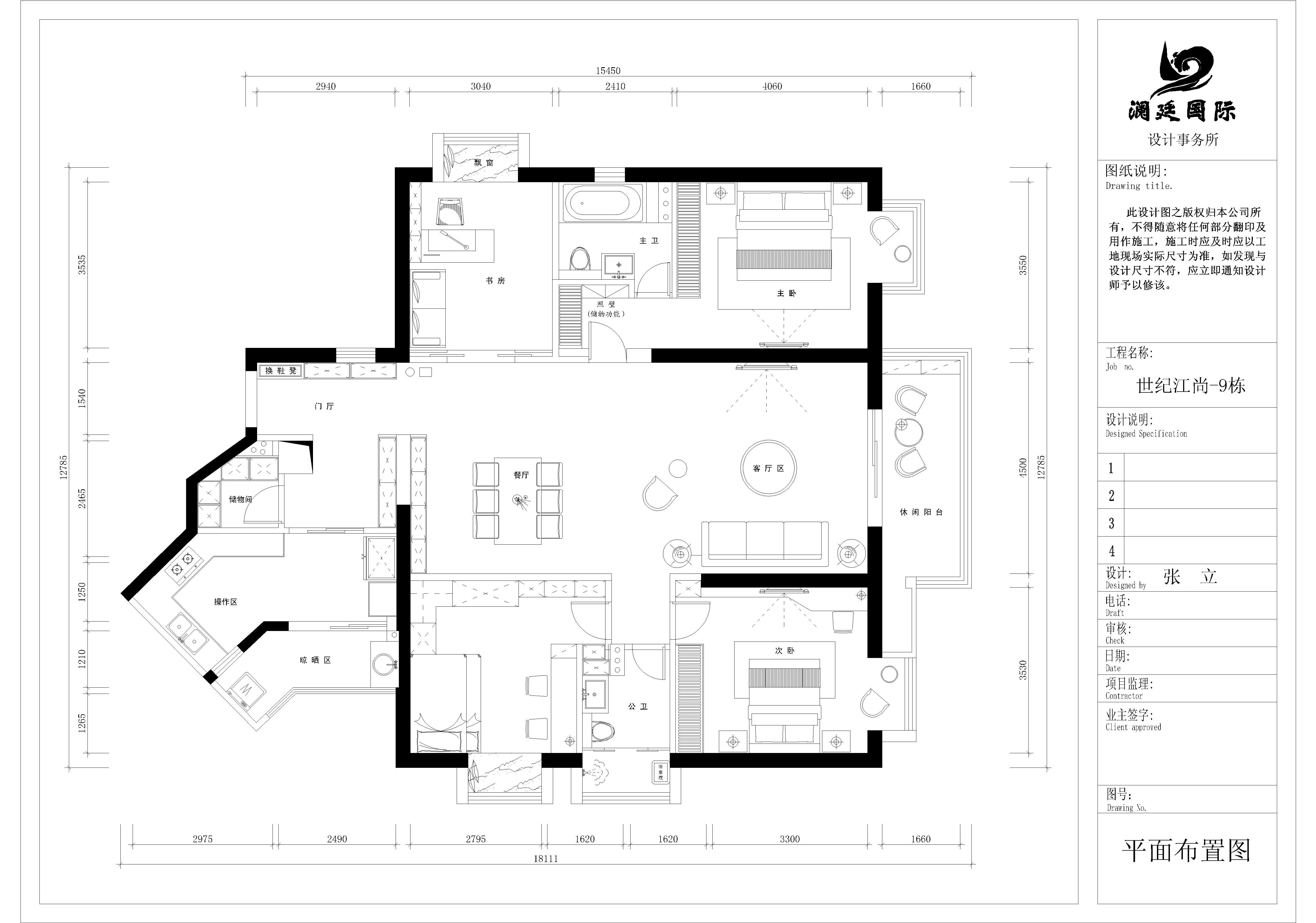
  • 图片
  • 图片
  • 图片
  • 图片
  • 图片
  • 图片
  • 图片
  • 图片
  • 图片
  • 图片
  • 图片
  • 图片
  • 图片
  • 上一个 下一个
    《金腾奖优秀作品年鉴》 私宅丨地产丨餐饮丨酒店丨办公丨商业丨公共丨产品丨公益丨人气 jintengAWARD(小金_金腾奖组委会) 广州市海珠区琶洲大道68号华新中心21楼
    金腾奖视频号 金腾奖小红书号 监制:闫虹
    统筹:吴佳佳
    运营:朱倩仪 王赫萱 张芷莹 胡岚恩 小金
    新媒体:王贝贝 严洁 侯乐 鹅姐
    经纪:刘译遥 石征 曹凯月
    技术:张桐 黄天佑
    最终解释权归金腾奖主办方所有