时代中通豪园
作品详情
  • Details of the work 标题横线
    头像或者logo
    图片 葛杰 室内设计联盟特约推荐
    城市:聊城
    公司: 水木青格设计公司
    参赛作品: 时代中通豪园
    空间类型:公寓(150㎡以下)
    个人/公司简介:
    姓名:葛杰 目前所在地:山东聊城 国籍: 中国 年龄:40岁 认证:中国CIDA室内装饰协会高级室内设计师 职位:聊城市装饰协会副会长,水木青格设计工作室创始人 履历: 本科毕业于河南科技学院装饰设计专业,后曾在北京设计公司从事室内设计工作两年,后回到聊城工作至今,2014年创立聊城水木青格室内设计工作室,获得中国CIDA室内装饰协会高级室内设计师称号,现主要是做全案设计,从看到房子的原始状态到拎包入住的全过程都由我们工作室参与并设计。 所获荣誉:室内设计大赛光岳奖特等奖 设计理念:用解决问题的思维做设计,缔造空间价值,传播生活美学。
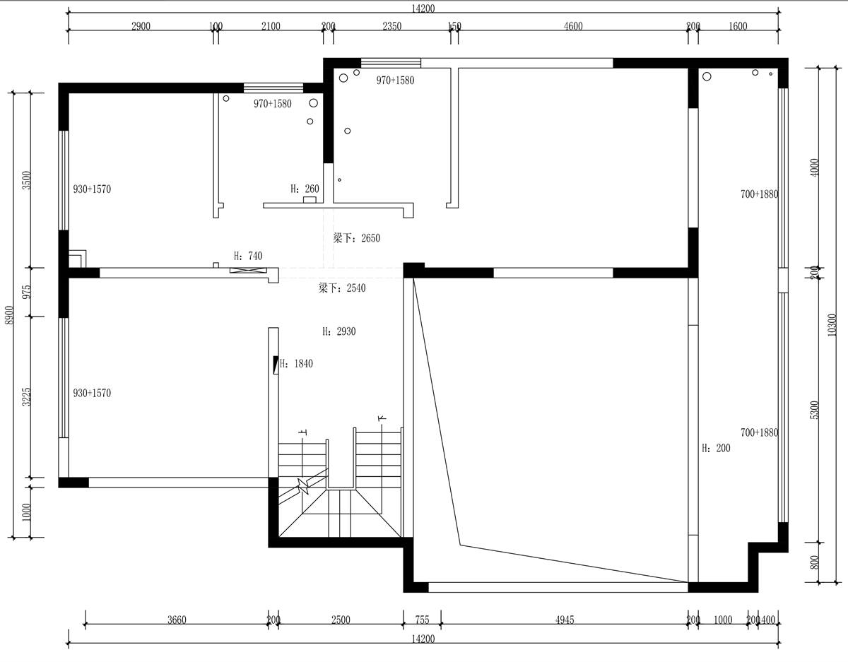
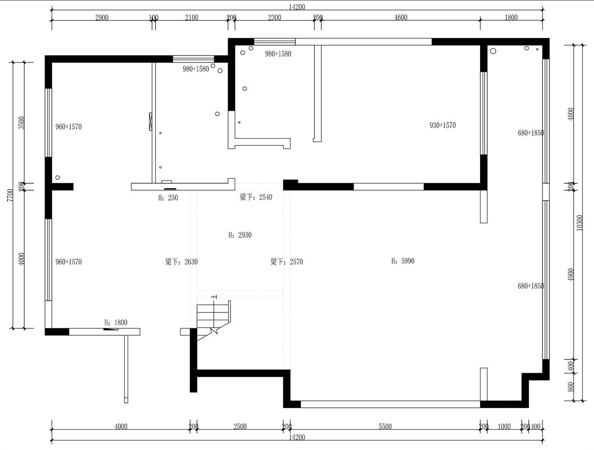
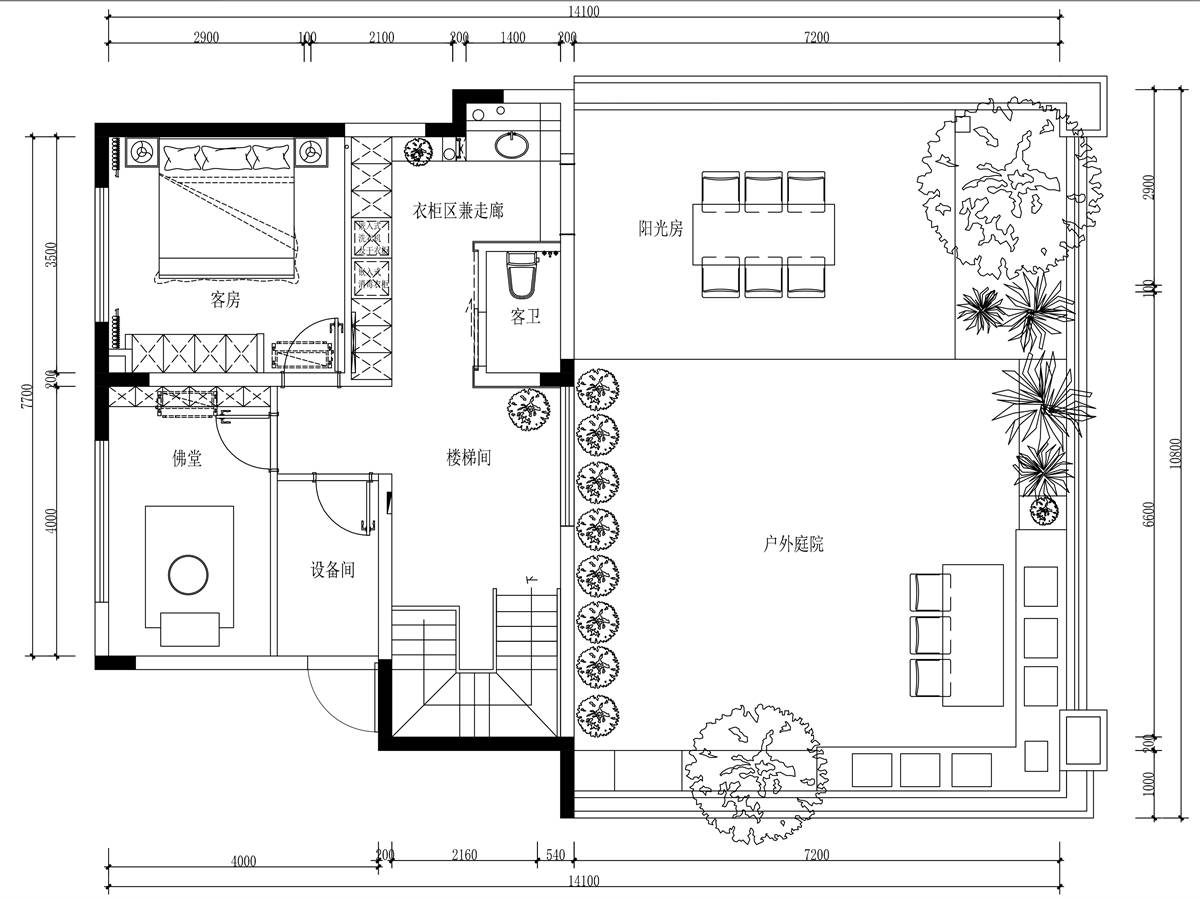
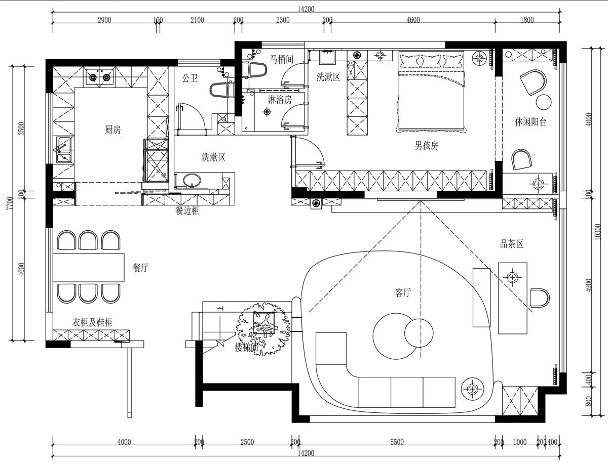
    设计说明 | Design Instruction
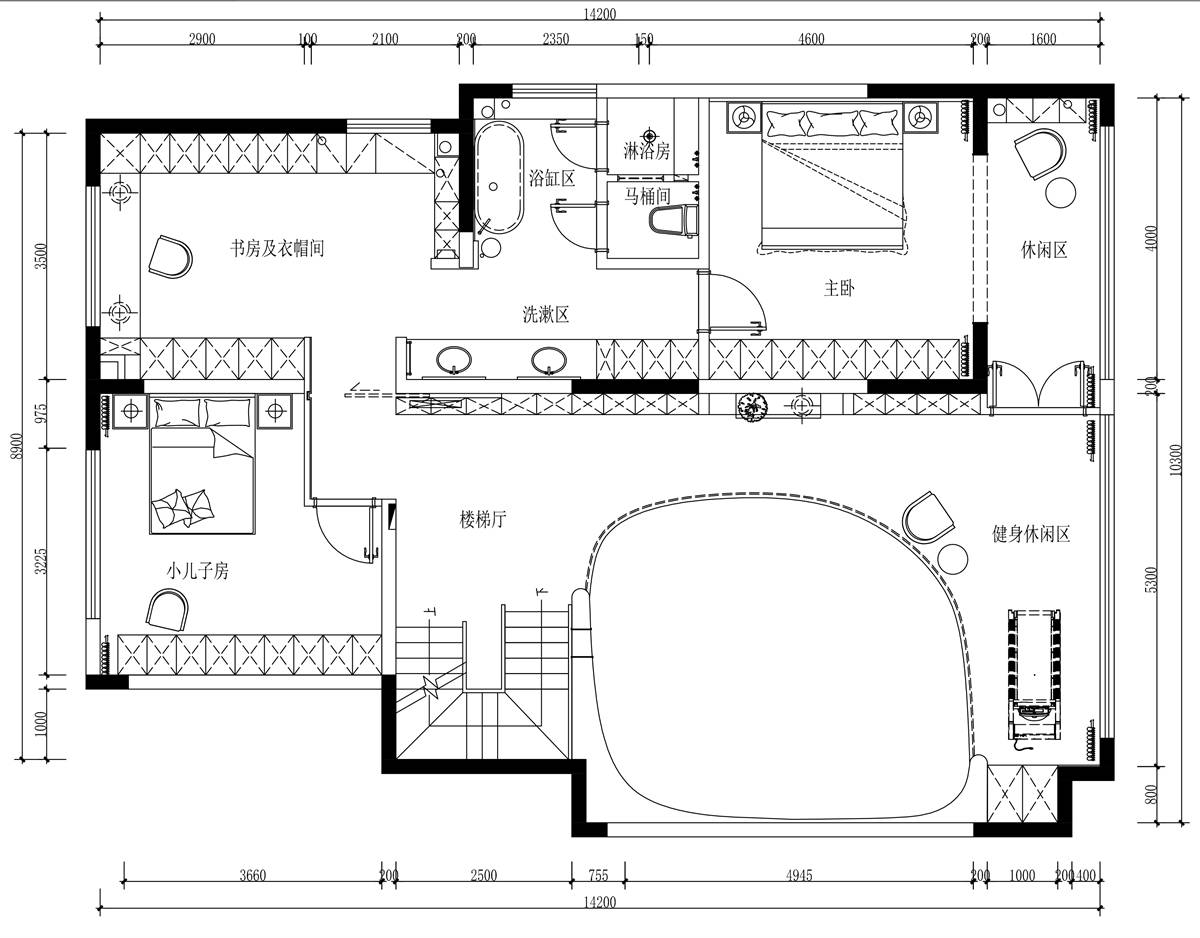
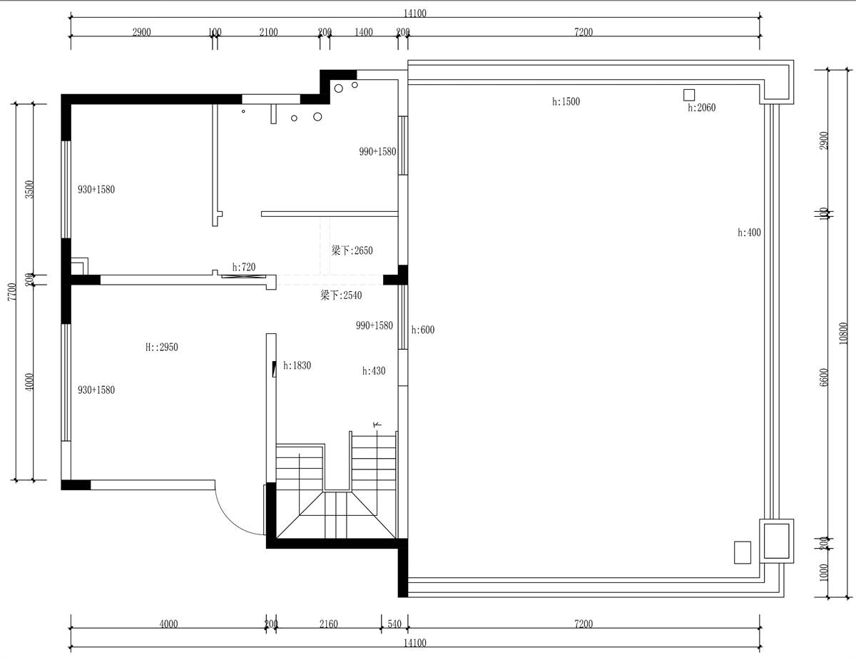
  • 本案是一套三层复式楼中楼,客户对收纳要求极高,同时希望打造一个有设计感与空间质感的儿童成长空间。 我们通过对挑空空间的结构梳理,以“元宇宙”为空间设计概念切入点,通过类似蛋形空间打造挑空复式结构,对孩子进行探索空间的开发和安全保护。 二层我们在卧室区通过改造形成了一个大的环形动线布局,将卧室,卫生间,衣帽间,儿童学习区,儿童游戏区做了空间串联,增加了空间的采光和通风效率,同时更加方便大人照顾孩子学习与娱乐,让空间也更有趣味性。 各层卫生间根据业主使用需求,通过重新的位置关系梳理,采用独立淋浴间,独立马桶间布局方式,满足多人多场景使用互不干扰,更加方便早晚的生活效率提升,体验感更好。好的空间一定是以使用者为中心,结合设计者的巧思,让空间具有诗意的美好。
  • 图片
  • 图片
  • 图片
  • 图片
  • 图片
  • 图片
  • 图片
  • 图片
  • 图片
  • 图片
  • 图片
  • 图片
  • 图片
  • 图片
  • 图片
  • 图片
  • 图片
  • 图片
  • 图片
  • 图片
  • 图片
  • 图片
  • 图片
  • 上一个 下一个
    《金腾奖优秀作品年鉴》 私宅丨地产丨餐饮丨酒店丨办公丨商业丨公共丨产品丨公益丨人气 jintengAWARD(小金_金腾奖组委会) 广州市海珠区琶洲大道68号华新中心21楼
    金腾奖视频号 金腾奖小红书号 监制:闫虹
    统筹:吴佳佳
    运营:朱倩仪 王赫萱 张芷莹 胡岚恩 小金
    新媒体:王贝贝 严洁 侯乐 鹅姐
    经纪:刘译遥 石征 曹凯月
    技术:张桐 黄天佑
    最终解释权归金腾奖主办方所有