Q Space Design
作品详情
  • Details of the work 标题横线
    头像或者logo
    图片 洽空间 室内设计联盟特约推荐
    城市:南平
    公司:洽空间
    参赛作品: 洽空间
    空间类型:餐饮
    个人/公司简介:
    2021-2022 新锐设计师,2021-2022 福建设计星,2022-2023 福建设计星50强、 洽空间由三位设计师组合而成,致力于高端住宅私人定制化设计,透过敏感的视觉,掌握时尚的脉搏以专业技法、精尚品质、极致细节、完善服务精心打磨每一个项目,保持对生活的向往和热爱,不为传统观念所局限。为客户打造独一无二的居住空间。
    设计说明 | Design Instruction
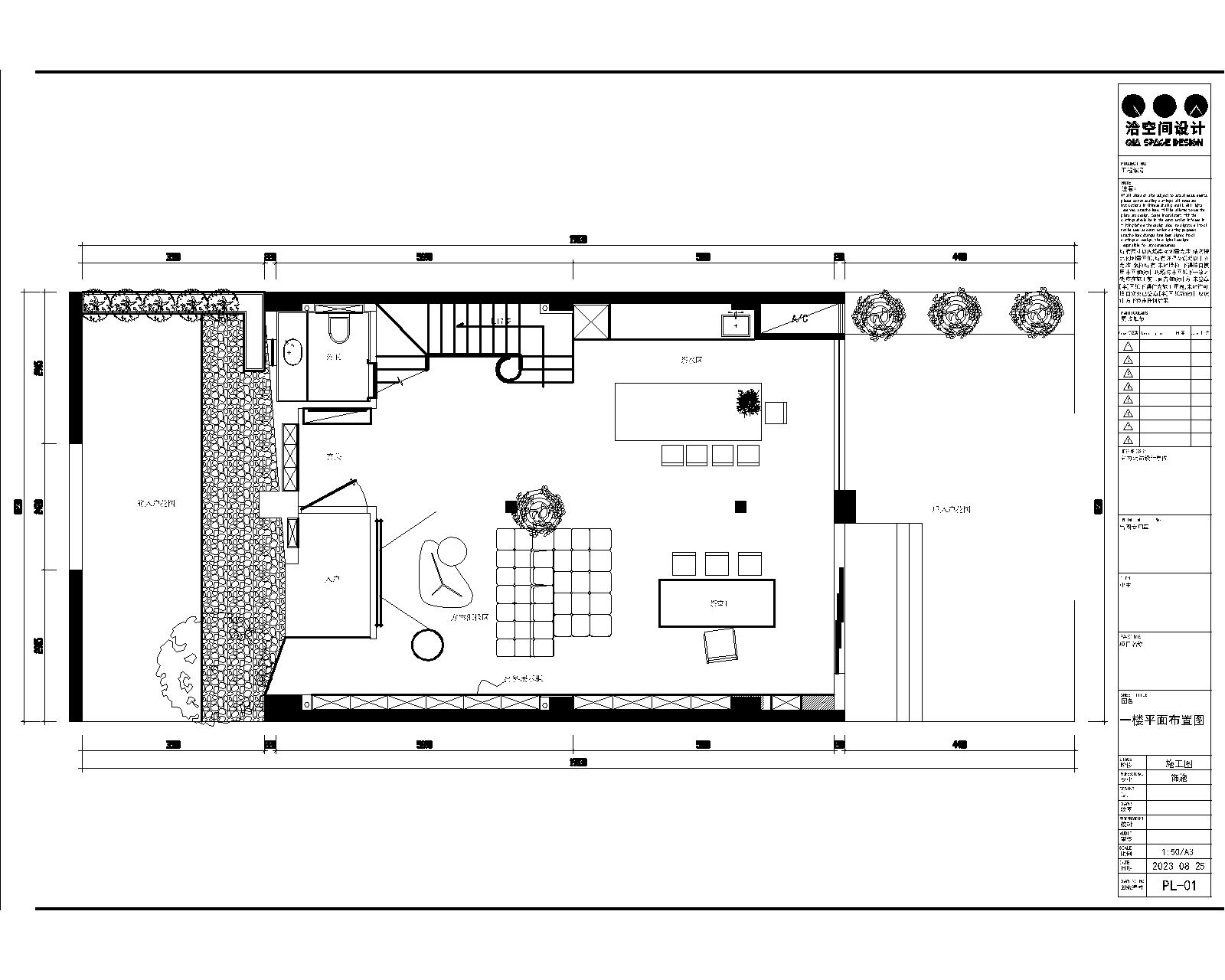
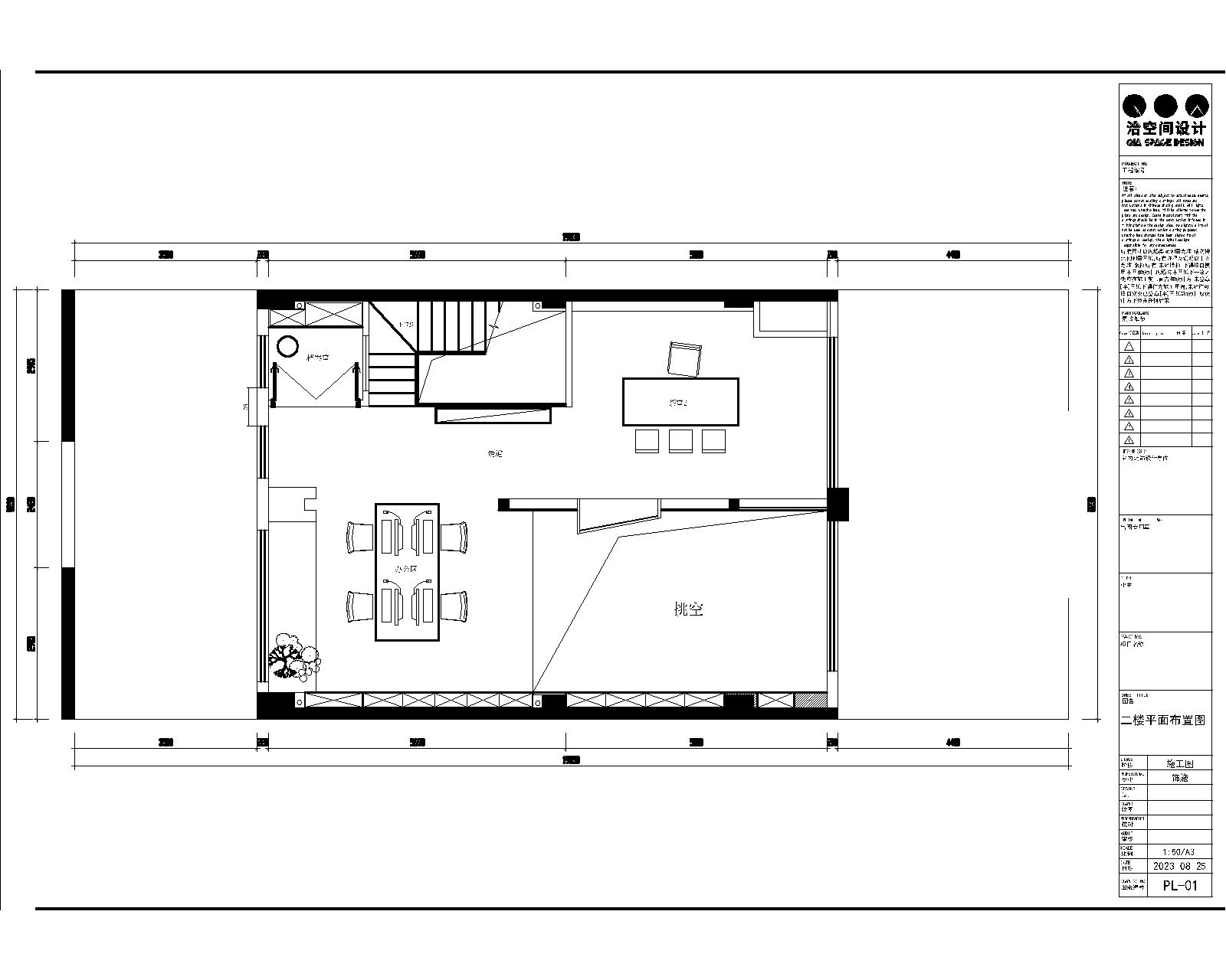
  • 以空间构建人与世界的联系,让孤岛变成陆地。以家画出生活的尺寸,打开感官,伸展、触摸、聆听,在流动的空间里感受生活的亲和之美。自然是空间的底色,空间是自然的延续,从柔软的沙发起身,走进阳光里,打开院门,落在庭前的树上,气流中弥漫着湿润的青草气味,什么也没有发生,书依旧安静地立在架上,理想的下午消逝在理想的地方。人与空间、物品、自然相连接;空间与空间开放、延伸、交错;光抵达每一个区域,没有边界和阻隔。大面积的留白和开窗,营造了一种通透感,人在其中自由行走,用身体建立感知。以垂直方向挑空,水平方向延展的方式重构空间,在有限的体量内,最大化获得开阔的感觉。在格局和尺度上带来更加舒适的体验感。 一层公共区域以自由的姿态见解着自我被打破与重建的秩序,将不同空间以巧妙的方式与自然进行联结。简单与舒适牵引着房屋的每一个角落,流畅的动线交织成优雅,逐光之旅由此展开。落地窗连结了内外空间,这间房屋正以一种张开双臂的姿态,拥抱世界,或回归自我。直线属于人类,曲线属于上帝,在理性规则与感性奇幻的平衡中塑造了贯穿上下的楼梯,碰撞出奇妙的张力。成为空间东侧贯穿上下的视觉焦点。悬浮而出的二层窗户是点睛之趣,悬停于挑高、明亮的中庭之上,串联起上下空间,营造出活泼生动、充满灵气的空间氛围。不仅极大地引入、折射自然光,也以向外的姿态邀请人走近它。
  • 图片
  • 图片
  • 图片
  • 图片
  • 图片
  • 图片
  • 图片
  • 图片
  • 图片
  • 图片
  • 图片
  • 图片
  • 图片
  • 图片
  • 图片
  • 图片
  • 图片
  • 图片
  • 图片
  • 图片
  • 图片
  • 图片
  • 图片
  • 图片
  • 图片
  • 图片
  • 图片
  • 图片
  • 图片
  • 图片
  • 图片
  • 图片
  • 图片
  • 图片
  • 图片
  • 上一个 下一个
    《金腾奖优秀作品年鉴》 私宅丨地产丨餐饮丨酒店丨办公丨商业丨公共丨产品丨公益丨人气 jintengAWARD(小金_金腾奖组委会) 广州市海珠区琶洲大道68号华新中心21楼
    金腾奖视频号 金腾奖小红书号 监制:闫虹
    统筹:吴佳佳
    运营:朱倩仪 王赫萱 张芷莹 胡岚恩 小金
    新媒体:王贝贝 严洁 侯乐 鹅姐
    经纪:刘译遥 石征 曹凯月
    技术:张桐 黄天佑
    最终解释权归金腾奖主办方所有