YU BAO
作品详情
  • Details of the work 标题横线
    头像或者logo
    图片 不合时宜设计 设计引力特约推荐
    城市:广州
    公司:不合时宜设计
    参赛作品: 宝玉
    空间类型:公寓(150㎡以下)
    个人/公司简介:
    关于“不合时宜设计” 由90后创立的设计工作室,他们不追赶流行趋势,每一个项目的创作灵感取材于具体居住者客观的生活方式,在创作中,设计师团队会对材料的选择,比例的推敲进行深刻的研究,通过整体空间作为重要的载体,来传达每一个项目的独特气质。
    设计说明 | Design Instruction
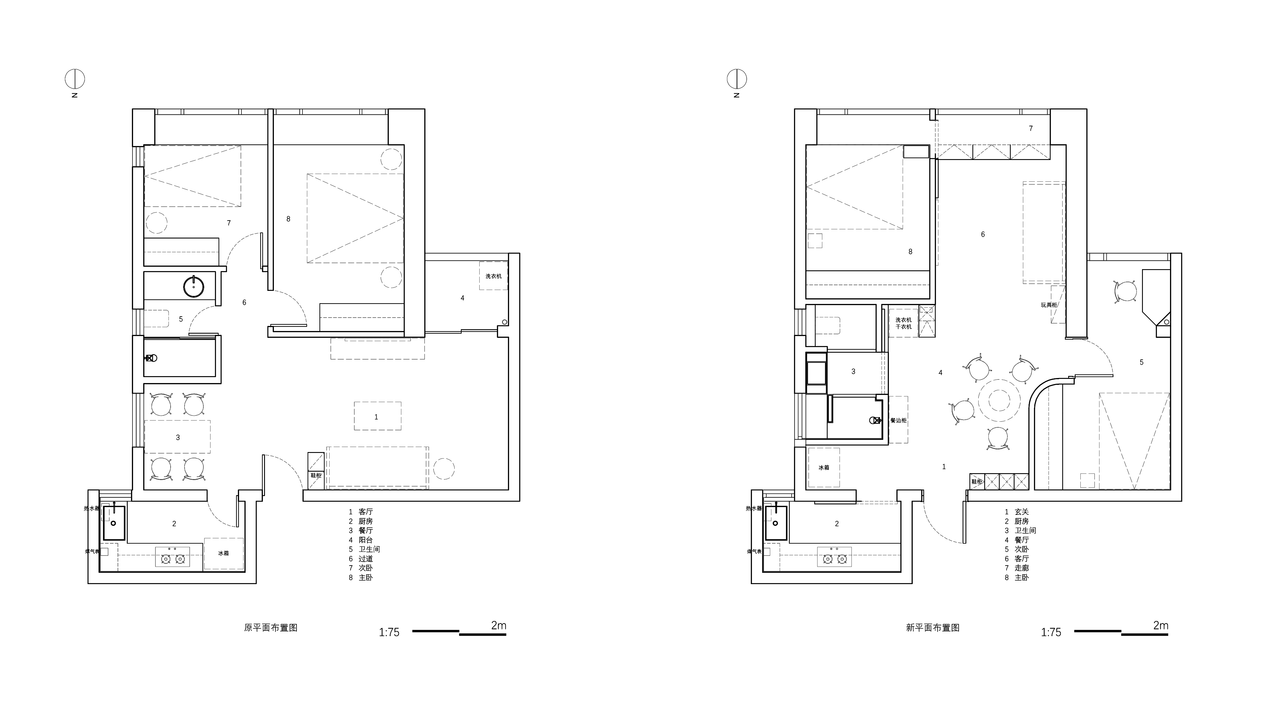
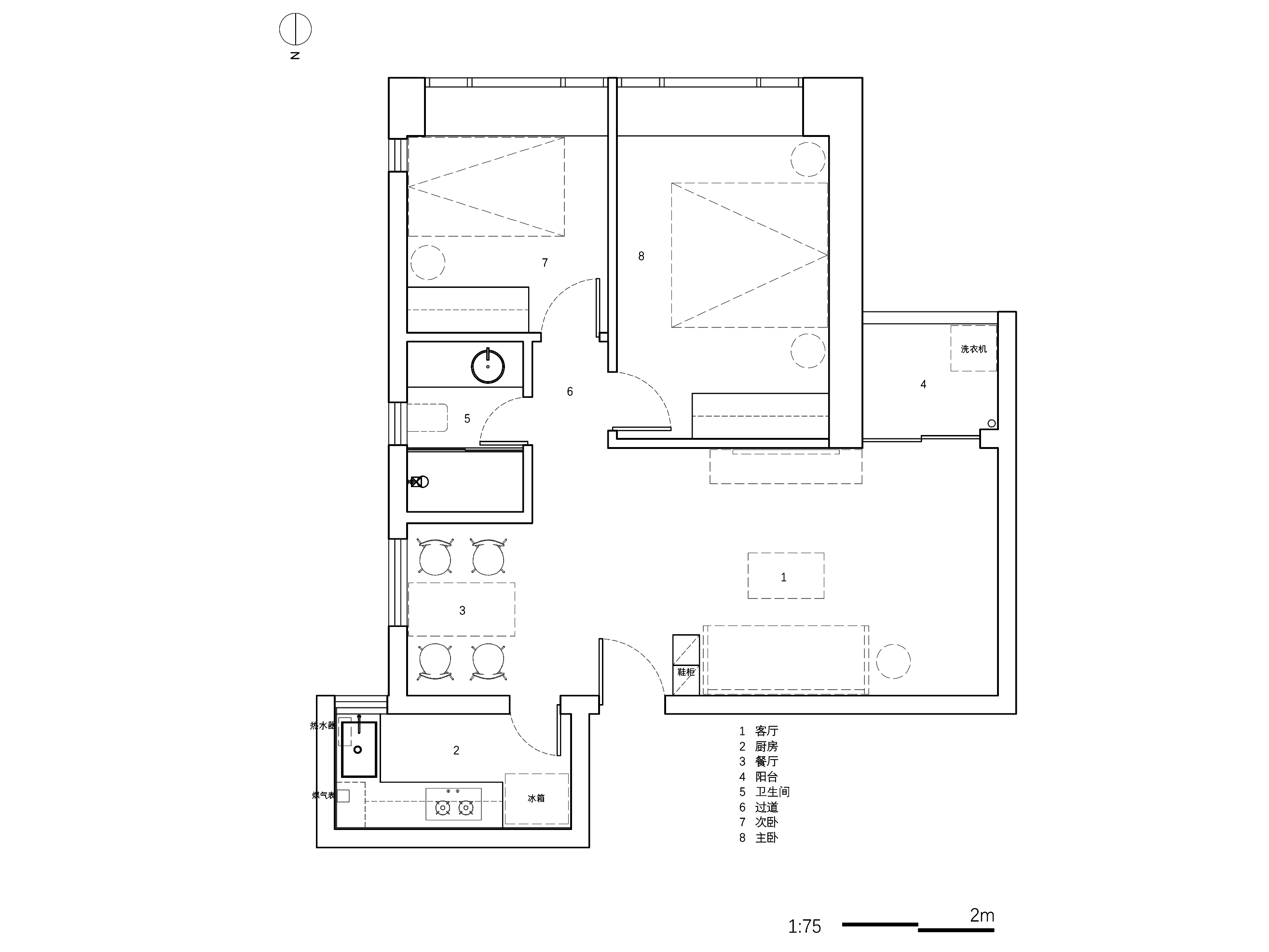
  • 本案是一个73㎡的旧房改造项目,设计的主要目的是通过重新划分室内的功能空间,最大化发挥出原始户型的特点。我们将原本采光被墙体阻隔的客厅换到位置更佳的地方,新的卧室入口带来更好的南向采光及视觉延申,三分离的卫生间能更好的满足一家三口的使用场景,优化后的厨房也比之前更为 方便好用。 “引景入室,尊重自然”。
  • 图片
  • 图片
  • 图片
  • 图片
  • 图片
  • 图片
  • 图片
  • 图片
  • 图片
  • 图片
  • 图片
  • 图片
  • 图片
  • 图片
  • 图片
  • 图片
  • 图片
  • 图片
  • 图片
  • 上一个 下一个
    《金腾奖优秀作品年鉴》 私宅丨地产丨餐饮丨酒店丨办公丨商业丨公共丨产品丨公益丨人气 jintengAWARD(小金_金腾奖组委会) 广州市海珠区琶洲大道68号华新中心21楼
    金腾奖视频号 金腾奖小红书号 监制:闫虹
    统筹:吴佳佳
    运营:朱倩仪 王赫萱 张芷莹 胡岚恩 小金
    新媒体:王贝贝 严洁 侯乐 鹅姐
    经纪:刘译遥 石征 曹凯月
    技术:张桐 黄天佑
    最终解释权归金腾奖主办方所有