被弧线拥抱,自由宽敞的互动型家居
作品详情
  • Details of the work 标题横线
    头像或者logo
    图片 理居设计 设计引力特约推荐
    城市:厦门
    公司:理居设计
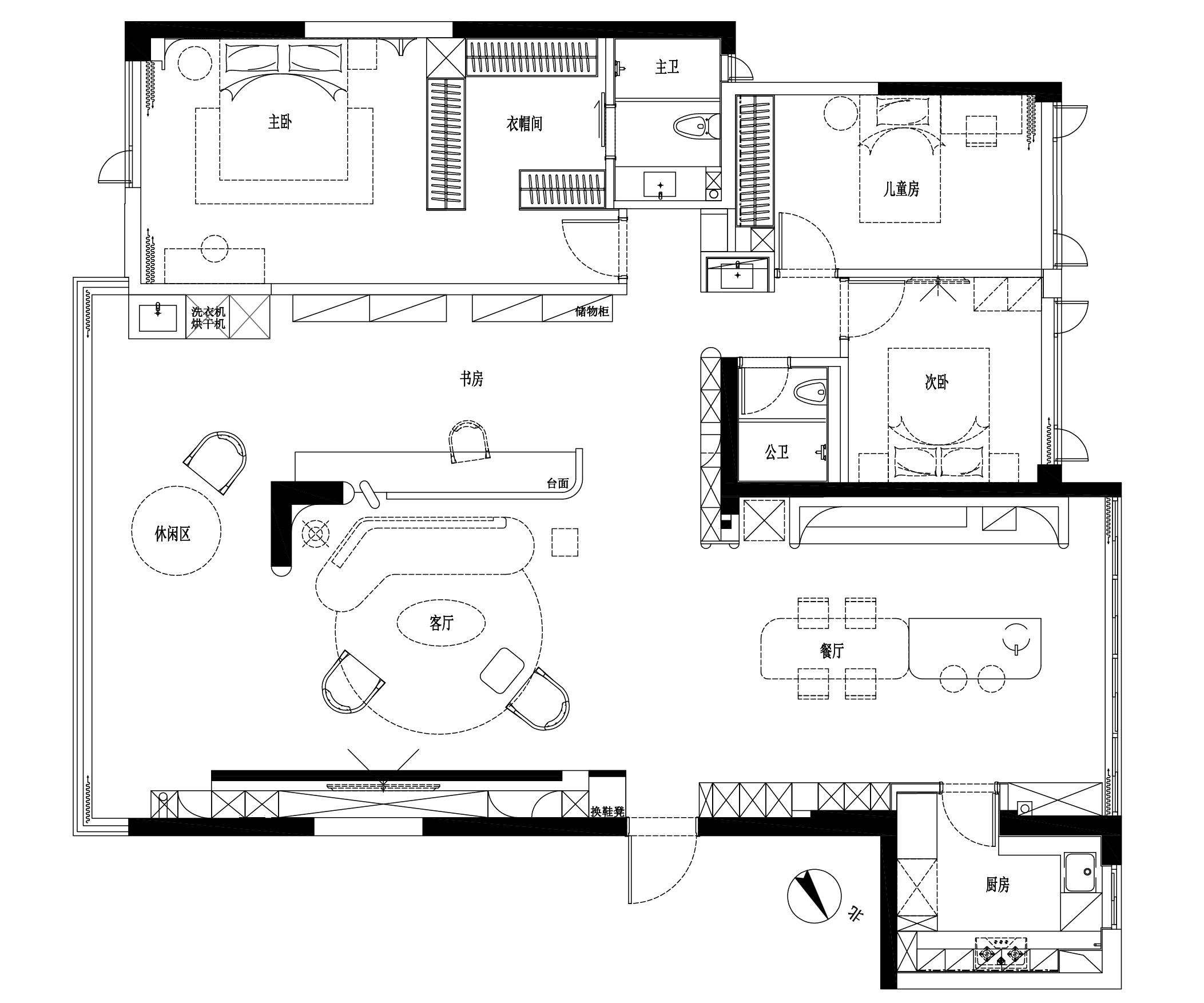
    参赛作品: 被弧线拥抱,自由宽敞的互动型家居
    空间类型:公寓(150㎡以下)
    个人/公司简介:
    理居设计专注于家装纯设计,坚信“每个人都值得拥有更好的家”,以居住者对家的期待为设计使命,梳「理」对「居」住的最本真需求,「理」性对待感性的「居」住空间,让房子变成「理」想中的「居」所。我们从居住者的需求出发提供全案设计、软装设计、异地远程等定制化设计服务,追求实景落地。目前已获ELLEDECO家居廊中国室内设计大奖、TINTA金邸奖、艾鼎国际设计大奖、法国双面神"GPDP Award"、瑞丽生活方式最佳居住空间设计等80余个类奖项,累积落地项目达600+。
    设计说明 | Design Instruction
  • 居住了十多年的房子,在孩子即将上小学时决定改造,计划再住十年,屋主在与设计师的沟通和磨合当中找到了最适合自己的风格。 这个家里,“自由”是唯一的关键词,空间的自由、氛围的自由、物品的自由。在保留足够睡眠区域的基础上,设计师将其余空间尽可能打开,营造出具有交互感的公区。整体趋于米白色与白色之间的色调,给空间带来更加纯粹的视觉感受,弧形的运用消解梁柱阳角带来的突兀,局部重色与灯光的点缀作为增加空间层次感的存在。
  • 图片
  • 图片
  • 图片
  • 图片
  • 图片
  • 图片
  • 图片
  • 图片
  • 图片
  • 图片
  • 图片
  • 图片
  • 图片
  • 图片
  • 上一个 下一个
    《金腾奖优秀作品年鉴》 私宅丨地产丨餐饮丨酒店丨办公丨商业丨公共丨产品丨公益丨人气 jintengAWARD(小金_金腾奖组委会) 广州市海珠区琶洲大道68号华新中心21楼
    金腾奖视频号 金腾奖小红书号 监制:闫虹
    统筹:吴佳佳
    运营:朱倩仪 王赫萱 张芷莹 胡岚恩 小金
    新媒体:王贝贝 严洁 侯乐 鹅姐
    经纪:刘译遥 石征 曹凯月
    技术:张桐 黄天佑
    最终解释权归金腾奖主办方所有