木之心
作品详情
  • Details of the work 标题横线
    头像或者logo
    图片 孔祥雪 大连菁英学社特约推荐
    城市:大连
    公司: 不作设计
    参赛作品: 木之心
    空间类型:公寓(150㎡以下)
    个人/公司简介:
    好的设计一定是一个好答案,和艺术创作完全抒发自我个性不同,设计需要理性的解决问题,站在使用者的角度去看问题,找到功能,美学,预算等多方面的完美平衡,并且能够传达普世的价值观,塑造美好关系。
    设计说明 | Design Instruction
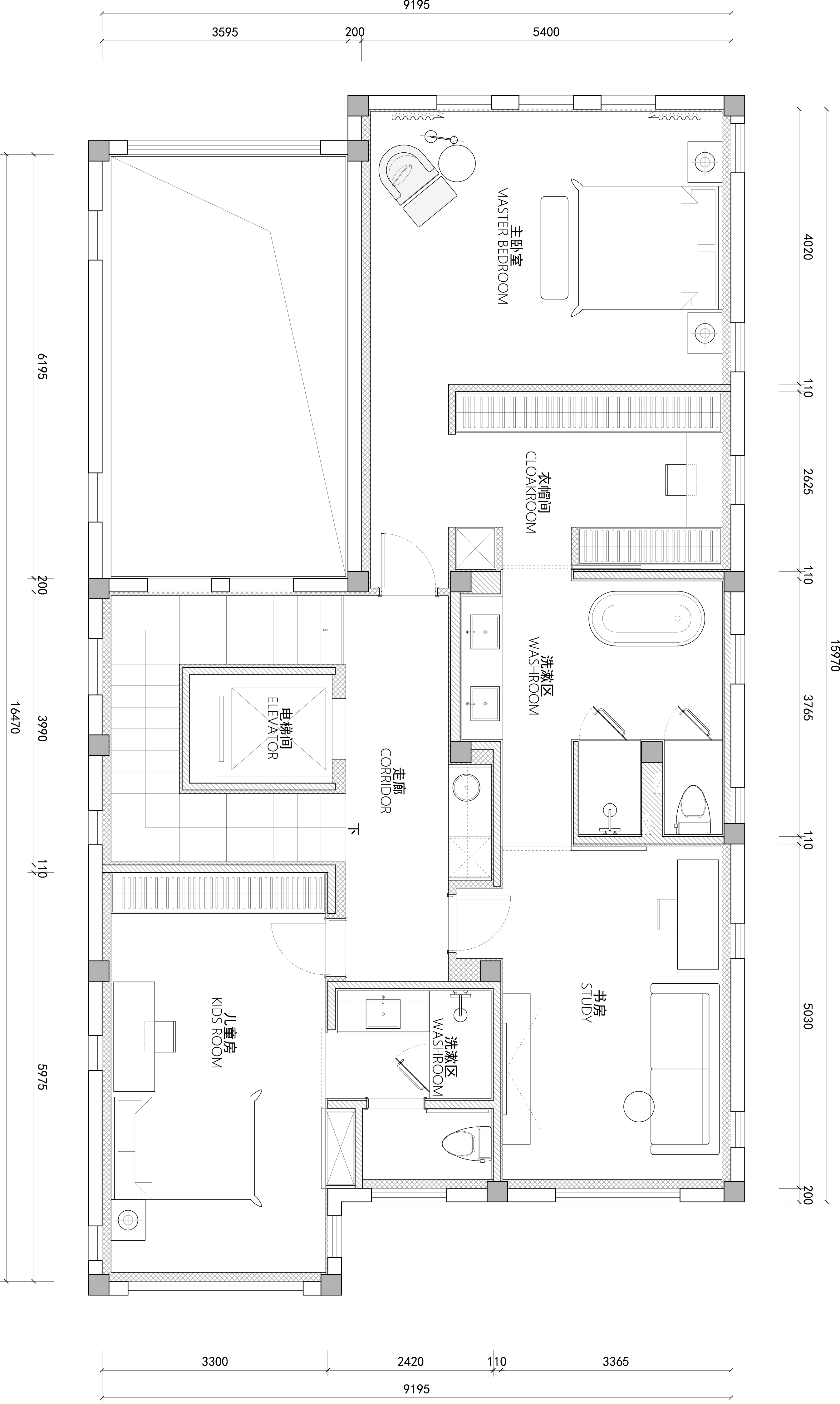
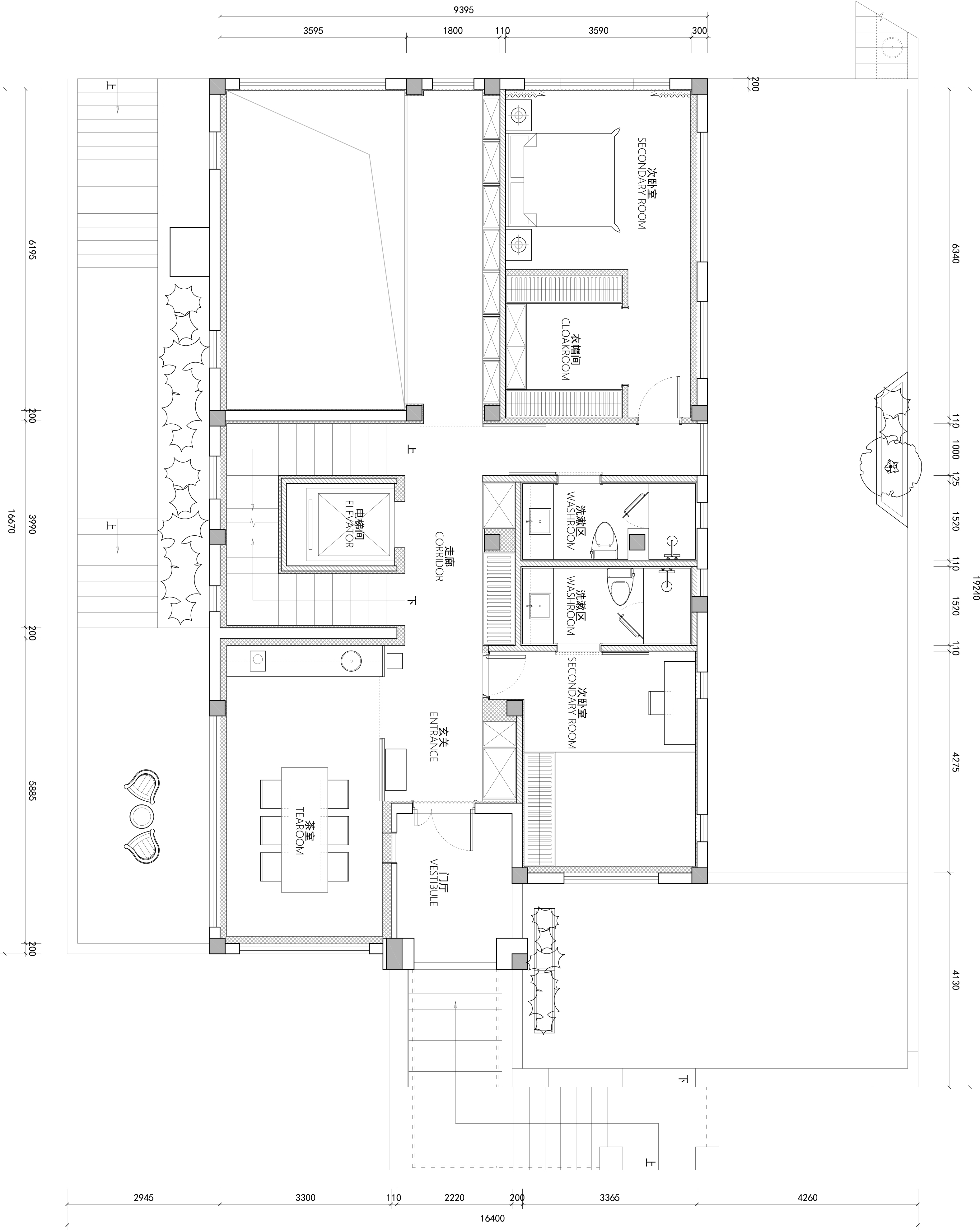
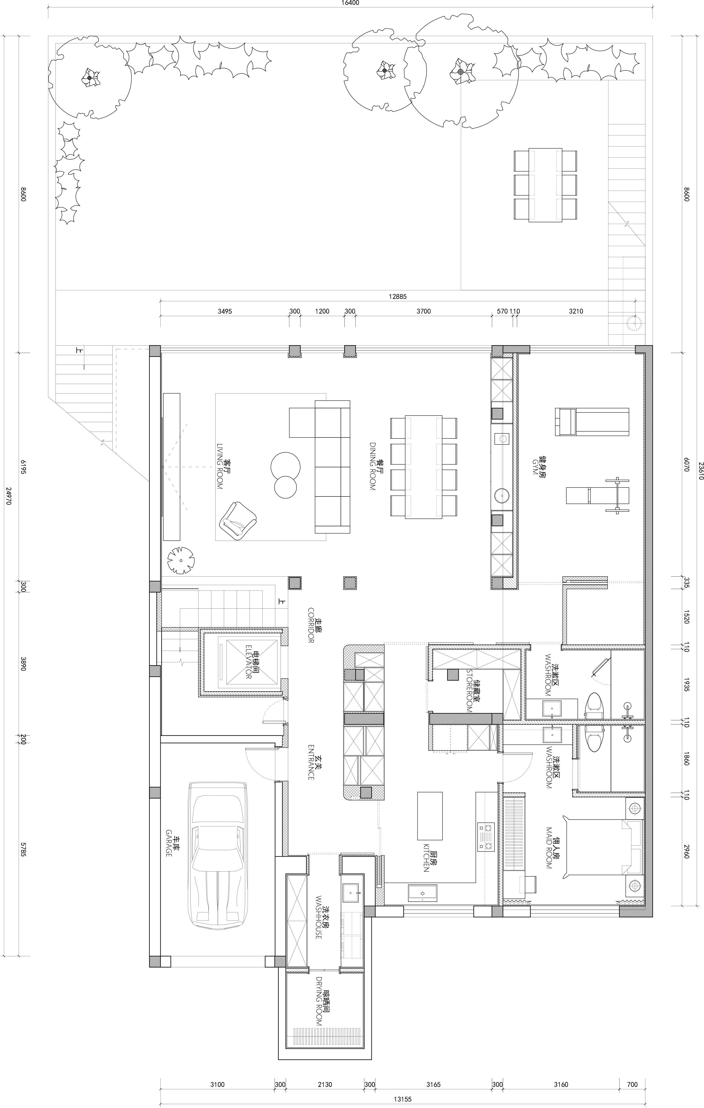
  • 木是拥有生命力得材料,带着自然的气息,岁月痕迹,是于自然对话得方式。这家主人很喜欢国外自建别墅的通透感,所以我们在设计的时候几乎推掉了所以非承重墙,重构空间,乾坤大挪移的把原本的地下室变成明亮的一楼,客餐厅的高挑空联动了垂直空间,无中生有的增加了二楼的茶室露台。设计希望把空间还给空间,让光和风都有自由穿行的路径, 希望这个家在时间里历久弥新,而不是追求某一种潮流。
  • 图片
  • 图片
  • 图片
  • 图片
  • 图片
  • 图片
  • 图片
  • 图片
  • 图片
  • 图片
  • 图片
  • 图片
  • 图片
  • 图片
  • 图片
  • 图片
  • 图片
  • 图片
  • 图片
  • 图片
  • 图片
  • 图片
  • 图片
  • 图片
  • 图片
  • 图片
  • 图片
  • 图片
  • 图片
  • 图片
  • 图片
  • 上一个 下一个
    《金腾奖优秀作品年鉴》 私宅丨地产丨餐饮丨酒店丨办公丨商业丨公共丨产品丨公益丨人气 jintengAWARD(小金_金腾奖组委会) 广州市海珠区琶洲大道68号华新中心21楼
    金腾奖视频号 金腾奖小红书号 监制:闫虹
    统筹:吴佳佳
    运营:朱倩仪 王赫萱 张芷莹 胡岚恩 小金
    新媒体:王贝贝 严洁 侯乐 鹅姐
    经纪:刘译遥 石征 曹凯月
    技术:张桐 黄天佑
    最终解释权归金腾奖主办方所有