生白
作品详情
  • Details of the work 标题横线
    头像或者logo
    图片 孔祥雪 大连菁英学社特约推荐
    城市:大连
    公司: 不作设计
    参赛作品: 生白
    空间类型:公寓(150㎡以下)
    个人/公司简介:
    好的设计一定是一个好答案,和艺术创作完全抒发自我个性不同,设计需要理性的解决问题,站在使用者的角度去看问题,找到功能,美学,预算等多方面的完美平衡,并且能够传达普世的价值观,塑造美好关系。
    设计说明 | Design Instruction
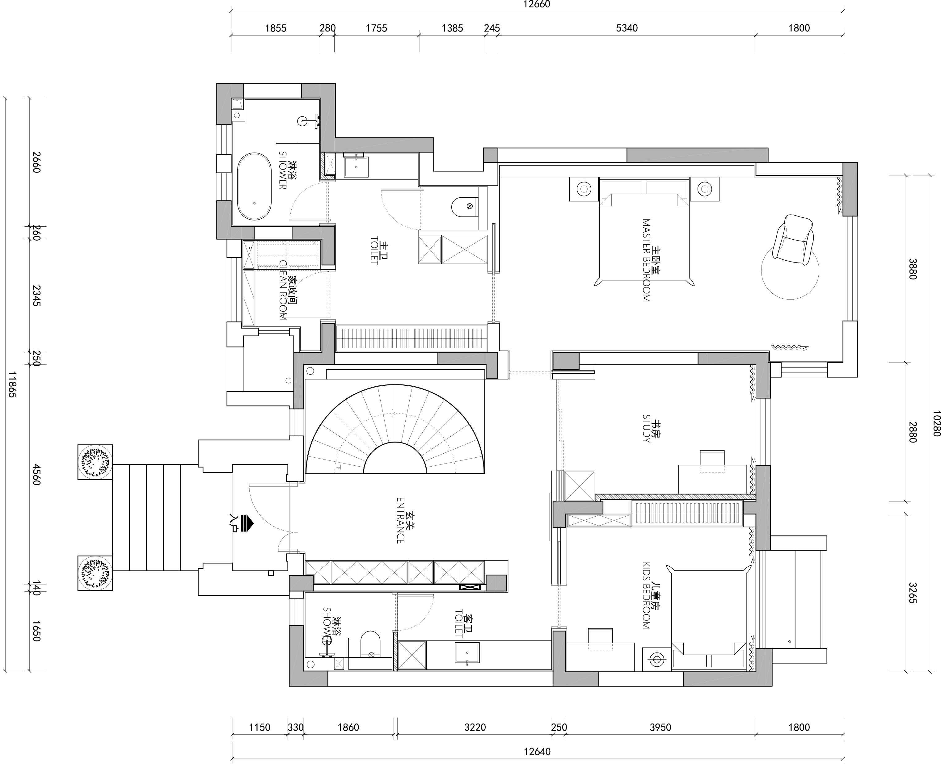
  • 这是一个320平方米,下跃带院子的家。业主想要一个纯粹的白空间,装满自己喜欢的一切。这个案子的设计,我不去寻找白,而是搜寻一种白的感觉方式,它包容一切,多元,诗意,本真……业主喜欢户外运动旅行,登山滑雪,我就给它足够的收纳空间,业主喜欢中古家具,他的vitsoe 606,fritz hansen 7号椅,thonet 14号椅,都在设计里找到合适的C位,作为对一处空间的填充结果而产生的白,它是包容一切的家,允许我们在这里继续自由无用。
  • 图片
  • 图片
  • 图片
  • 图片
  • 图片
  • 图片
  • 图片
  • 图片
  • 图片
  • 图片
  • 图片
  • 图片
  • 图片
  • 图片
  • 图片
  • 图片
  • 图片
  • 图片
  • 图片
  • 图片
  • 图片
  • 图片
  • 图片
  • 图片
  • 图片
  • 图片
  • 图片
  • 图片
  • 图片
  • 图片
  • 图片
  • 图片
  • 图片
  • 图片
  • 上一个 下一个
    《金腾奖优秀作品年鉴》 私宅丨地产丨餐饮丨酒店丨办公丨商业丨公共丨产品丨公益丨人气 jintengAWARD(小金_金腾奖组委会) 广州市海珠区琶洲大道68号华新中心21楼
    金腾奖视频号 金腾奖小红书号 监制:闫虹
    统筹:吴佳佳
    运营:朱倩仪 王赫萱 张芷莹 胡岚恩 小金
    新媒体:王贝贝 严洁 侯乐 鹅姐
    经纪:刘译遥 石征 曹凯月
    技术:张桐 黄天佑
    最终解释权归金腾奖主办方所有