金地工艺展厅
作品详情
  • Details of the work 标题横线
    头像或者logo
    图片 刘兆蓬 大连菁英学社特约推荐
    城市:大连
    公司: 国色设计(大连)有限公司
    参赛作品: 金地工艺展厅
    空间类型:酒店
    个人/公司简介:
    从业20年的新锐派设计师,对设计有独立的个人理解和实践。追求有效设计,通过实践设计创造价值的理念为诸多客户服务。服务对象包括地产商,大型企事业单位及私人委托业主。
    设计说明 | Design Instruction
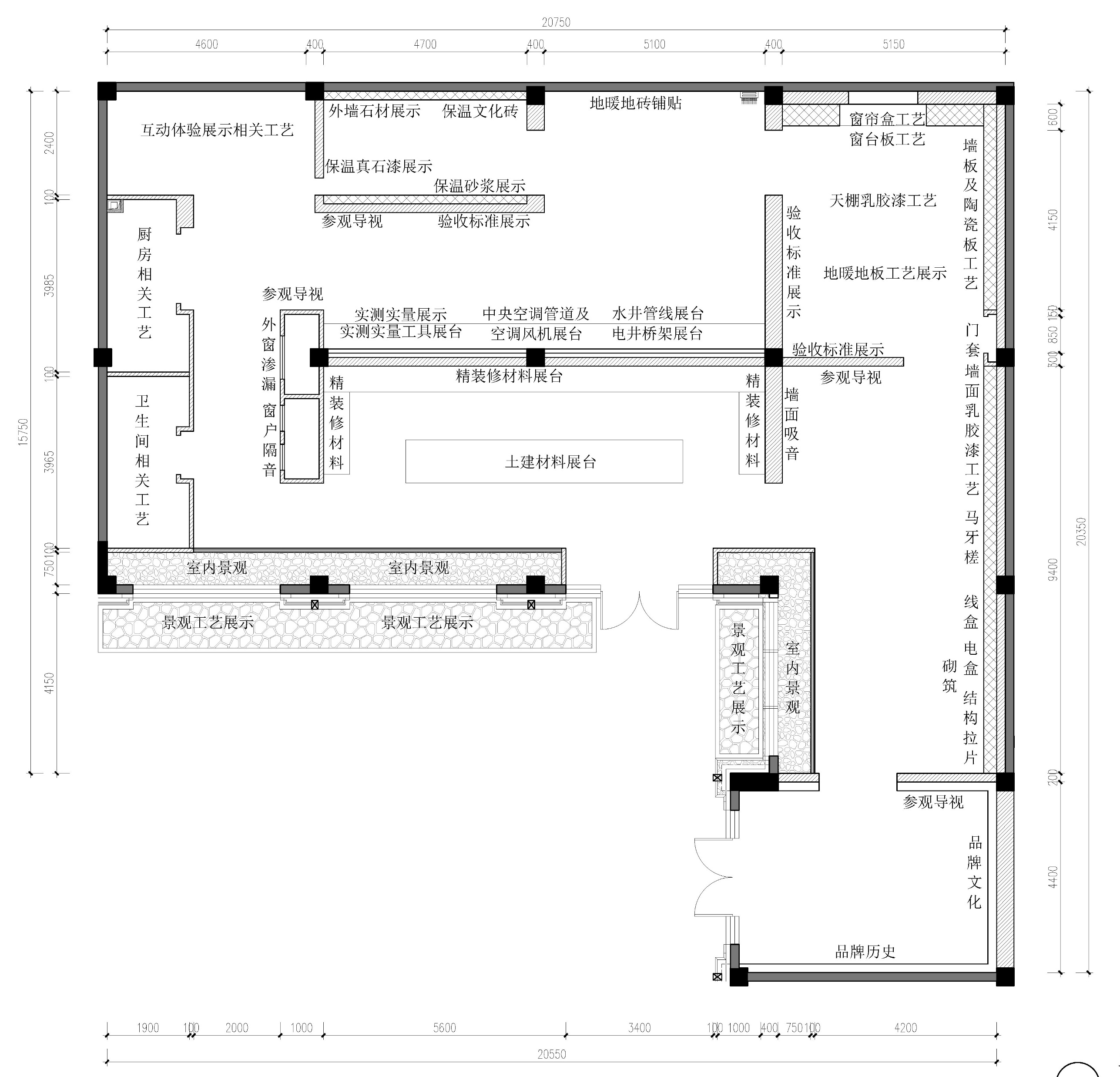
  • 本设计旨在展示施工工艺的各个方面,包括建筑材料、施工流程、技术应用等。展厅设计将突出展示施工工艺的精湛技艺和精良设备,同时注重施工安全与环保方面的展示,以传达绿色施工的理念。展厅规模适中,能够容纳适量的参观者。展厅在色彩搭配上通常选择简单明快的基础色调,如黑、白、灰等。这些颜色不仅能够营造出整体的简约感,还为展品提供了一个相对中性的背景,使其更加突出。 空间布局的陈列方式也需要遵循简洁明了的原则。首先,展品的数量应适中,避免过多的摆放,以防止视觉混乱。同时在布局上采用对称或平衡的手法,使得整个展厅呈现出一种和谐的美感。 灯光设计在简约展厅的设计中,也起到非常重要的作用。通过合理的灯光设计,可以突出展品的特色,并创造出一种独特的氛围。本色及选择大量营造天光那种柔和而均匀的照明方式,以减少过多的光线反射和阴影。同时还可以通过灯光的调节来改变展厅的整体氛围,使得观众能够更好地融入其中。 设计注重于去除多余的装饰和复杂性,以突出展品本身的价值和特点。通过合理的布局、色彩搭配、陈列方式和灯光设计等手法,赋予展厅简约美感,使其成为一个展示艺术品和文化内涵的理想空间。
  • 图片
  • 图片
  • 图片
  • 图片
  • 图片
  • 图片
  • 图片
  • 图片
  • 图片
  • 图片
  • 图片
  • 图片
  • 图片
  • 图片
  • 图片
  • 图片
  • 图片
  • 图片
  • 图片
  • 图片
  • 图片
  • 图片
  • 图片
  • 图片
  • 图片
  • 图片
  • 图片
  • 图片
  • 图片
  • 图片
  • 图片
  • 图片
  • 图片
  • 图片
  • 图片
  • 图片
  • 图片
  • 图片
  • 图片
  • 图片
  • 图片
  • 图片
  • 图片
  • 上一个 下一个
    《金腾奖优秀作品年鉴》 私宅丨地产丨餐饮丨酒店丨办公丨商业丨公共丨产品丨公益丨人气 jintengAWARD(小金_金腾奖组委会) 广州市海珠区琶洲大道68号华新中心21楼
    金腾奖视频号 金腾奖小红书号 监制:闫虹
    统筹:吴佳佳
    运营:朱倩仪 王赫萱 张芷莹 胡岚恩 小金
    新媒体:王贝贝 严洁 侯乐 鹅姐
    经纪:刘译遥 石征 曹凯月
    技术:张桐 黄天佑
    最终解释权归金腾奖主办方所有