新星瑾上
作品详情
  • Details of the work 标题横线
    头像或者logo
    图片 刘兆蓬 大连菁英学社特约推荐
    城市:大连
    公司: 国色设计(大连)有限公司
    参赛作品: 新星瑾上
    空间类型:酒店
    个人/公司简介:
    从业20年的新锐派设计师,对设计有独立的个人理解和实践。追求有效设计,通过实践设计创造价值的理念为诸多客户服务。服务对象包括地产商,大型企事业单位及私人委托业主。
    设计说明 | Design Instruction
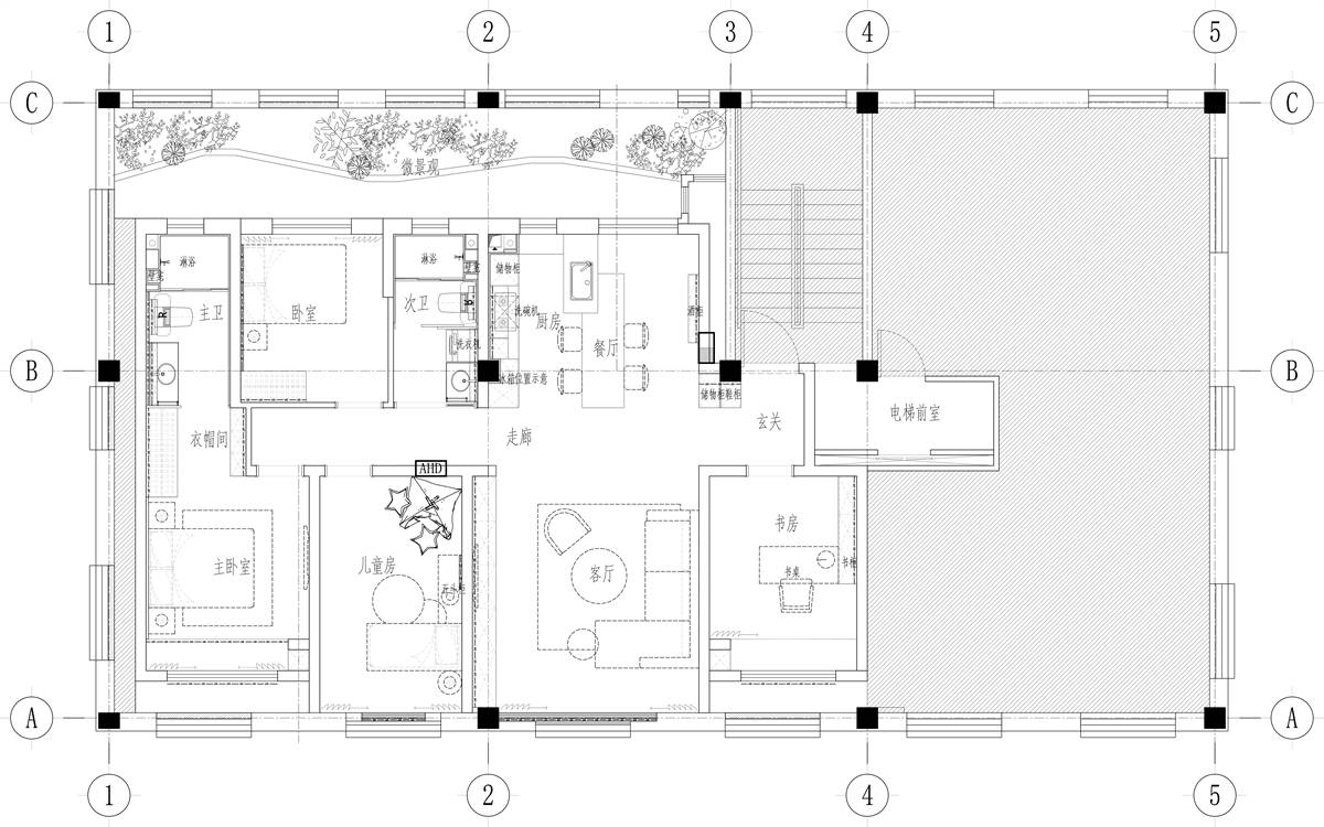
  • 一座建筑,承载百年时光,一方空间,承托生活品质,每个人的内心,都有一处理想居所,装满对未来生活的憧憬。 南向四开间明媚格局,以四季明媚犒赏生活奢雅,用每一寸空间诠释生活质感,为家人的每一种生活方式,提供无限空间想象,敞阔四居,容纳更多美好想象,多一方空间,留给兴趣,健身房、游戏房…… 美好生活随心所欲,容纳生活更多想象,私享入户空间,营造出独属塔尖大人物的归家仪制,阔尺宽幕客厅 非凡尺度 承构理想生活,餐厅厨房南北贯通,落地窗设计,风光无限 灵动静谧书房,诗书画茶,飘窗拓展空间,一桌一椅一窗一屏尽悠然 通透主卧套房,私密起居 舒展优雅格调;独立衣帽间、干湿分离明卫 南北通透,演绎浪漫生活仪式感 阳光儿童房,自由成长 盛纳童真童趣,为孩子提供成长空间 客厅餐厨一体,南北通透 满载温馨时光;让清风自然流入,轩朗格局,舒展豁达人生 L型厨房操作台,让洗、切、炒动线流畅; 干湿分离卫浴,舒适明卫 呵护健康生活 优雅的生活态度 从有序起居开始。
  • 图片
  • 图片
  • 图片
  • 图片
  • 图片
  • 图片
  • 图片
  • 图片
  • 图片
  • 图片
  • 上一个 下一个
    《金腾奖优秀作品年鉴》 私宅丨地产丨餐饮丨酒店丨办公丨商业丨公共丨产品丨公益丨人气 jintengAWARD(小金_金腾奖组委会) 广州市海珠区琶洲大道68号华新中心21楼
    金腾奖视频号 金腾奖小红书号 监制:闫虹
    统筹:吴佳佳
    运营:朱倩仪 王赫萱 张芷莹 胡岚恩 小金
    新媒体:王贝贝 严洁 侯乐 鹅姐
    经纪:刘译遥 石征 曹凯月
    技术:张桐 黄天佑
    最终解释权归金腾奖主办方所有