French classics and romance
作品详情
  • Details of the work 标题横线
    头像或者logo
    图片 李海军
    城市:南昌
    公司: 华浔品味装饰集团
    参赛作品: 法式经典与浪漫
    空间类型:公寓(150㎡以下)
    个人/公司简介:
    注册资格:中国建筑学会(IID-ASC)注册室内高级设计师 工作年限:15年 进 修 于:清华大学美术学院高研班 职 务:广东华浔品味装饰南昌公司HA艺墅设计院设计总监 个人荣誉:2013年 获江西十佳新锐设计师奖。 2014年 获江西十佳魅力设计师 2015年 获江西十佳设计人物奖 2016年 获搜狐《焦点奖》50强作品 2016年 获国内第六届筑巢奖优秀创意奖 2017年 进修清华大学美术学院 2018年 获中国(南昌)设计杰出青年 2019年 获金住奖中国(赣州)十大居住空间设计师 2019年 获中国(南昌)石材行业设计风云人物奖 2020年 获新浪·家居 江西年度人气设计师 设计理念:设计空间服务于人、服务于生活。 擅长风格:现代类、中式类等
    设计说明 | Design Instruction
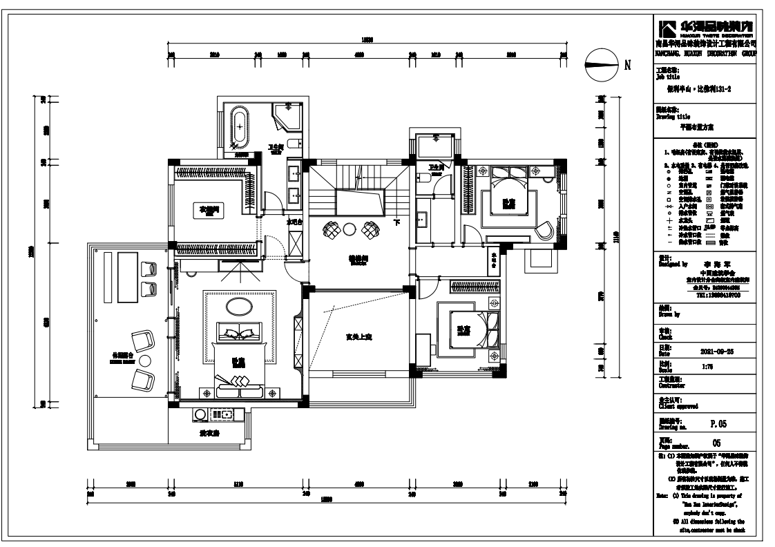
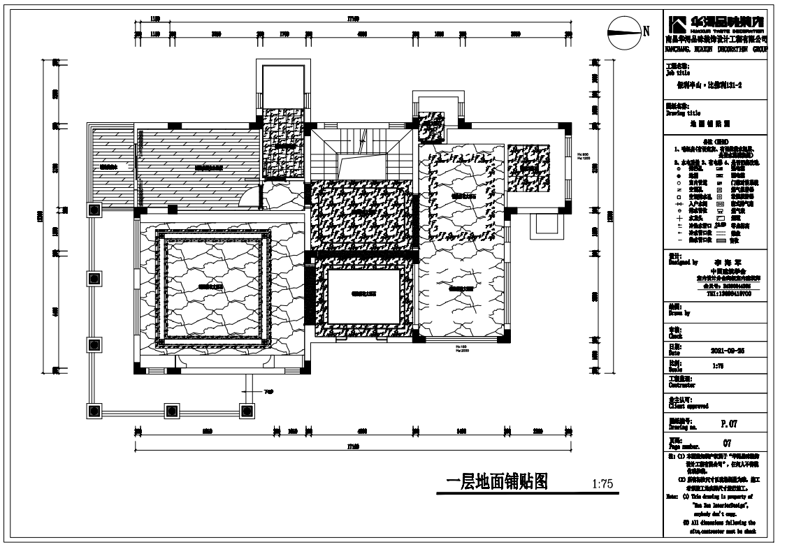
  • 案例名称:南昌保利半山别墅·比弗利 —《法式经典与浪漫》 案例风格:法式轻奢风 案例面积:580㎡ 楼盘名称:南昌·保利半山国际 户型:双拼别墅 设计说明: 本案以法式浪漫为主题定义,法式风格充满了贵族宫廷色彩,散发出优雅与感性的韵味。法式的浪漫,不光是大胆跳跃的色彩,还需要一些淡雅的颜色来搭配,才能体现出慵懒清新的浪漫,我采用淡雅别致的纱帘来点缀,在整体家居搭配上,也多采用跳跃的色彩加浅色来搭配。窗帘采用非常大胆的色彩,墨绿,蓝色,粉橙色,色彩搭配大胆却不失优雅,透露出浓郁的艺术氛围。 餐厅厨房简洁、精致,物品归类收纳有序,中西餐结合,柔和、舒适。黑色的奢石,灰色的柜门,白色的雕花线条,不同材质的交相呼应,加以灯光的点缀渲染,丰富空间的同时,创造出无限的浪漫... 材料清单:天然大理石、天然奢石、灰色大板瓷砖,艺术漆,灰泥,原木混油烤漆饰面等。
  • 图片
  • 图片
  • 图片
  • 图片
  • 图片
  • 图片
  • 图片
  • 图片
  • 图片
  • 图片
  • 图片
  • 图片
  • 图片
  • 图片
  • 图片
  • 图片
  • 图片
  • 图片
  • 图片
  • 图片
  • 图片
  • 图片
  • 图片
  • 图片
  • 图片
  • 图片
  • 图片
  • 图片
  • 图片
  • 图片
  • 图片
  • 图片
  • 图片
  • 图片
  • 图片
  • 图片
  • 图片
  • 图片
  • 图片
  • 图片
  • 图片
  • 图片
  • 图片
  • 图片
  • 图片
  • 图片
  • 图片
  • 图片
  • 图片
  • 图片
  • 图片
  • 图片
  • 图片
  • 图片
  • 图片
  • 图片
  • 图片
  • 图片
  • 图片
  • 图片
  • 图片
  • 上一个 下一个
    《金腾奖优秀作品年鉴》 私宅丨地产丨餐饮丨酒店丨办公丨商业丨公共丨产品丨公益丨人气 jintengAWARD(小金_金腾奖组委会) 广州市海珠区琶洲大道68号华新中心21楼
    金腾奖视频号 金腾奖小红书号 监制:闫虹
    统筹:吴佳佳
    运营:朱倩仪 王赫萱 张芷莹 胡岚恩 小金
    新媒体:王贝贝 严洁 侯乐 鹅姐
    经纪:刘译遥 石征 曹凯月
    技术:张桐 黄天佑
    最终解释权归金腾奖主办方所有