benfan
作品详情
  • Details of the work 标题横线
    头像或者logo
    图片 唐娟 华浔品味装饰集团特约推荐
    城市:临沂
    公司: 广东华浔品味装饰临沂分公司
    参赛作品: 本凡
    空间类型:公寓(150㎡以下)
    个人/公司简介:
    中国室内设计师联盟协会会员 临沂室内装饰协会会员 毕业于山东大学艺术设计专业 工作经历: 2010年选修环境与艺术专业,2015年进入家装行业 现任广东华浔品味装饰临沂分公司首席设计师 设计感言: 空间所表达的意义,不仅仅是安顿身心的栖居之所,还是让我们寻找到自我本真情感与精神认同的场域。
    设计说明 | Design Instruction
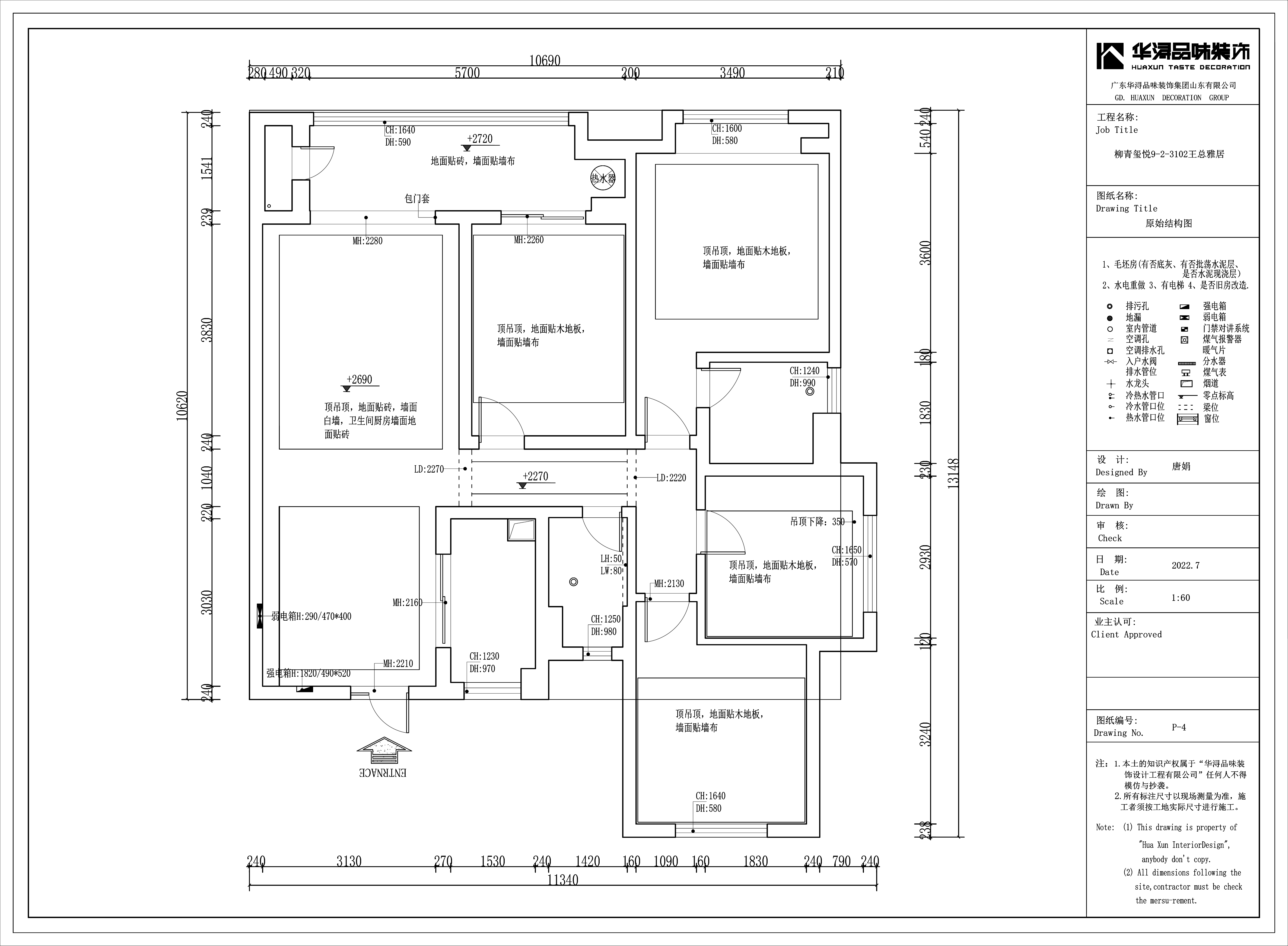
  • 设计单位 华浔品味装饰临沂分公司 首席设计师 唐娟 项目地址 临沂 柳青玺悦 完工时间 2023年2月 本凡 在喧嚣的都市里不随波逐流,遵循内心最本质的呐喊。本案是精装房改造,开发商的配备已经满足不了当下时尚业主的情感需求与内心对美好家的渴求。整体设计以深色温馨为主调,点缀当下流行的材质元素。打造时尚又温馨的居家环境。 黑白灰是极简生活方式的断舍离,克制获得的自由。 黑白灰是永恒的设计美学,极简素雅的色彩代表着一种现代精神,光线充足,简洁沉稳,没有过多的细节雕琢,静谧沉默。 简单又动人,是对高级感的诠释。越简单,越能看出事物的本真。越本真,越能治愈心灵。有的设计恰到好处的服务于生活,让喜欢更纯粹的表达,没有矫揉造作、没有浓墨重彩,却真诚又热烈。 极致又深情的家是身与心的留居地,近都市,远喧嚣,寄托美好的生活姿态,情致、志趣与需求,它独特、纯粹,且不可替代。人生向美,反复着一边剥夺一边馈赠的成全,保持热爱,平衡着无尽辛酸无限浪漫的沉淀,大道至简,归于本心。
  • 图片
  • 图片
  • 图片
  • 图片
  • 图片
  • 图片
  • 图片
  • 图片
  • 图片
  • 图片
  • 图片
  • 图片
  • 图片
  • 图片
  • 图片
  • 图片
  • 图片
  • 图片
  • 图片
  • 图片
  • 图片
  • 图片
  • 上一个 下一个
    《金腾奖优秀作品年鉴》 私宅丨地产丨餐饮丨酒店丨办公丨商业丨公共丨产品丨公益丨人气 jintengAWARD(小金_金腾奖组委会) 广州市海珠区琶洲大道68号华新中心21楼
    金腾奖视频号 金腾奖小红书号 监制:闫虹
    统筹:吴佳佳
    运营:朱倩仪 王赫萱 张芷莹 胡岚恩 小金
    新媒体:王贝贝 严洁 侯乐 鹅姐
    经纪:刘译遥 石征 曹凯月
    技术:张桐 黄天佑
    最终解释权归金腾奖主办方所有