mobai haitang
作品详情
  • Details of the work 标题横线
    头像或者logo
    图片 吴敏 华浔品味装饰集团特约推荐
    城市:临沂
    公司: 广东华浔品味装饰临沂分公司
    参赛作品: 墨白-海棠
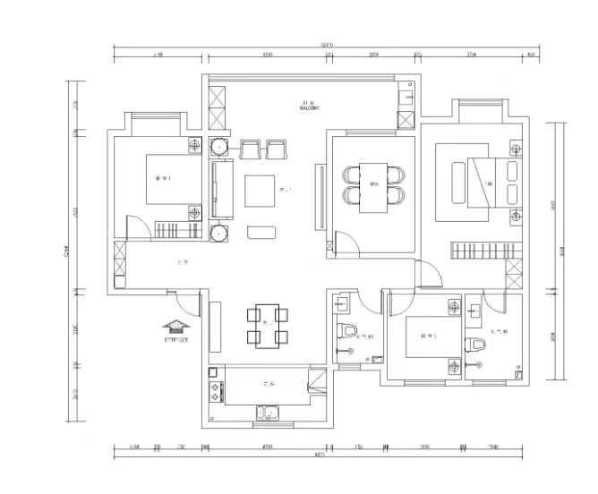
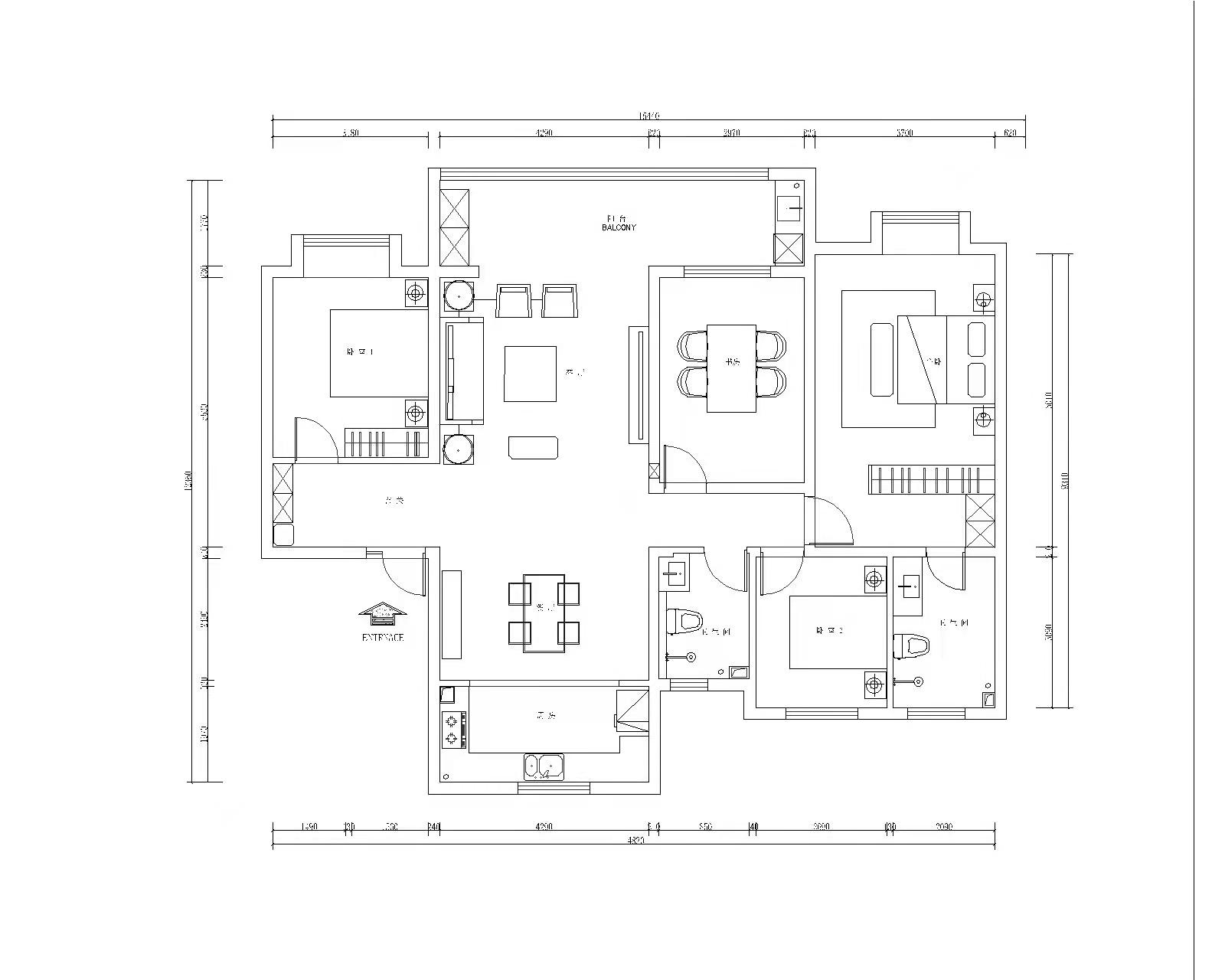
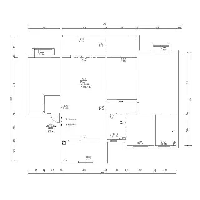
    空间类型:公寓(150㎡以下)
    个人/公司简介:
    吴 敏 广东华浔品味装饰临沂分公司 设计总监 中国建筑装饰协会高级室内建筑师 注册号A052810SA110514 中国室内装饰协会CIDA高级室内设计师 注册号11503971 中国室内装饰协会CIDA中级室内设计师 注册号ZY20803226 中国室内软装装饰设计协会会员 2006-2012 广州三星装饰任首席设计师。 2012-2015 威海三星装饰万象城工作室设计总监 2015-2016 烟台华浔品味山东有限公司首席设计师 2016-今 临沂华浔品味山东有限公司设计总监 『设计理念』:生活无边,设计无界。 电话/微信13563183571 中国装饰设计奖(CBDA设计奖):公寓、别墅空间工程类 银奖 2020年4040山东省榜 2021年4040山东省榜 2021年4040山东临沂城市榜 2021世界青年设计师论坛金奖 2021潮设计奖TOP100 2021 G+全球设计精英大赛TOP10 2021 她设计奖 2022 山东临沂好设计奖金奖 ……
    设计说明 | Design Instruction
  • 墨白 极简美学是接受渐渐消逝生命、接受无可避免的审美态度。 去掉所有不必要的,无碍地在星球上漫步,“物质贫乏,精神富足”,摒弃分别心,看清无常,注重本心。越朴素的东西反而越高贵。 使用主体白色,在光配合下有各种变色,包括古董白、乳白色、亚麻白、米白色、纸色、雪白、珍珠白以及象牙白,它们会比纯白色显得更温和或不那么僵硬。 很多白色可以和蓝色搭配成一个冬天风格的色盘,或者和墨绿搭配出一种夏天的味道 于此,空间与艺术、与时间锻造的故事是和谐的, 让时空既是流动,又是静止。时间,让人看见更美的艺术本质 极致的白,让人安静 项目名称丨中国.临沂.奥德海棠 私宅 硬装设计丨华浔品味装饰-山东临沂公司 项目主创丨吴 敏 完成时间丨2022.07 关联诗词 1山居秋瞑 唐 王维 空山新雨后,天气晚来秋。明月松间照,清泉石上流。 2雨晴 唐 王驾 雨前初现花间蕊,雨后全无叶底花。蜂蝶纷纷过墙去,却疑春色在邻家。 3鹿柴 唐 王维 空山不见人,但闻人语响。反景入深林,复照青苔上。
  • 图片
  • 图片
  • 图片
  • 图片
  • 图片
  • 图片
  • 图片
  • 图片
  • 图片
  • 图片
  • 图片
  • 图片
  • 图片
  • 图片
  • 图片
  • 图片
  • 图片
  • 图片
  • 图片
  • 图片
  • 图片
  • 图片
  • 图片
  • 图片
  • 图片
  • 图片
  • 图片
  • 上一个 下一个
    《金腾奖优秀作品年鉴》 私宅丨地产丨餐饮丨酒店丨办公丨商业丨公共丨产品丨公益丨人气 jintengAWARD(小金_金腾奖组委会) 广州市海珠区琶洲大道68号华新中心21楼
    金腾奖视频号 金腾奖小红书号 监制:闫虹
    统筹:吴佳佳
    运营:朱倩仪 王赫萱 张芷莹 胡岚恩 小金
    新媒体:王贝贝 严洁 侯乐 鹅姐
    经纪:刘译遥 石征 曹凯月
    技术:张桐 黄天佑
    最终解释权归金腾奖主办方所有