Qianmaoshanzhuang
作品详情
  • Details of the work 标题横线
    头像或者logo
    图片 王强
    城市:南昌
    公司: 华浔品味装饰集团
    参赛作品: 乾茂山庄
    空间类型:公寓(150㎡以下)
    个人/公司简介:
    工作单位:广东华浔品味装饰集团南昌分公司 职务:首席设计师 毕业于南昌航空大学艺术系 · 环境艺术设计专业 从业年限:8年 擅长风格:现代轻奢、新中式、北欧风格 中国室内装饰协会高级室内设计师 2015年 获江西十佳新锐设计师奖 2016年 获南昌城市十大精英设计师 2019年 获中国 · 江西设计师精英磐石奖 2021年 获第六届金马克杯铜奖 设计理念:设计是一种追求完美的生活态度 设计是一种追求品味的生活概念
    设计说明 | Design Instruction
  • 半山雄峨碧色,半山烟云浩渺,是本案刚柔并济的生命气色。半山沧海桑田,半山清辉不减,是本案屹立千年的精神内核。承袭这一气韵,独得天时地利人和的加持,无论从本案的文化传承,还是现代审美意趣,东方气质下的精细考究,是对自然尊崇与居住情趣的最佳诠释。
  • 图片
  • 图片
  • 图片
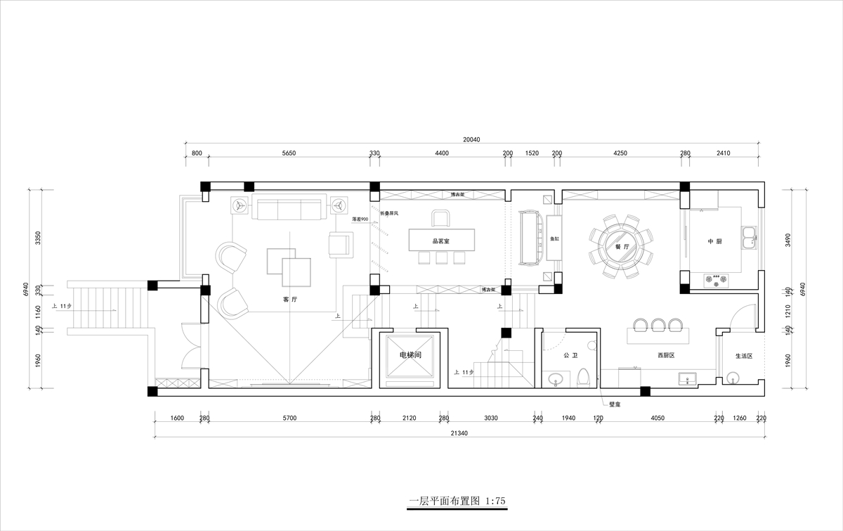
  • 图片
  • 图片
  • 图片
  • 图片
  • 图片
  • 图片
  • 图片
  • 图片
  • 图片
  • 图片
  • 图片
  • 图片
  • 图片
  • 图片
  • 图片
  • 图片
  • 图片
  • 图片
  • 图片
  • 图片
  • 上一个 下一个
    《金腾奖优秀作品年鉴》 私宅丨地产丨餐饮丨酒店丨办公丨商业丨公共丨产品丨公益丨人气 jintengAWARD(小金_金腾奖组委会) 广州市海珠区琶洲大道68号华新中心21楼
    金腾奖视频号 金腾奖小红书号 监制:闫虹
    统筹:吴佳佳
    运营:朱倩仪 王赫萱 张芷莹 胡岚恩 小金
    新媒体:王贝贝 严洁 侯乐 鹅姐
    经纪:刘译遥 石征 曹凯月
    技术:张桐 黄天佑
    最终解释权归金腾奖主办方所有