shiguangyijing
作品详情
  • Details of the work 标题横线
    头像或者logo
    图片 吴敏 华浔品味装饰集团特约推荐
    城市:临沂
    公司: 广东华浔品味装饰临沂分公司
    参赛作品: 拾光逸境 品味海棠
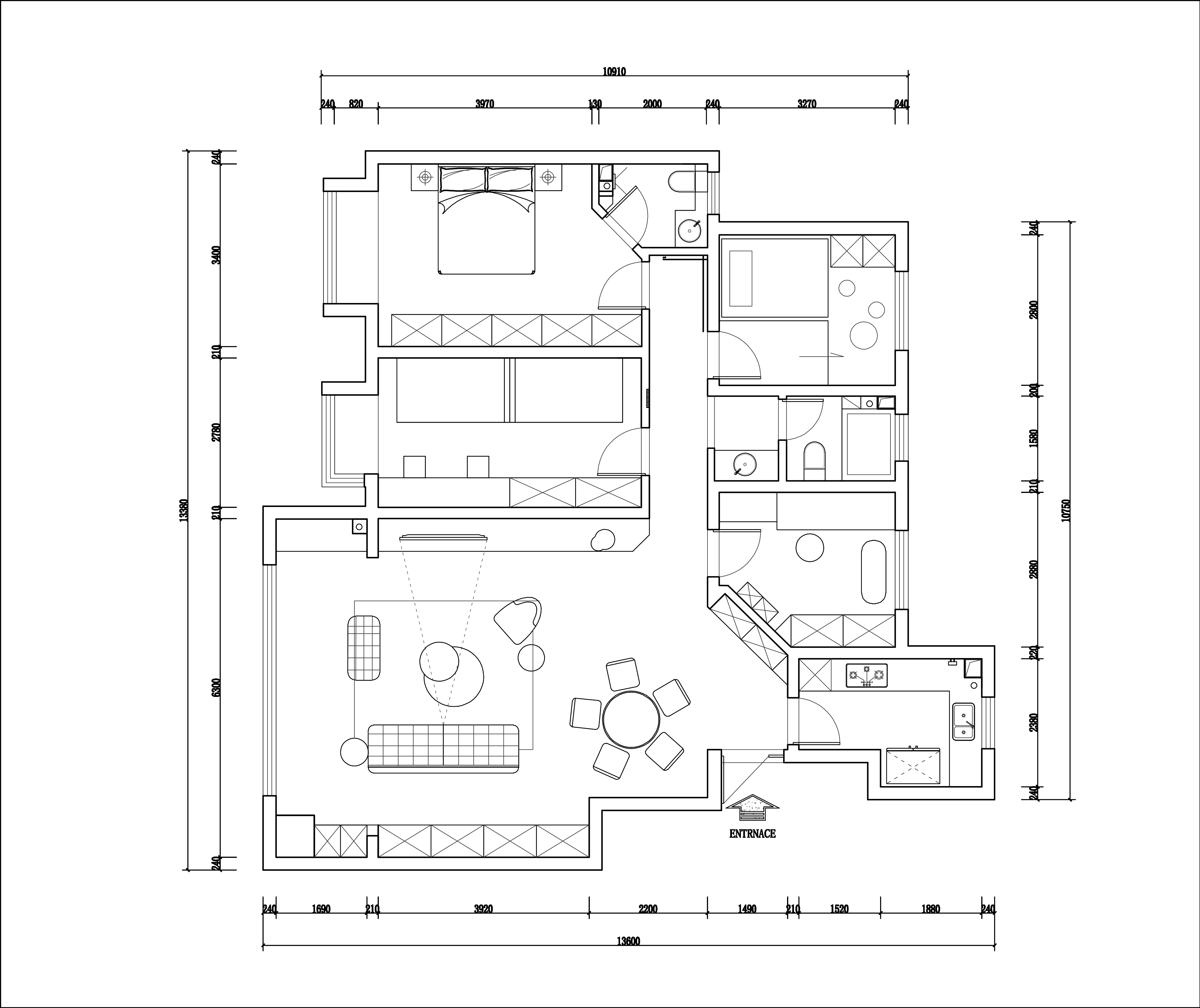
    空间类型:公寓(150㎡以下)
    个人/公司简介:
    吴 敏 广东华浔品味装饰临沂分公司 设计总监 中国建筑装饰协会高级室内建筑师 注册号A052810SA110514 中国室内装饰协会CIDA高级室内设计师 注册号11503971 中国室内装饰协会CIDA中级室内设计师 注册号ZY20803226 中国室内软装装饰设计协会会员 2006-2012 广州三星装饰任首席设计师。 2012-2015 威海三星装饰万象城工作室设计总监 2015-2016 烟台华浔品味山东有限公司首席设计师 2016-今 临沂华浔品味山东有限公司设计总监 『设计理念』:生活无边,设计无界。 电话/微信13563183571 中国装饰设计奖(CBDA设计奖):公寓、别墅空间工程类 银奖 2020年4040山东省榜 2021年4040山东省榜 2021年4040山东临沂城市榜 2021世界青年设计师论坛金奖 2021潮设计奖TOP100 2021 G+全球设计精英大赛TOP10 2021 她设计奖 2022 山东临沂好设计奖金奖 ……
    设计说明 | Design Instruction
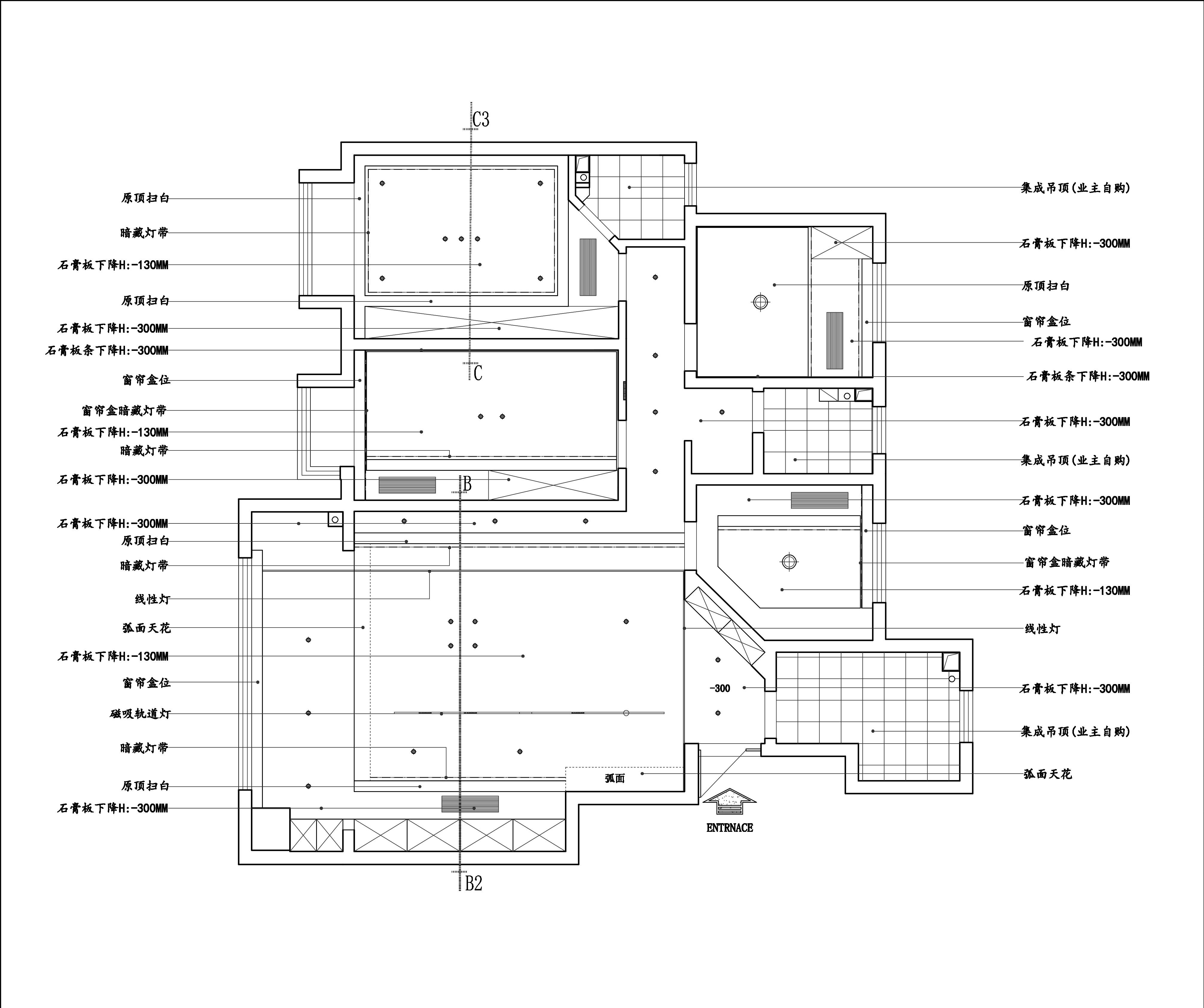
  • 拾光逸境 品味海棠 谈及家的理想模样, 我们大概穷极一生,都探寻不完所有的答案 唯一肯定的是 家必定是,有灵魂有理想的生活的场域 才能让平淡琐碎的生活, 充满无限的诗意 屋内的舒适就这样通过一览无余的窗,嵌进大自然里去。它很美,但我们今天要讲的是和窗景一样美妙的设计改造。 本案屋主拿到的是一个中规中矩的,3室2厅,它是很方正,尤其是进门的玄关区,让厨房和餐厅弯隔了一道厚厚的屏障,空间一下子被挤压。餐厅和厨房之间的墙体阻碍了大部分视线、一家四口3个卧室想要多点收纳,还想要一个独立电竞书房……通过结构的调整,解决了这些问题。 打开拥堵的小玄关,沙发是观景台,可以呆上一整天,不容易发现的、斜切动线为沉浸空间注入律动的灵活,沿墙收纳,运用弧形墙体减少视觉突兀。 使得回家充满仪式感。 椭圆型大理石餐桌搭配皮质餐椅,带来沉稳高级氛围, 收获宁静而纯粹的用餐时光。 与客厅相连的餐厅改成书房,弧形电视墙居中而立,形成客厅与过道的洄游动线,加强空间联动感;以黑白灰为基调,选择柔光质感的大砖采用通铺方式,瞬间营造出了高级质朴的自然气息墨色布达佩斯沙发,搭配方形羊毛地垫和圆形小茶几,朴素中带着高级 阳台全部并入客厅,加强客厅开阔感,利用客厅和入户的空间用曲面强化餐厅区域感,实现餐厨区开放动线,生活便捷沟通顺畅; 卧室区域入门墙全拆解,用极简门和艺术漆形成一体走廊,弧形过道端景巧妙过渡连接卧室,再次出现的弧面元素让空间神秘出彩,尽显独树一帜的空间气质;注入独特的优雅气息,让空间更加灵动精致,减少循规蹈矩的刻板感。 儿童房是专属孩子的领地,温润的色彩,渲染出温馨自然的居家氛围 “能够让人长时间持续地住下去的最大理由,其实在于绝妙的平面设计。”在普通的住宅里面,设计想法在图纸上更洗练,思考更清晰。让已经被看过千百次的户型,有了“重新被看待的感觉”。 项目名称丨中国.临沂.奥德海棠 私宅 硬装设计丨华浔品味装饰-山东临沂公司 项目主创丨吴 敏 完成时间丨2023.01
  • 图片
  • 图片
  • 图片
  • 图片
  • 图片
  • 图片
  • 图片
  • 图片
  • 图片
  • 图片
  • 图片
  • 图片
  • 图片
  • 图片
  • 图片
  • 图片
  • 图片
  • 图片
  • 图片
  • 图片
  • 图片
  • 图片
  • 图片
  • 图片
  • 图片
  • 图片
  • 图片
  • 图片
  • 上一个 下一个
    《金腾奖优秀作品年鉴》 私宅丨地产丨餐饮丨酒店丨办公丨商业丨公共丨产品丨公益丨人气 jintengAWARD(小金_金腾奖组委会) 广州市海珠区琶洲大道68号华新中心21楼
    金腾奖视频号 金腾奖小红书号 监制:闫虹
    统筹:吴佳佳
    运营:朱倩仪 王赫萱 张芷莹 胡岚恩 小金
    新媒体:王贝贝 严洁 侯乐 鹅姐
    经纪:刘译遥 石征 曹凯月
    技术:张桐 黄天佑
    最终解释权归金腾奖主办方所有