Xinshengdaichuangyibangongkongjian
作品详情
  • Details of the work 标题横线
    头像或者logo
    图片 陈健
    城市:靖江
    公司: 广东华浔品味装饰靖江分公司
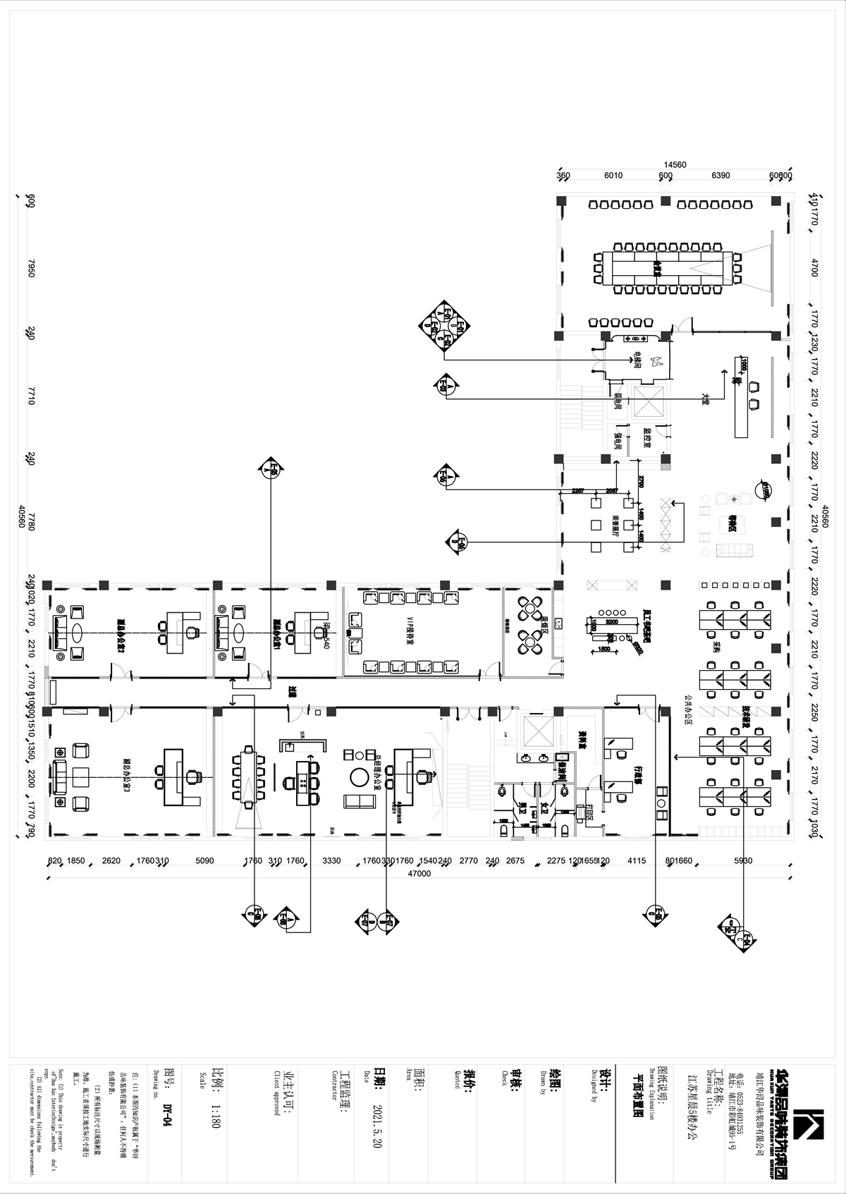
    参赛作品: 新生代创意办公空间
    空间类型:办公
    个人/公司简介:
    姓名:陈健 性别:男 工作单位:广东华浔品味装饰靖江分公司 职务:设计总监 个人履历: 2002年涉足装饰行业 2009-2011广东星艺无锡区域设计总监 2015年游学德国,进修Bauhaus-Universitar Weimar-德国包豪斯大学设计学院。 2017游学意大利,进修米兰理工大学 2018进修北京清华大学美术学院 获奖: 2021金住奖 中国(泰州)十大居住空间设计师 第五届家装产业创新大赛红鼎优秀作品 创意双城.2020创意生活设计(金蝴蝶)奖 第六届金马克室内设计大赛年度公共空间类 十佳 第六届金马克室内设计大赛年度品味别墅类TOP50
    设计说明 | Design Instruction
  • 这次设计中,我们希望能够打破传统意义上的封闭式秩序感,创建出自由状态的办公环境。所有人的工作状 态都将处于集体的可视范围内,每一个工作区间都为开放式的无遮挡状态,所有的行为规范及秩序性都在同 事间的自我约束中产生,从而构成积极化的工作环境 同一空间形成不同的生活状态,即使在私密领域,我们仍然拥有对生活的选择。
  • 图片
  • 图片
  • 图片
  • 图片
  • 图片
  • 图片
  • 图片
  • 图片
  • 图片
  • 图片
  • 图片
  • 图片
  • 图片
  • 图片
  • 图片
  • 图片
  • 图片
  • 图片
  • 图片
  • 图片
  • 图片
  • 图片
  • 图片
  • 图片
  • 图片
  • 图片
  • 图片
  • 图片
  • 图片
  • 图片
  • 图片
  • 图片
  • 图片
  • 图片
  • 上一个 下一个
    《金腾奖优秀作品年鉴》 私宅丨地产丨餐饮丨酒店丨办公丨商业丨公共丨产品丨公益丨人气 jintengAWARD(小金_金腾奖组委会) 广州市海珠区琶洲大道68号华新中心21楼
    金腾奖视频号 金腾奖小红书号 监制:闫虹
    统筹:吴佳佳
    运营:朱倩仪 王赫萱 张芷莹 胡岚恩 小金
    新媒体:王贝贝 严洁 侯乐 鹅姐
    经纪:刘译遥 石征 曹凯月
    技术:张桐 黄天佑
    最终解释权归金腾奖主办方所有