qingyuntai
作品详情
  • Details of the work 标题横线
    头像或者logo
    图片 魏 君 华浔品味装饰集团特约推荐
    城市:泸州市
    公司: 华浔品味装饰集团·HA艺墅设计院
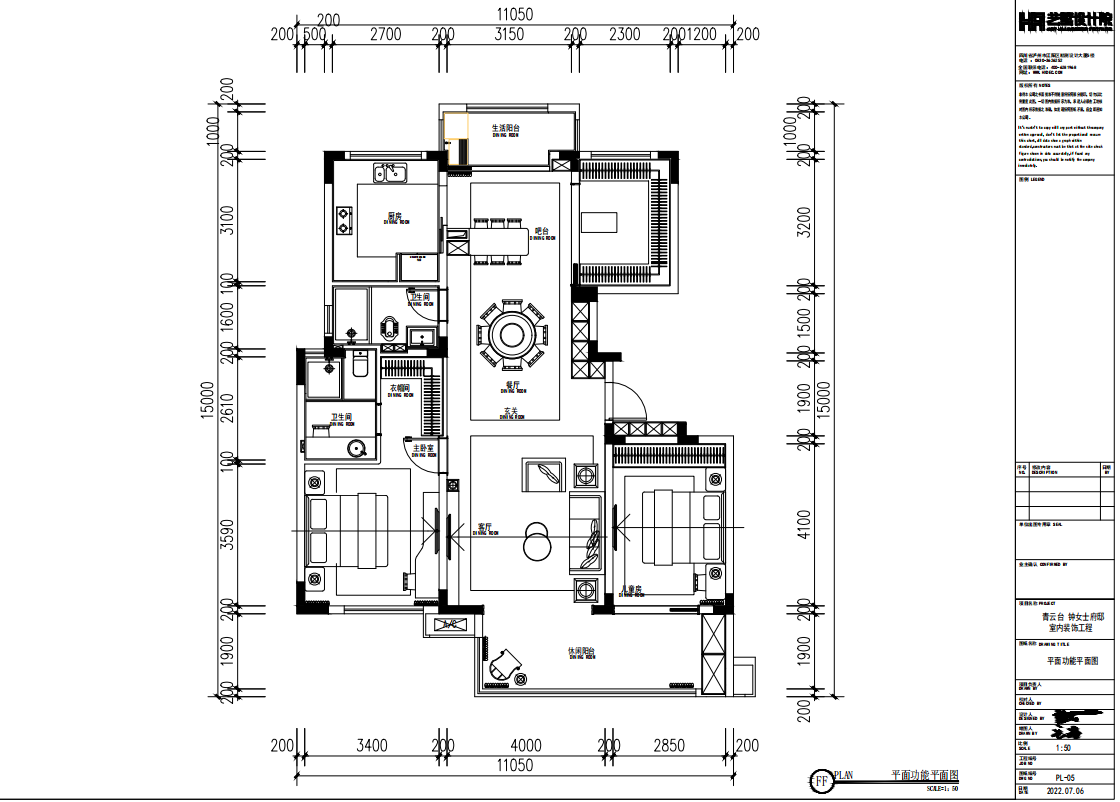
    参赛作品: 青云台
    空间类型:公寓(150㎡以下)
    个人/公司简介:
    从业时间:13年 教育背景:四川美术学院(环境艺术设计系) 从业经历: 2010-2011 香港四合尚品景观设计有限公司 景观设计师 2011-2014 上海凌境建筑设计院 建筑设计师 2014-2015 成都九鼎日盛装饰工程有限公司 设计总监 2016-2017 四川纵横装饰设计有限公司 总经理&设计总监 2017-2018 四川起飞建筑工程有限公司 项目总监 2019-2020 四川龙发装饰工程有限公司 设计总监 2020-2021 广东华浔品味装饰工程有限公司 技术总监 2021-2023 华浔品味装饰集团·HA艺墅设计院 技术总监 擅长:①大平层、别墅户型优化设计 ②酒店餐饮及公共空间设计 ③建筑结构优化,景观庭院设计 设计理念:取舍有道,繁简共生 代表作品:麓湖,麓山国际,黑鹰庄园,蔚蓝卡地亚,桂圆里,青云台、玺悦、天誉誉府、长岛国际、江悦明珠、江湾城等
    设计说明 | Design Instruction
  • 居室整体采用中性色调,稳重,大气,不失品味,有令人眼前一亮的感觉。最重要的是强调功能性设计,线条简约流畅,色彩对比强,这是现代风格的特性
  • 图片
  • 图片
  • 图片
  • 图片
  • 图片
  • 图片
  • 图片
  • 图片
  • 图片
  • 图片
  • 图片
  • 图片
  • 图片
  • 图片
  • 图片
  • 图片
  • 图片
  • 图片
  • 图片
  • 图片
  • 图片
  • 图片
  • 图片
  • 图片
  • 图片
  • 图片
  • 上一个 下一个
    《金腾奖优秀作品年鉴》 私宅丨地产丨餐饮丨酒店丨办公丨商业丨公共丨产品丨公益丨人气 jintengAWARD(小金_金腾奖组委会) 广州市海珠区琶洲大道68号华新中心21楼
    金腾奖视频号 金腾奖小红书号 监制:闫虹
    统筹:吴佳佳
    运营:朱倩仪 王赫萱 张芷莹 胡岚恩 小金
    新媒体:王贝贝 严洁 侯乐 鹅姐
    经纪:刘译遥 石征 曹凯月
    技术:张桐 黄天佑
    最终解释权归金腾奖主办方所有