lvgui
作品详情
  • Details of the work 标题横线
    头像或者logo
    图片 萧凤 华浔品味装饰集团特约推荐
    城市:泸州市
    公司: 华浔HA艺墅设计院
    参赛作品: 旅.归
    空间类型:公寓(150㎡以下)
    个人/公司简介:
    社会身份:中国室内设计委员 从业时间:11年 设计理念:返璞归真的生活方式和与时俱进的精神理念结合,体现房屋家的气质 代表案例:托斯卡纳别墅,凤凰首府别墅,蓝光长岛别墅,金科叠墅,绿韵复式 所获奖项: 2015年全国华浔优秀设计师 2016年全国华浔优秀设计师 2017年全国华浔优秀设计师 2018年全国华浔优秀设计师 2018年华浔全国优秀作品效果奖 2019年金住奖泸州城市十大设计师 2019年金住奖全国百杰设计师 2021年中国新地产设计年度优秀别墅设计奖
    设计说明 | Design Instruction
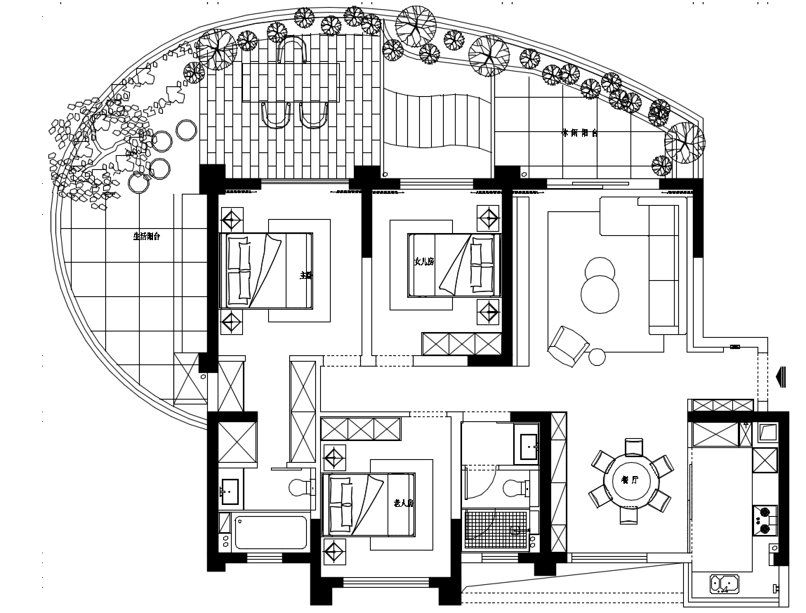
  • 又见故乡炊烟起,繁星满月照大地。若非生活不易,谁愿只身飘万里。 儿时拼命逃离的地方,如今是魂牵梦萦的故乡 看过世界的人,最想回家 本案主人翁长期旅居广州,在外生活了20来年,随着年龄增长和父母年迈,一直想着在泸州有个家;可以每月回家看望父母和有人相聚。 本案需求:保留原始户型结构,父母偶尔来住,有两个女儿,设计喜欢温馨简约的 业主印象:第一次见王哥 温文尔雅 阐述房子主要是考虑回来方便陪父母。同时对花园露台的想法是希望有个茶室方便泸州会友。
  • 图片
  • 图片
  • 图片
  • 图片
  • 图片
  • 图片
  • 图片
  • 图片
  • 图片
  • 图片
  • 图片
  • 图片
  • 图片
  • 图片
  • 图片
  • 图片
  • 图片
  • 图片
  • 图片
  • 图片
  • 图片
  • 图片
  • 图片
  • 图片
  • 图片
  • 图片
  • 图片
  • 图片
  • 图片
  • 图片
  • 图片
  • 上一个 下一个
    《金腾奖优秀作品年鉴》 私宅丨地产丨餐饮丨酒店丨办公丨商业丨公共丨产品丨公益丨人气 jintengAWARD(小金_金腾奖组委会) 广州市海珠区琶洲大道68号华新中心21楼
    金腾奖视频号 金腾奖小红书号 监制:闫虹
    统筹:吴佳佳
    运营:朱倩仪 王赫萱 张芷莹 胡岚恩 小金
    新媒体:王贝贝 严洁 侯乐 鹅姐
    经纪:刘译遥 石征 曹凯月
    技术:张桐 黄天佑
    最终解释权归金腾奖主办方所有