guangyuying
作品详情
  • Details of the work 标题横线
    头像或者logo
    图片 张磊落 华浔品味装饰集团特约推荐
    城市:金阳
    公司: 华浔品味装饰(金阳店)
    参赛作品: 光与影
    空间类型:公寓(150㎡以下)
    个人/公司简介:
    张磊落 设计师介绍Designer introduction 设计师是个磨人的职业 看上去挥斥方遒指点江山 但背地里都承受着一份枯燥 学习是枯燥的,领悟是枯燥的 排解是枯燥的,辛酸是枯燥的 而他化枯燥为乐趣,享受设计 他是,张磊落 姓名:张磊落 中国建筑协会室内设计分会会员 中国建筑协会CIID室内注册建筑师 中国室内装饰协会会员 从业时间:7年 擅长风格:现代、新中式、轻奢、中式、极简 设计理念:看不同的风景,做不同的设计 代表作品:中航城、阅山湖、琉森堡、美的林城时代 、美的国宾府、中铁逸都、未来方舟、保利大国璟、新城玺越台等 擅长领域:空间优化、家具设计、灯光深化、美学设计
    设计说明 | Design Instruction
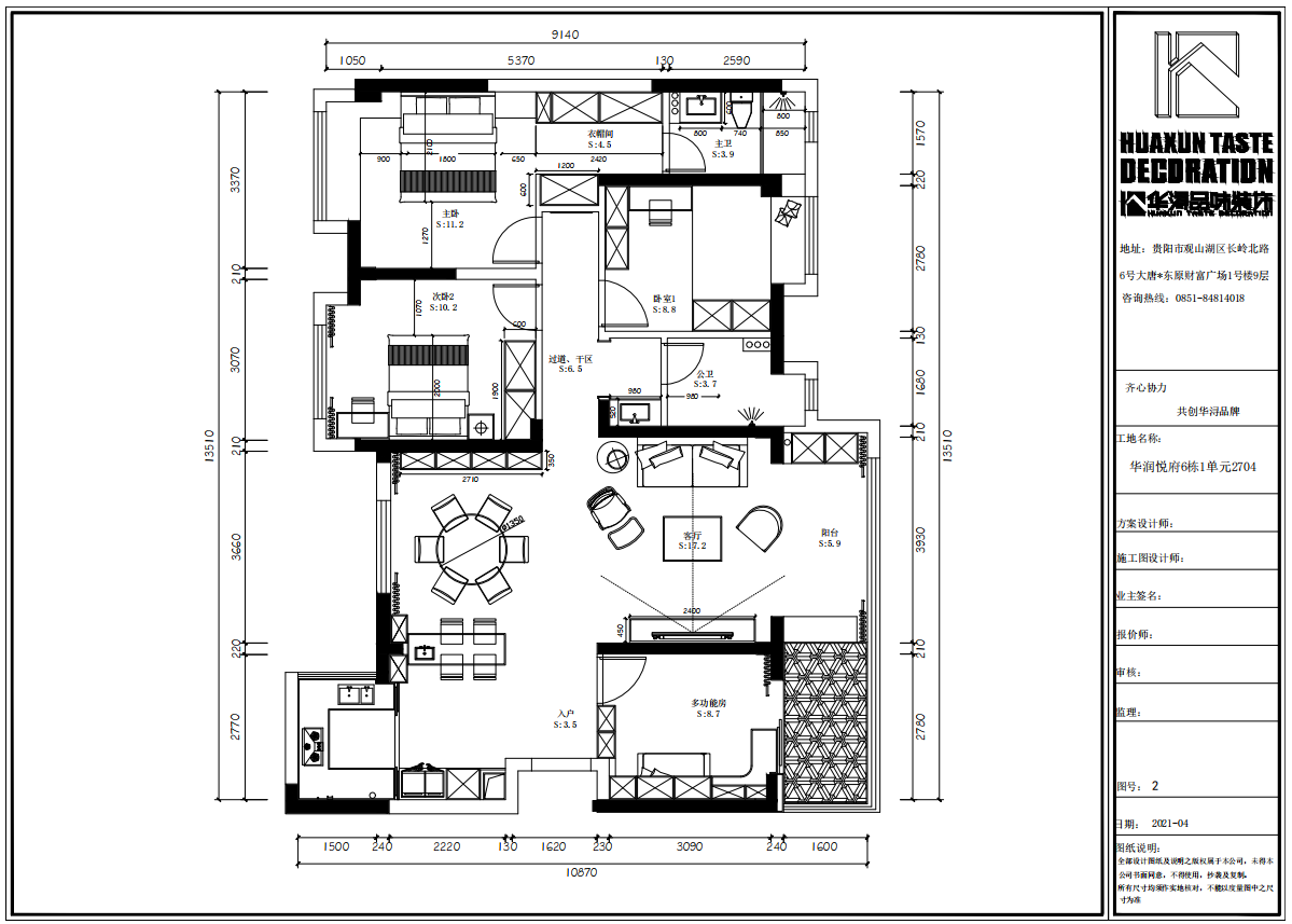
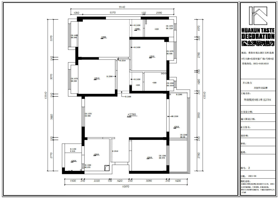
  • 风格:现代风格 面积:130㎡ 地点:华润悦府 设计师:张磊落 作品名称:《光与影》 设计说明: 简洁是一种品位,在有限的空间满足更多的功能需求,整体布局设计转换自如,使得一个现代简约家居,既能满足现代生活的简约实用,又能富有温馨的生活气息。本案案例根据业主的意愿,充分考虑了其生活习惯,搭建了一个全新的完美空间,让平凡的家不再平凡。
  • 图片
  • 图片
  • 图片
  • 图片
  • 图片
  • 图片
  • 图片
  • 图片
  • 图片
  • 图片
  • 图片
  • 图片
  • 图片
  • 图片
  • 图片
  • 图片
  • 图片
  • 图片
  • 图片
  • 图片
  • 上一个 下一个
    《金腾奖优秀作品年鉴》 私宅丨地产丨餐饮丨酒店丨办公丨商业丨公共丨产品丨公益丨人气 jintengAWARD(小金_金腾奖组委会) 广州市海珠区琶洲大道68号华新中心21楼
    金腾奖视频号 金腾奖小红书号 监制:闫虹
    统筹:吴佳佳
    运营:朱倩仪 王赫萱 张芷莹 胡岚恩 小金
    新媒体:王贝贝 严洁 侯乐 鹅姐
    经纪:刘译遥 石征 曹凯月
    技术:张桐 黄天佑
    最终解释权归金腾奖主办方所有