keqi
作品详情
  • Details of the work 标题横线
    头像或者logo
    图片 余星 华浔品味装饰集团特约推荐
    城市:金阳
    公司: 广东华浔品味装饰集团贵州有限公司
    参赛作品: 可期
    空间类型:公寓(150㎡以下)
    个人/公司简介:
    名字:余星 所属公司:广东华浔品味装饰集团贵州有限公司 从业经验:10年 擅长风格:轻奢风格、现代风格 设计理念:设计就是艺术,艺术就是生活,做生活与艺术的设计! 代表作品: 别墅:丽水名苑、中铁阅山湖、中航城别墅、保利2010、新世界翡翠谷、中铁逸都 大平层:未来方舟、融创九樾府、恒大金阳新世界、悠山悦景、华润悦府、中铁云著、美的林城时代 复式楼:华润国际社区、保利大国璟、龙湖天耀、未来方舟等 擅长风格:轻奢风格、现代风格 荣誉奖项: 中国建筑协会室内设计分会会员、 中国建筑协会CIID室内注册建筑师、 室内设计师协会会员
    设计说明 | Design Instruction
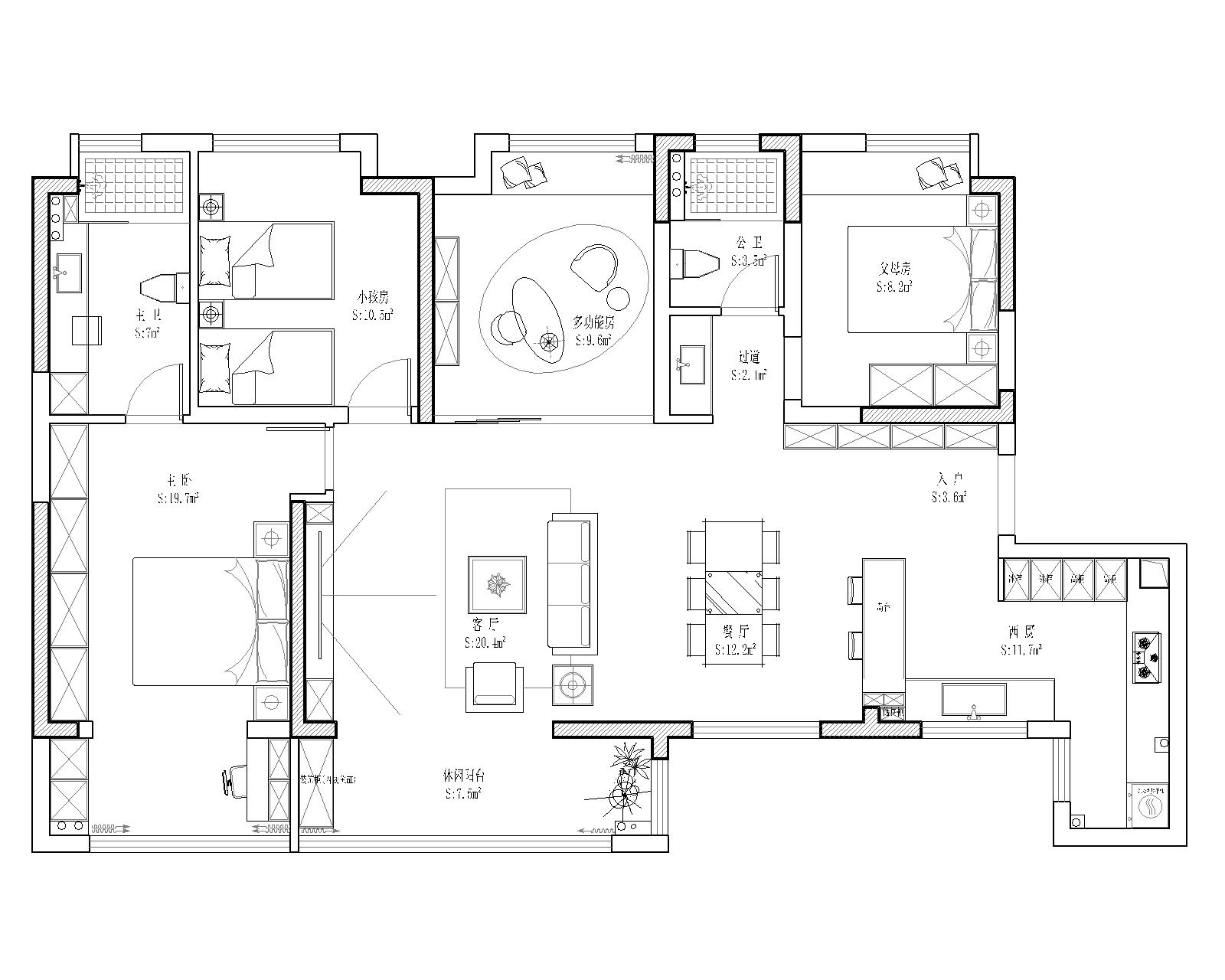
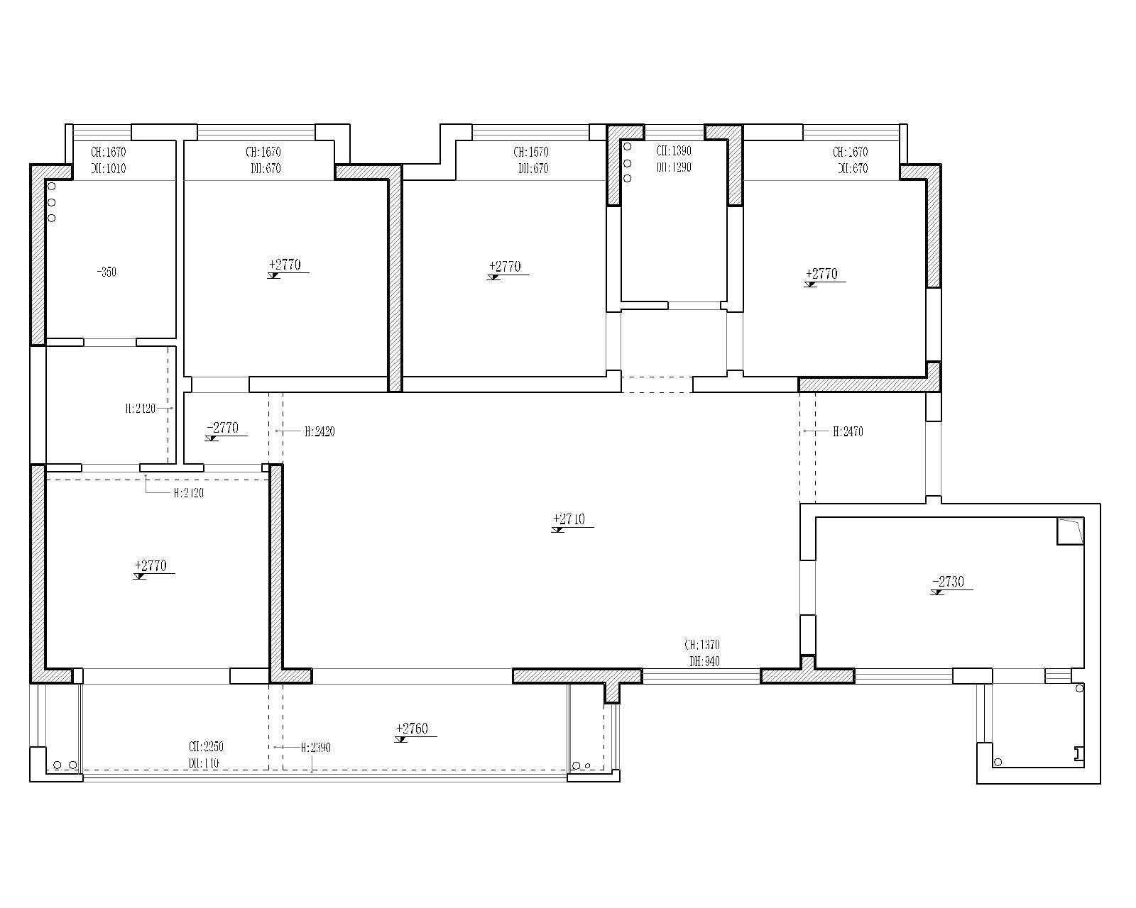
  • 地址:华润悦府 面积:139平方米 风格:奶油风 《可期》 设计说明 | 打造理想舒适的居住空间 由于是年轻小夫妻居住,喜欢暖色系色调,设计中考虑到房子的采光,结合业主的想法,设计成现代极简奶油风,定调在原木色系上,打造年轻人理想舒适的居住空间。 纯净的色彩,构筑自然的背景与主导,巧妙地捕捉这种沉思,每时每刻都产生内敛的优雅美感。时光静流,洋溢暖意与温情。 干净的线条,简洁明快的视觉印象,在纯粹的光华中,萃取生活美学,赋予一种极度舒适的尺度与氛围,不断勾勒充满阳光的氧气之家。
  • 图片
  • 图片
  • 图片
  • 图片
  • 图片
  • 图片
  • 图片
  • 图片
  • 图片
  • 图片
  • 图片
  • 图片
  • 图片
  • 图片
  • 图片
  • 图片
  • 图片
  • 图片
  • 图片
  • 图片
  • 图片
  • 图片
  • 图片
  • 图片
  • 图片
  • 图片
  • 图片
  • 图片
  • 上一个 下一个
    《金腾奖优秀作品年鉴》 私宅丨地产丨餐饮丨酒店丨办公丨商业丨公共丨产品丨公益丨人气 jintengAWARD(小金_金腾奖组委会) 广州市海珠区琶洲大道68号华新中心21楼
    金腾奖视频号 金腾奖小红书号 监制:闫虹
    统筹:吴佳佳
    运营:朱倩仪 王赫萱 张芷莹 胡岚恩 小金
    新媒体:王贝贝 严洁 侯乐 鹅姐
    经纪:刘译遥 石征 曹凯月
    技术:张桐 黄天佑
    最终解释权归金腾奖主办方所有