dushimoka
作品详情
  • Details of the work 标题横线
    头像或者logo
    图片 周游 华浔品味装饰集团特约推荐
    城市:成都市
    公司: 华浔泸州分公司
    参赛作品: 都市摩卡
    空间类型:公寓(150㎡以下)
    个人/公司简介:
    2002年毕业于重庆建筑大学建筑装饰技术专业 2003年加入中国建筑学会室内设计分会 2009年进修中级陈列设计师 2009年评定为高级室内建筑师 2012年清华大学进修硕士 2014年中国设计明星俱乐部第二界全国设计师峰会精英人物 2015年“百变未来平面创意大赛”优秀奖 2015年“第三届金马克杯室内设计大赛”铜奖 2015年“中南地区国际空间环境艺术设计大赛”华厦奖铜奖 游学印尼巴厘岛、韩国、日本、意大利、法国、西班牙、美 等多国,并多次被评为华浔集团“全国优秀总监”。
    设计说明 | Design Instruction
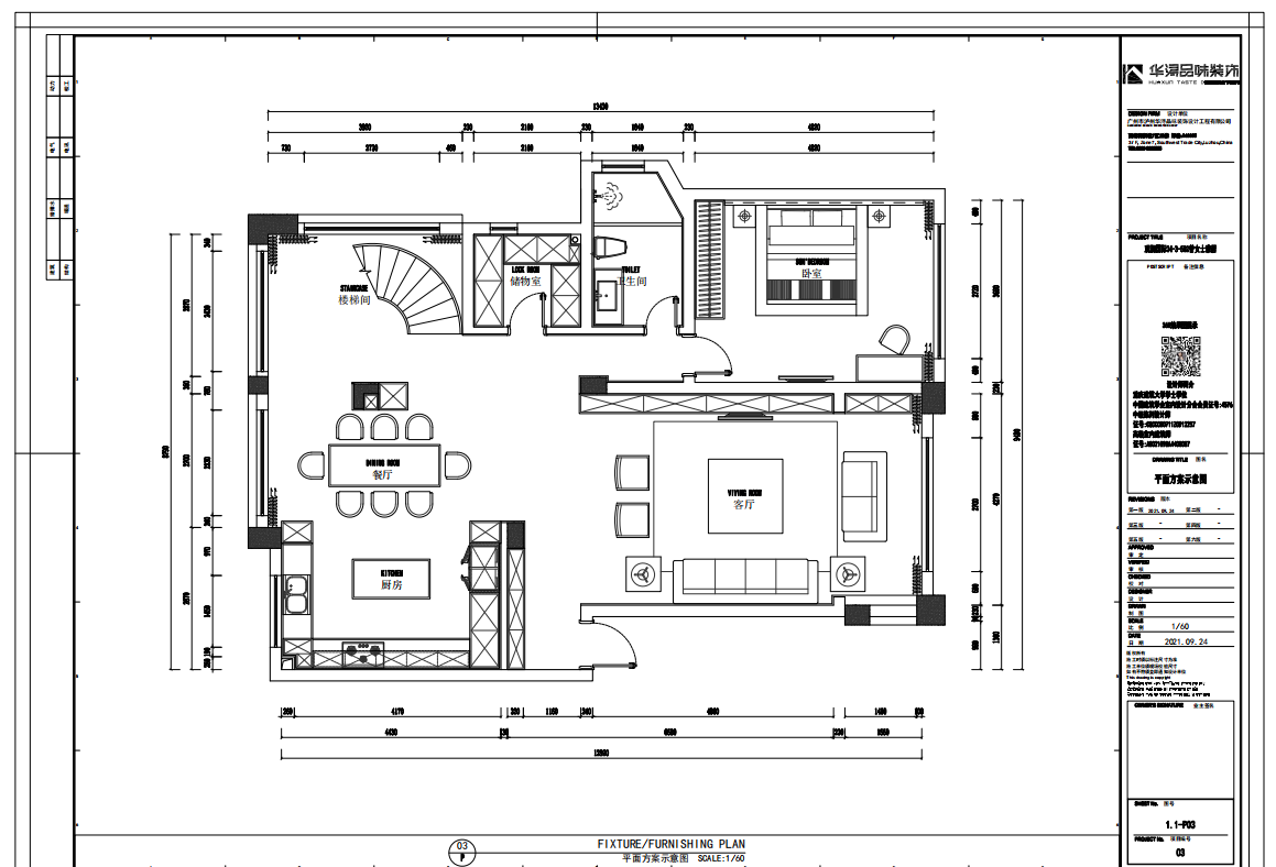
  • 一、本案设计理念:通过功能空间的合理优化改造,增加了整套房屋的生活实用品质, 满足了客户对于精致轻奢生活的需求。 二、空间设计说明: 1、门厅:集换鞋柜、鞋柜、雨具柜等于一体的多功能门厅柜,方便业主进出行前的一切配套 2、厨房:开放式厨房配以岛台设计,释放了空间,强大了功能 3、餐厅:巧妙地利用结构柱,隔断墙做成的三个酒水柜,足以展示泸州家庭的酒文化 4、楼梯厅:透过超大的落地玻璃,感知外部空间的阳光雨露,足不出户尽享大自然的美好瞬间,漂亮的吊灯既满足功能又拉满气场,将楼梯厅映衬得无比酷炫 5、客厅:满壁的电视墙柜充分赋予了电视墙功能性,内阳台的U型板设计配以线形灯的点缀,让空间增加了几分宁静的惬意 6、主卧:满足了睡眠区、休闲区、书房、衣帽间全功能配套的主卧空间,足以尽显主人的生活品质 主要材料:德贝全屋定制、美标卫浴、三峰照明、大金空调、TATA木门、一米阳光门窗
  • 图片
  • 图片
  • 图片
  • 图片
  • 图片
  • 图片
  • 图片
  • 图片
  • 图片
  • 图片
  • 图片
  • 图片
  • 图片
  • 图片
  • 图片
  • 图片
  • 图片
  • 图片
  • 图片
  • 图片
  • 图片
  • 图片
  • 图片
  • 图片
  • 图片
  • 图片
  • 上一个 下一个
    《金腾奖优秀作品年鉴》 私宅丨地产丨餐饮丨酒店丨办公丨商业丨公共丨产品丨公益丨人气 jintengAWARD(小金_金腾奖组委会) 广州市海珠区琶洲大道68号华新中心21楼
    金腾奖视频号 金腾奖小红书号 监制:闫虹
    统筹:吴佳佳
    运营:朱倩仪 王赫萱 张芷莹 胡岚恩 小金
    新媒体:王贝贝 严洁 侯乐 鹅姐
    经纪:刘译遥 石征 曹凯月
    技术:张桐 黄天佑
    最终解释权归金腾奖主办方所有