Biguiyuan Xunyangfu
作品详情
  • Details of the work 标题横线
    头像或者logo
    图片 袁引生
    城市:九江
    公司: 广东华浔品味装饰集团
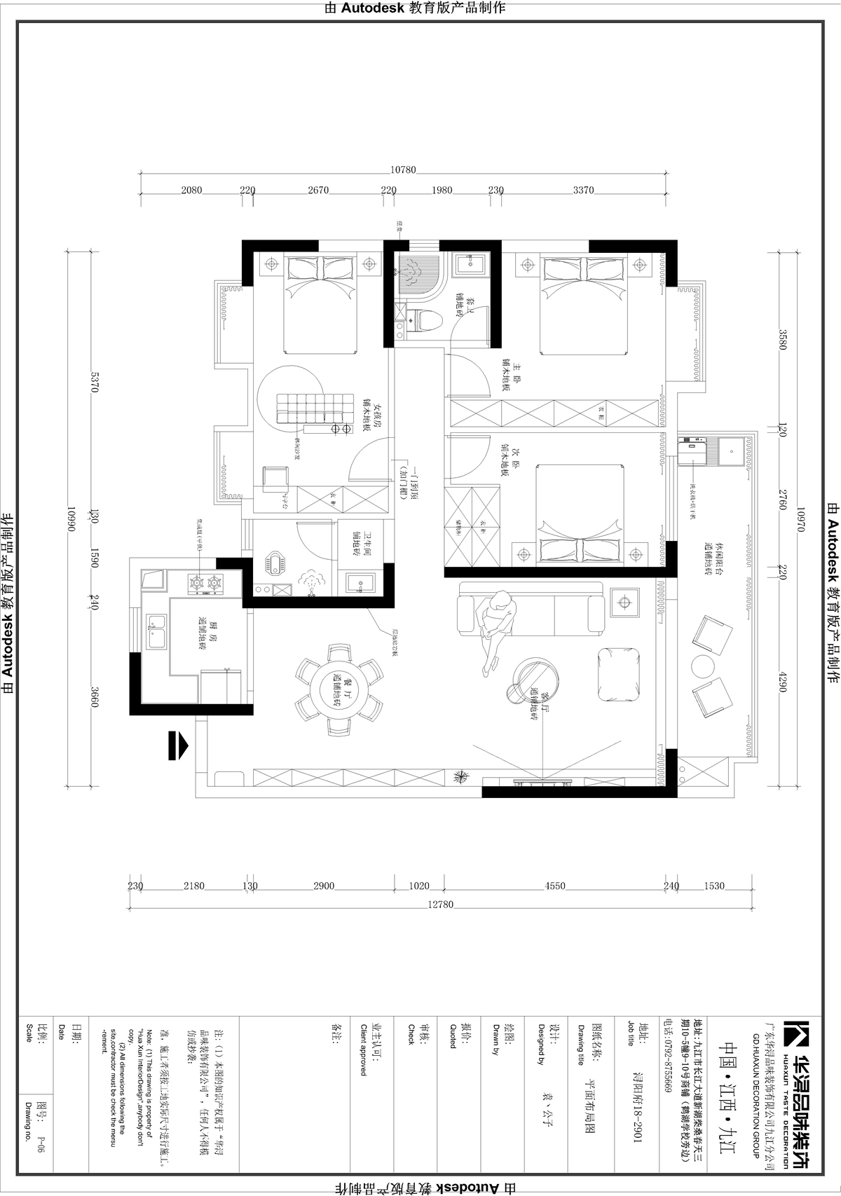
    参赛作品: 碧桂园浔阳府
    空间类型:公寓(150㎡以下)
    个人/公司简介:
    个人履历: 设计职位: 2012年毕业于江西丰良艺术学院。 2012年加入东莞华浔品味装饰。 2014年加入广东华浔品味装饰合肥分公司。 2019年至今加入广东华浔品味装饰九江分公司。 设计理念:艺术是生活的升华,设计是艺术的呈现。
    设计说明 | Design Instruction
  • 以美学做基石,以人文做材料。 在设计师与业主的精心创作之下家被构造的温馨又美观。 高质感的空间,通常都是以简单直观的形式,去呈现精细与复杂。居于其中的人与环境之间,会彼此影响,设计则是潜移默化中呈现这种平衡与和谐的感性共鸣。 以理性思维去实现个性化诉求,在不断的探索、实践中,回应居住者对空间环境细节和品质的极高要求。 客厅的光影时刻都在变幻着,随着时间的流逝,绽放出不一样的美丽,站在不同的角度,可以感受到光影随行的千变万化,近距离体会到艺术与生活相结合的魅力,蘑菇石打造出低调轻奢的意境,色彩的巧妙平衡,突出艺术的美感。 黑白之间,探索视觉的多维表达。 “设计深入挖掘业主对于“家”之独有生活方式的考量和追求。” 柔和而舒适的灯光来营造温馨灵动的放松氛围。通过简洁、质朴的设计来表现出物品和空间的美感,这种美感是通过强调自然材料的质感、突出形式的简洁性和保持空间的简约性来实现的。 空间以横向贯通客厅与餐厅, 开放式的动线模式为居家日常提供了更多可能性。 餐厅,是一家人欢声笑语的主场,也兼顾亲友欢聚、社交宴请等多种功能,于人间烟火处中唤起人与人之间的情感共鸣。 随心自在 低饱和度的空间背景同自然光漫射后愈发柔和,以日月星辰秩序的间接光环境构筑温馨质感。大地色系搭配浅浅的木质,让卧室弥漫着内在的柔和沉浸气息,潜意识的情感被唤起。 纯粹本真 儿童房的设计,除了要营造一种天真烂漫的氛围外,还需要有休憩功能、学习功能和收纳功能。 在设计中,使用自然的颜色和纹理,再配以柔和的灯光,来创造一种平静的氛围。
  • 图片
  • 图片
  • 图片
  • 图片
  • 图片
  • 图片
  • 图片
  • 图片
  • 图片
  • 图片
  • 图片
  • 图片
  • 图片
  • 图片
  • 图片
  • 图片
  • 图片
  • 图片
  • 图片
  • 图片
  • 图片
  • 图片
  • 图片
  • 图片
  • 图片
  • 图片
  • 图片
  • 图片
  • 图片
  • 图片
  • 上一个 下一个
    《金腾奖优秀作品年鉴》 私宅丨地产丨餐饮丨酒店丨办公丨商业丨公共丨产品丨公益丨人气 jintengAWARD(小金_金腾奖组委会) 广州市海珠区琶洲大道68号华新中心21楼
    金腾奖视频号 金腾奖小红书号 监制:闫虹
    统筹:吴佳佳
    运营:朱倩仪 王赫萱 张芷莹 胡岚恩 小金
    新媒体:王贝贝 严洁 侯乐 鹅姐
    经纪:刘译遥 石征 曹凯月
    技术:张桐 黄天佑
    最终解释权归金腾奖主办方所有