wangyuan
作品详情
  • Details of the work 标题横线
    头像或者logo
    图片 田林 华浔品味装饰集团特约推荐
    城市:嘉兴
    公司: 广东华浔品味装饰集团海宁分公司
    参赛作品: 望园
    空间类型:公寓(150㎡以下)
    个人/公司简介:
    中国室内注册设计师编号:ZY200674192 2010年毕业于南昌大学环艺系 2011-2015年任职广东华浔品味装饰集团泉州公司设计师 2015年度荣获全国室内设计双年展入围奖 2016至今任职广东华浔品味装饰集团海宁分公司首席设计师 设计理念:业沉淀“家”的永恒,专心展示空间特定的气质与个性。致力实现艺术与人比邻而居,提升家居品味。调动空间中一切可能媒介,丰富人们对空间的感性认识融合业主需求让空间与风格文化及其喜好相结合。达到身心和谐。
    设计说明 | Design Instruction
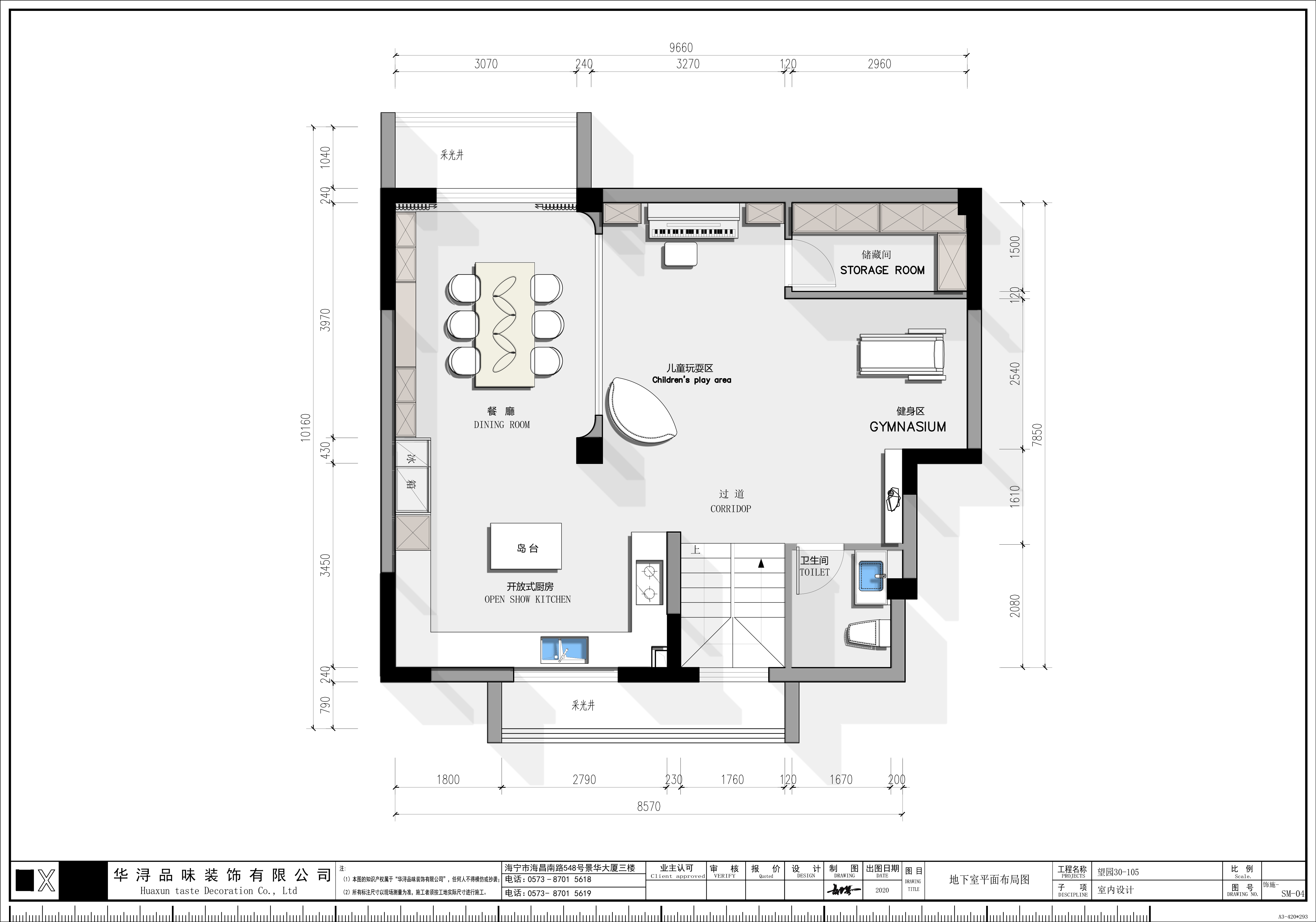
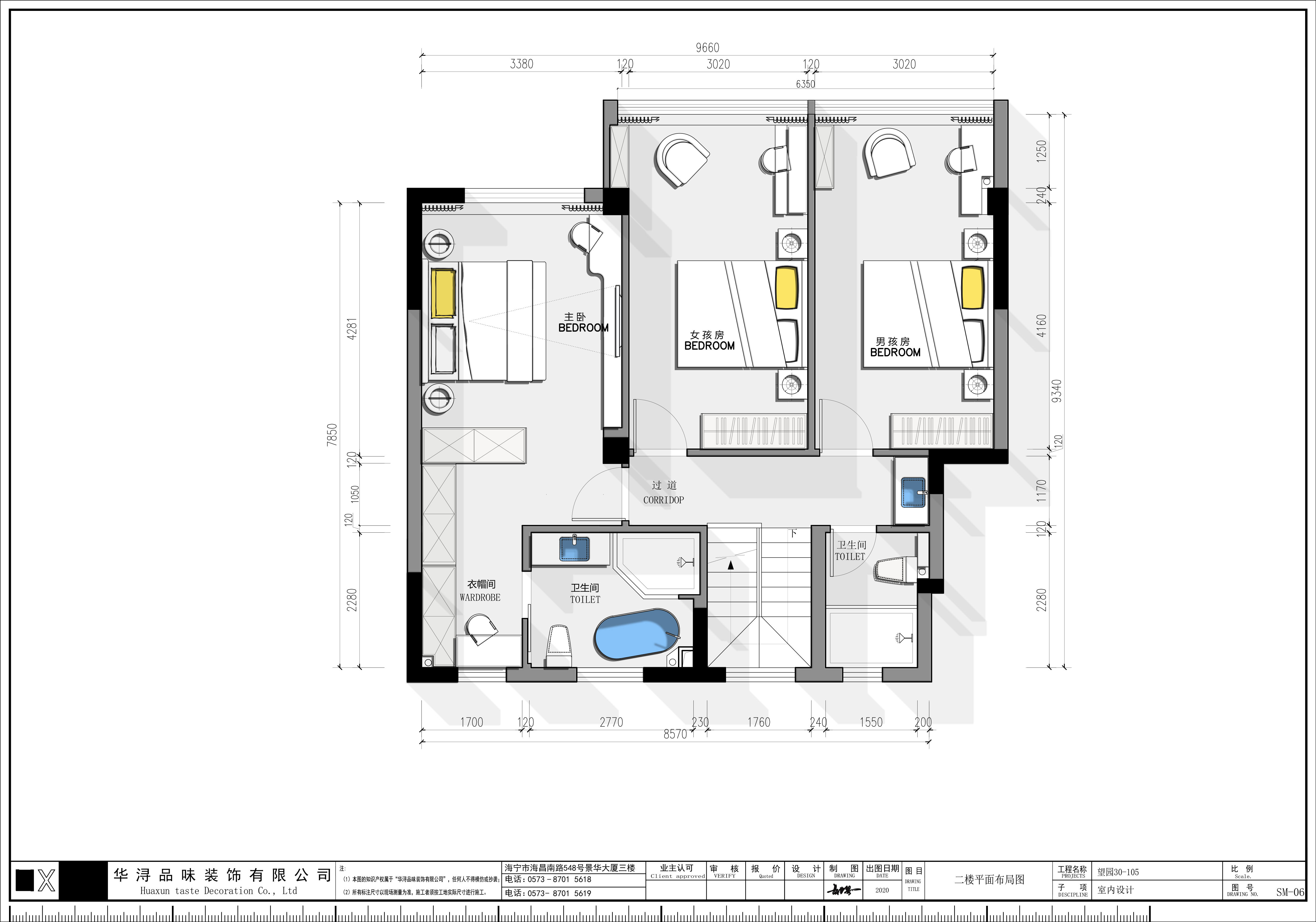
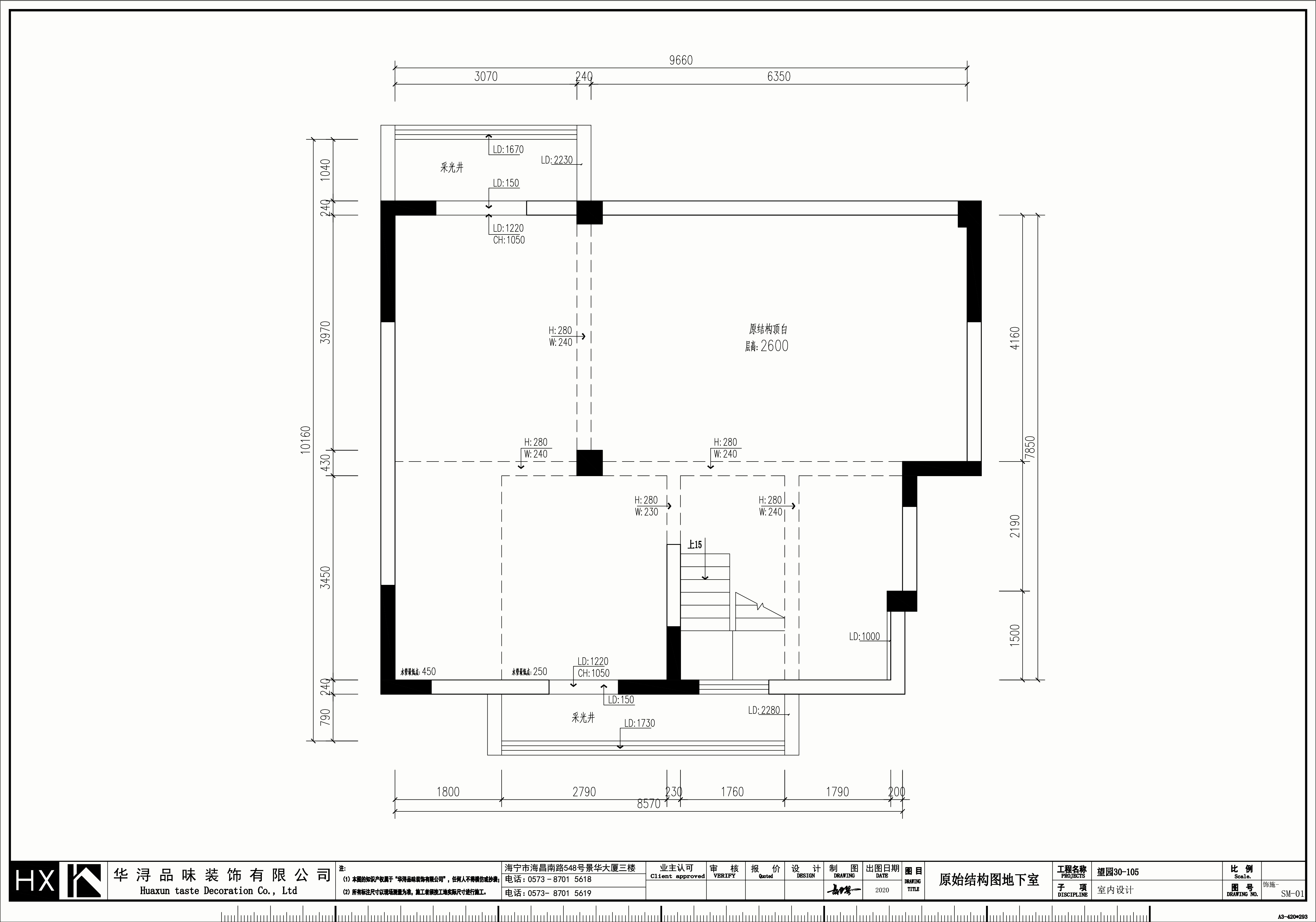
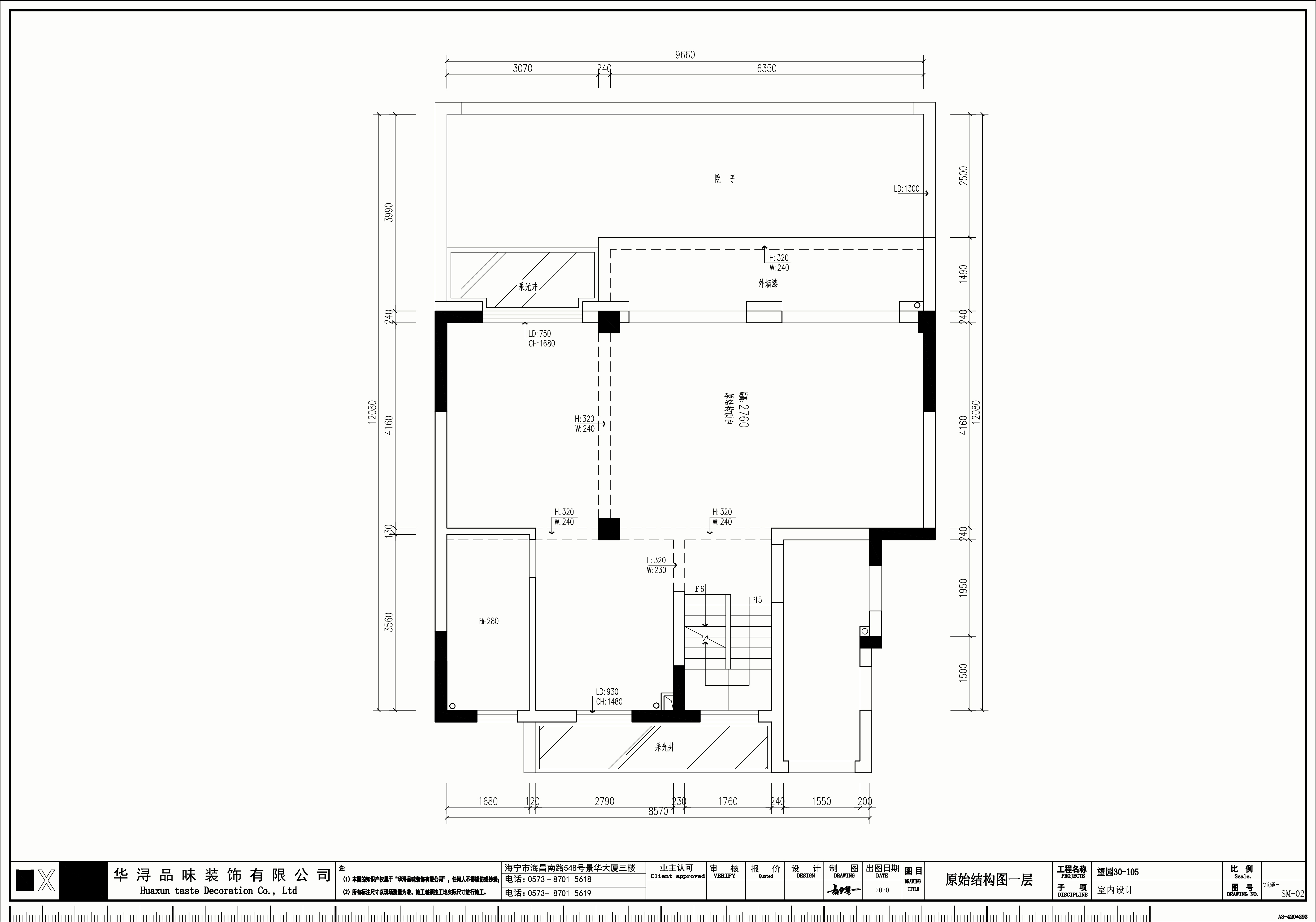
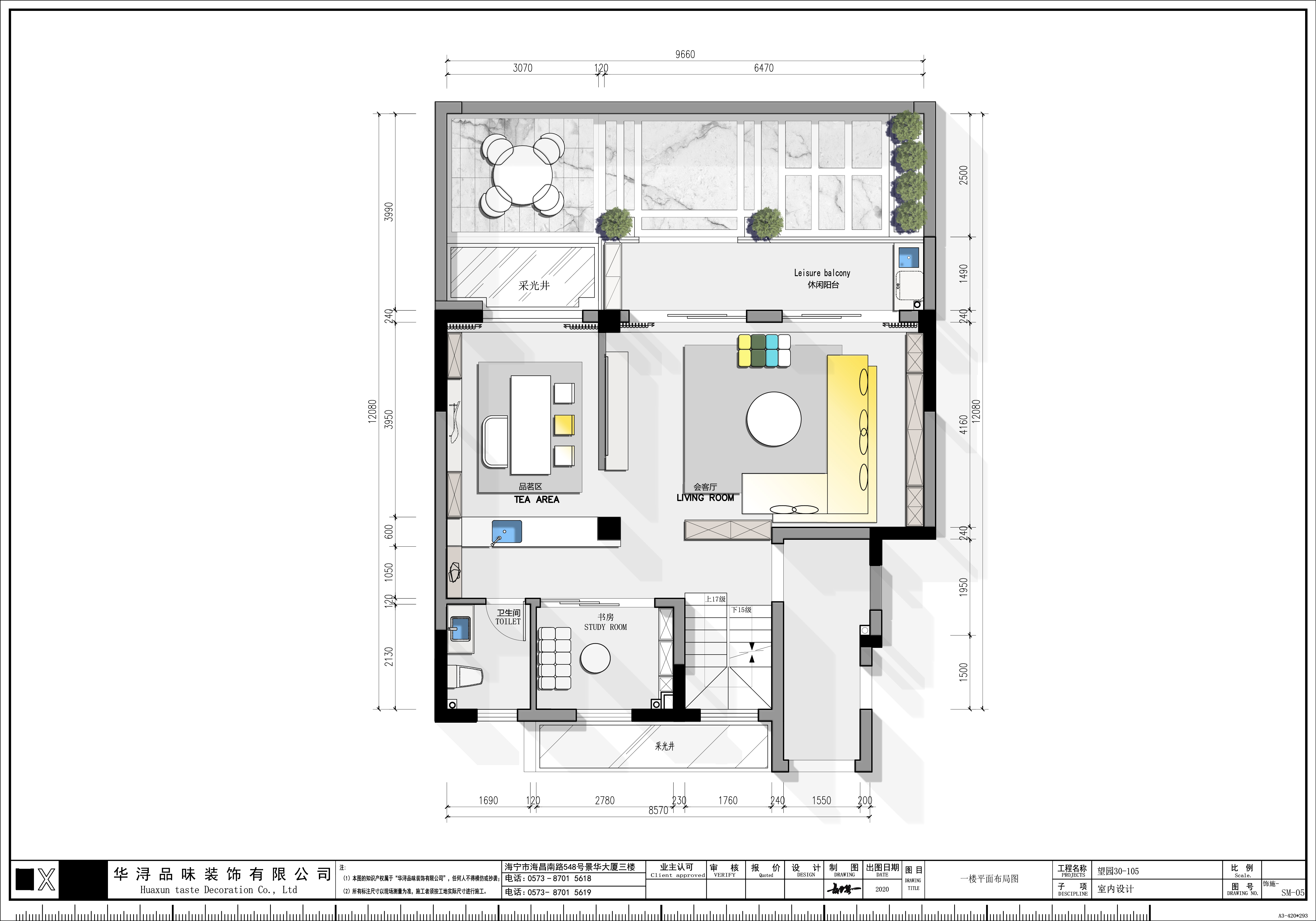
  • 设计公司:广东华浔品味装饰海宁分公司 项目设计师:田 林 案例名称:望园30-105 案例风格:现代轻奢 项目面积:270㎡ 本案屋主喜欢沉稳大气的装修风格,对生活品质有一定的追求。 作为四口之家的用途,我们并没有规划更多的卧室,而是把空间最大化融入公共区域。 把不合理的空间重新规划,满足更加实用,把细节之处做到极致。 营造功能实用和生活美学兼备的居家氛围。 地下室主要功能以厨房、餐厅、休闲娱乐为主。地面则选用沉稳不是张力的七星真石瓷砖,点缀深色木制柜体面。以木与石、质感深邃为主,形成空间的平衡,每一种材质的选择都有其独特的设计语境,以此凸显视觉延展的空间趣味;在原本不宽的混泥土楼梯空间,改造成设计感超强的悬浮楼梯设计,配上岩板与灯光相结合,兼具实用与美观双重功能;共同营造更具现代感的氛围。 一楼被划做主客厅、茶室;承担着大部分的日常生活;整个空间色调纯粹静谧,营造出沉稳且个性的现代质感;皮质体块沙发、大理石茶几,银色装饰品共同点缀着室内空间;创造出一种可感知、充满包容性的场域。造型颜色独特的单椅,暗藏于场景故事里,隐喻的美感。散发出当代的艺术之美,温润优雅品味。 二层则是私密的生活休息区;在卧室空间中,将简约发挥的淋漓尽致。设计首付并无过多附加元素,反而近乎苛求的去做减法,少赘饰,将一室素雅留给静谧的心无杂物。两个小孩房则是延续了简约的方式,再根据男孩女孩自己喜爱的颜色做点缀,即童趣也干净整洁。
  • 图片
  • 图片
  • 图片
  • 图片
  • 图片
  • 图片
  • 图片
  • 图片
  • 图片
  • 图片
  • 图片
  • 图片
  • 图片
  • 图片
  • 图片
  • 图片
  • 图片
  • 图片
  • 图片
  • 图片
  • 图片
  • 图片
  • 图片
  • 图片
  • 图片
  • 图片
  • 图片
  • 上一个 下一个
    《金腾奖优秀作品年鉴》 私宅丨地产丨餐饮丨酒店丨办公丨商业丨公共丨产品丨公益丨人气 jintengAWARD(小金_金腾奖组委会) 广州市海珠区琶洲大道68号华新中心21楼
    金腾奖视频号 金腾奖小红书号 监制:闫虹
    统筹:吴佳佳
    运营:朱倩仪 王赫萱 张芷莹 胡岚恩 小金
    新媒体:王贝贝 严洁 侯乐 鹅姐
    经纪:刘译遥 石征 曹凯月
    技术:张桐 黄天佑
    最终解释权归金腾奖主办方所有