Wind of the Amazon
作品详情
  • Details of the work 标题横线
    头像或者logo
    图片 尤炳波、林思围
    城市:泉州
    公司: 华浔品味装饰集团
    参赛作品: 亚马逊的风(泉州宝珊花园南溪谷)
    空间类型:公寓(150㎡以下)
    个人/公司简介:
    主案设计:尤炳波 工作单位:华浔品味装饰集团华洲公司 职务:华洲华浔设计二中心总监 称谓:CIID第52泉州专业委员会委员 中国建筑装饰协会会员 中国室内设计注册设计师 2018年泉州碧桂园·汇悦台空间设计金奖 2020第十六届中国国际建筑装饰及设计艺术博览会 2019-2020年度国际环艺创新设计作品大赛别墅豪宅空间类银奖 2020年广州设计周金住奖 中国(泉州)十大居住空间设计师 2020-2021上海国际设计周·新锐中国设计奖泉州城际榜 2020-2021上海国际设计周·新锐中国设计奖福建省际榜 2021 红星美凯龙星选设计家 第十届筑巢奖优秀奖 主设项目:晋江东石情霞居宴会厅 宝珊花园南溪谷别墅 龙湖嘉天下观宸别墅 等 主案设计:林思围 工作单位:华浔品味装饰集团华洲公司 职务:华洲华浔设计二中心方案设计师 称谓: 中国室内设计注册设计师 主设项目:鲤景湾 海上海 永隆江滨城 天璟 等
    设计说明 | Design Instruction
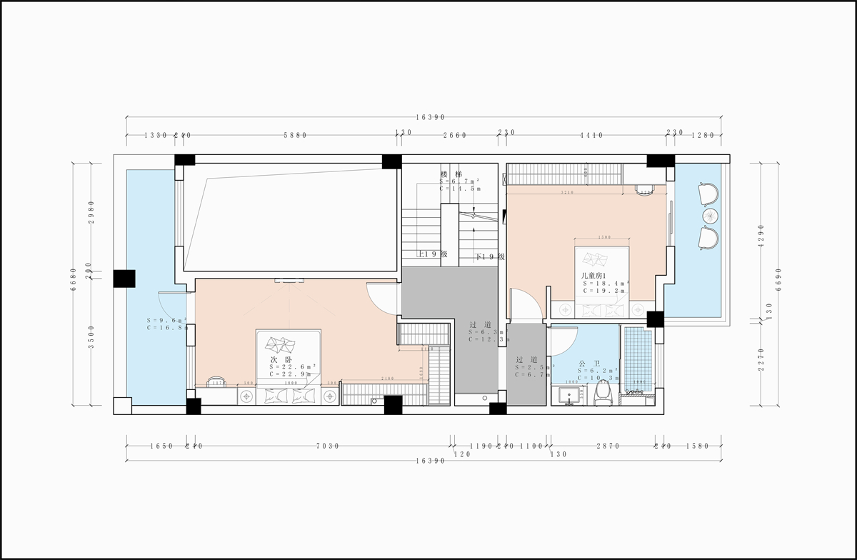
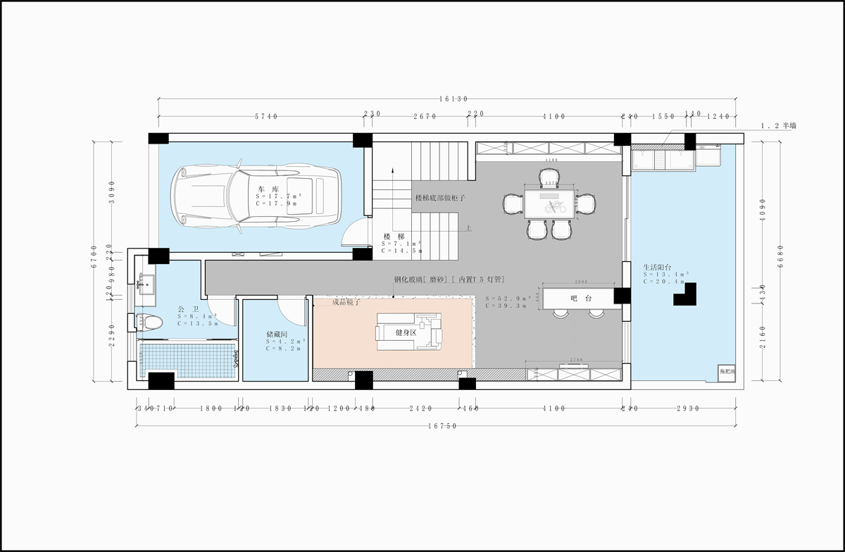
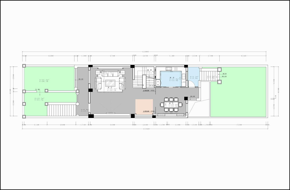
  • 本案位于泉州宝珊花园,业主是台湾人,在充分了解台湾文化与业主需求下,设计师大胆的把一楼卫生间取消掉,进而通过box造型来作为整个空间的枢纽中心。 所有房间不设私卫,其中顶层公卫建造了个质朴的浴池,秉承台湾厕所文化与温泉文化的影响传承。 本案中,在简洁敞亮的空间中采用奢石亚马逊绿作为主体背景,那一抹鲜艳的绿,是绿色心脏,是从大洋彼岸的热带雨林乘风而来,给了整个空间灵魂,人在居屋内,犹如置身大自然。 能心领神会到北宋词宗秦观的春风十里柔情。卧室简约明亮,温馨而又浪漫,柔软舒适的床品,在自然柔和的光线下显得格外舒适,每一处完美的细节设计都是温馨生活的一种体现。
  • 图片
  • 图片
  • 图片
  • 图片
  • 图片
  • 图片
  • 图片
  • 图片
  • 图片
  • 图片
  • 图片
  • 图片
  • 图片
  • 图片
  • 图片
  • 图片
  • 图片
  • 图片
  • 图片
  • 图片
  • 上一个 下一个
    《金腾奖优秀作品年鉴》 私宅丨地产丨餐饮丨酒店丨办公丨商业丨公共丨产品丨公益丨人气 jintengAWARD(小金_金腾奖组委会) 广州市海珠区琶洲大道68号华新中心21楼
    金腾奖视频号 金腾奖小红书号 监制:闫虹
    统筹:吴佳佳
    运营:朱倩仪 王赫萱 张芷莹 胡岚恩 小金
    新媒体:王贝贝 严洁 侯乐 鹅姐
    经纪:刘译遥 石征 曹凯月
    技术:张桐 黄天佑
    最终解释权归金腾奖主办方所有