JIANGYUCHENG
作品详情
  • Details of the work 标题横线
    头像或者logo
    图片 张典荣 华浔品味装饰集团特约推荐
    城市:惠州市
    公司: 华浔品味装饰
    参赛作品: 江誉城
    空间类型:公寓(150㎡以下)
    个人/公司简介:
    设计说明 | Design Instruction
  • 这是一个简约而又不失美感的现代风格案例。 设计师将功能性和美感融合在一起,让空间看起来舒适而时尚。设计师采用了中性色调和自然材料,如木材和石材,营造了一个干净、明亮、开阔和自然的氛围。同时,设计师在墙壁上使用了简约的壁纸和装饰画,增强了空间的艺术感。在布置家具和装饰品时,设计师注重空间的协调性和实用性,避免过多的摆设和装饰,让整个空间看起来更加整齐、简洁和时尚。设计师还采用了现代化的照明系统,将光线导向空间的重点部位,增强了其美感和时尚感。细节方面,设计师注重空间的舒适感,如布置舒适的沙发、蓬松的枕头和软绒毯,让人感到放松和舒适。整体来看,该案例充分展现了现代简约风格的设计理念和特点。
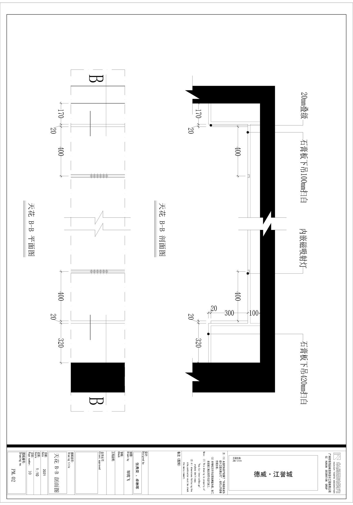
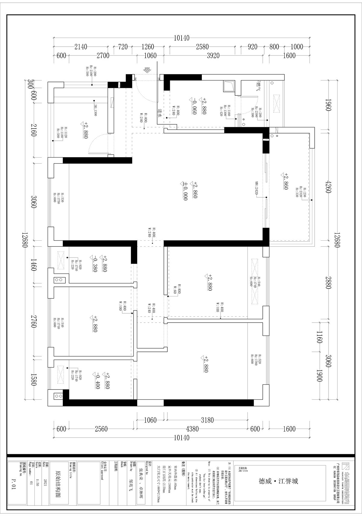
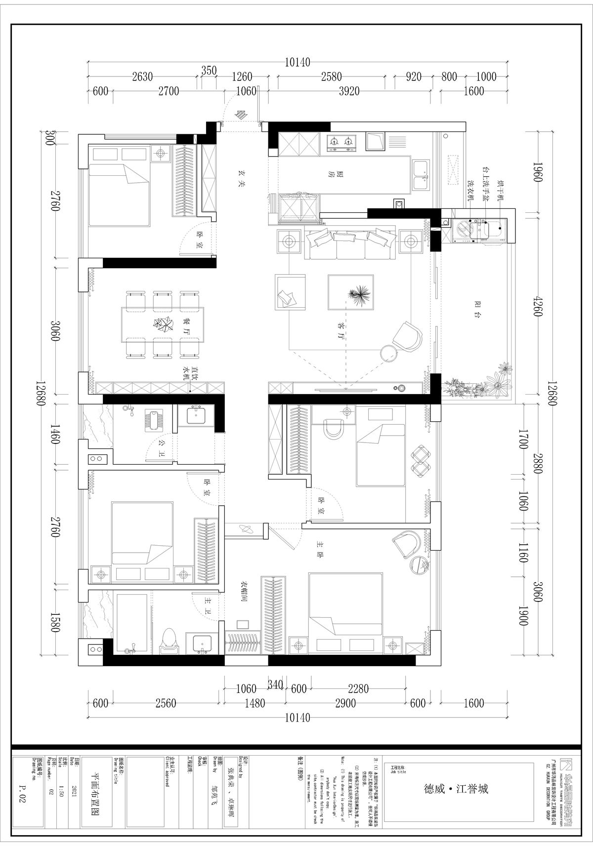
  • 图片
  • 图片
  • 图片
  • 图片
  • 图片
  • 图片
  • 图片
  • 图片
  • 图片
  • 图片
  • 图片
  • 图片
  • 图片
  • 图片
  • 图片
  • 图片
  • 图片
  • 图片
  • 图片
  • 图片
  • 图片
  • 图片
  • 图片
  • 图片
  • 图片
  • 图片
  • 图片
  • 上一个 下一个
    《金腾奖优秀作品年鉴》 私宅丨地产丨餐饮丨酒店丨办公丨商业丨公共丨产品丨公益丨人气 jintengAWARD(小金_金腾奖组委会) 广州市海珠区琶洲大道68号华新中心21楼
    金腾奖视频号 金腾奖小红书号 监制:闫虹
    统筹:吴佳佳
    运营:朱倩仪 王赫萱 张芷莹 胡岚恩 小金
    新媒体:王贝贝 严洁 侯乐 鹅姐
    经纪:刘译遥 石征 曹凯月
    技术:张桐 黄天佑
    最终解释权归金腾奖主办方所有