jiangyucheng
作品详情
  • Details of the work 标题横线
    头像或者logo
    图片 张典荣 华浔品味装饰集团特约推荐
    城市:惠州市
    公司: 华浔品味装饰
    参赛作品: 江誉城
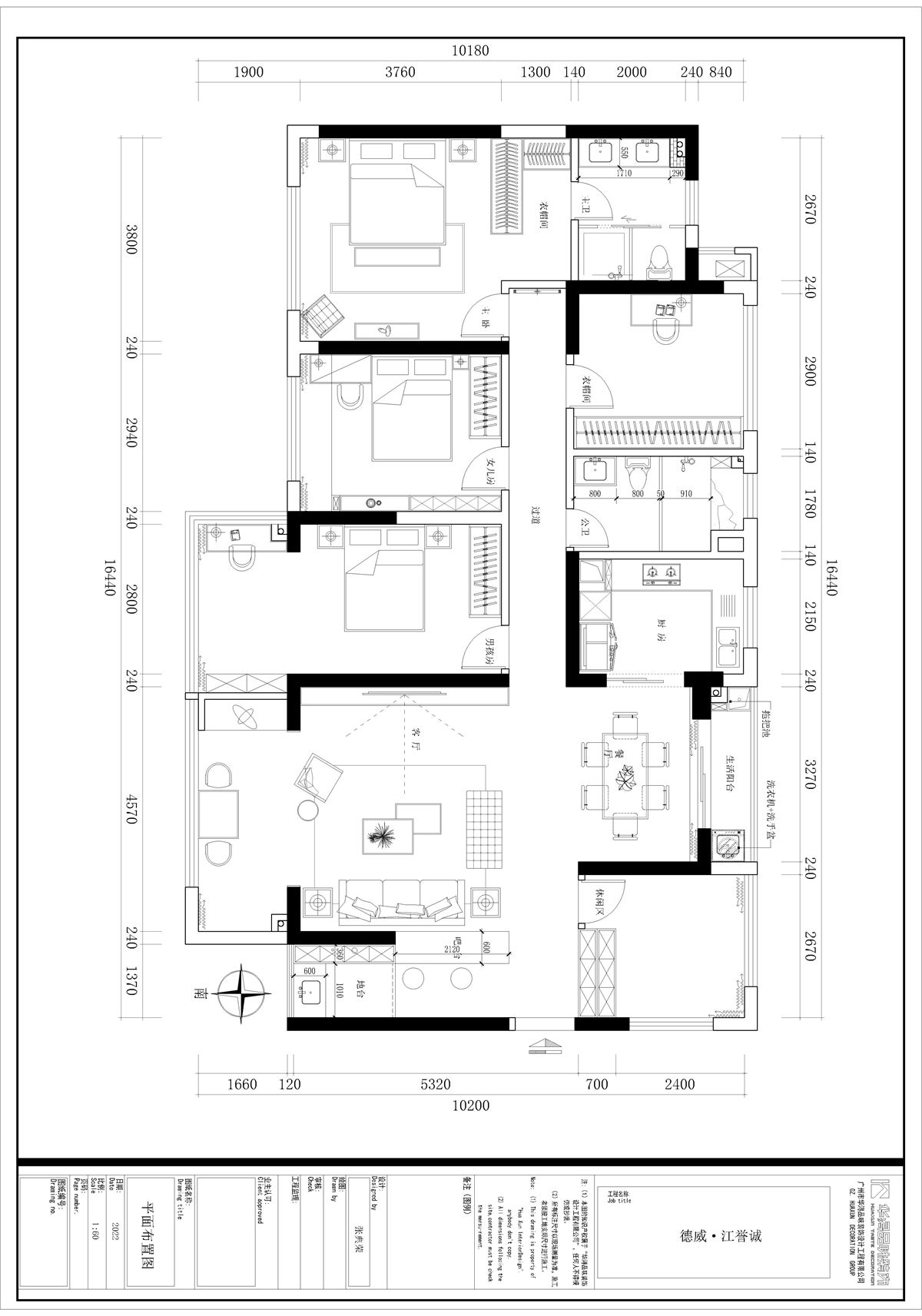
    空间类型:公寓(150㎡以下)
    个人/公司简介:
    设计说明 | Design Instruction
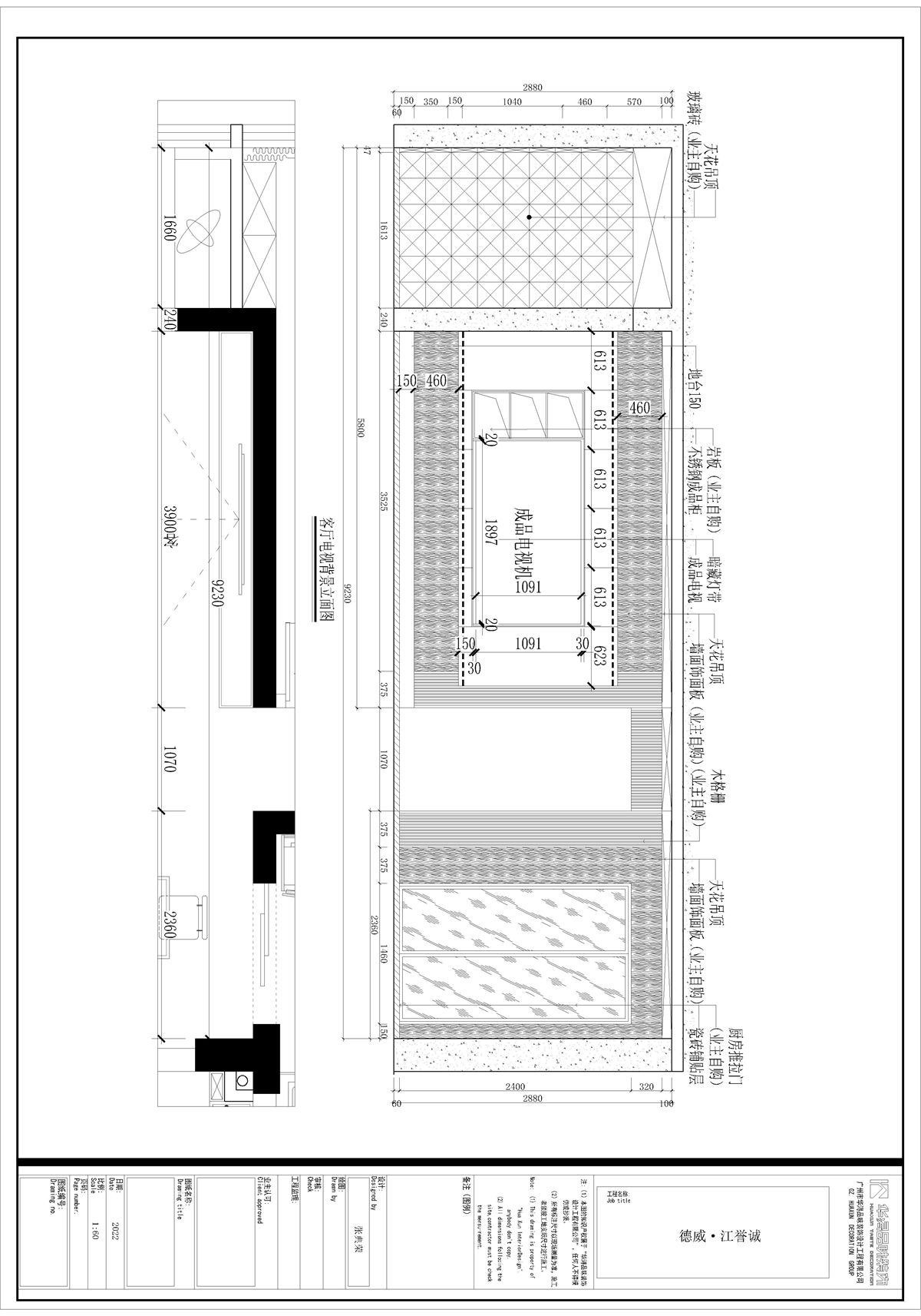
  • 本次案例的设计理念是简洁、实用、功能性和美感的结合。在规划设计的同时,设计师注重空间的布局和功能性,尽量避免过多的装饰品和复杂的设计,使空间看起来干净、明亮、开阔和舒适。设计师还注重材质和颜色的选择,通常使用天然的、不经过处理的材料和中性的颜色,让空间看起来更加自然和平静。在布置家具和装饰品时,设计师会优先考虑其实用性和空间协调性,避免过多的摆设和装饰,让空间保持简约而不失美感。同时,设计师还会采用现代设计的元素,如直线、简洁的形状和明亮的照明系统,让整个空间看起来更加现代、时尚和科技感。
  • 图片
  • 图片
  • 图片
  • 图片
  • 图片
  • 图片
  • 图片
  • 图片
  • 图片
  • 图片
  • 图片
  • 图片
  • 图片
  • 图片
  • 图片
  • 图片
  • 图片
  • 图片
  • 图片
  • 图片
  • 图片
  • 图片
  • 图片
  • 图片
  • 图片
  • 图片
  • 上一个 下一个
    《金腾奖优秀作品年鉴》 私宅丨地产丨餐饮丨酒店丨办公丨商业丨公共丨产品丨公益丨人气 jintengAWARD(小金_金腾奖组委会) 广州市海珠区琶洲大道68号华新中心21楼
    金腾奖视频号 金腾奖小红书号 监制:闫虹
    统筹:吴佳佳
    运营:朱倩仪 王赫萱 张芷莹 胡岚恩 小金
    新媒体:王贝贝 严洁 侯乐 鹅姐
    经纪:刘译遥 石征 曹凯月
    技术:张桐 黄天佑
    最终解释权归金腾奖主办方所有