chunhejingming
作品详情
  • Details of the work 标题横线
    头像或者logo
    图片 林泽桐 华浔品味装饰集团特约推荐
    城市:惠州市
    公司: 华浔品味装饰
    参赛作品: 春和景明
    空间类型:公寓(150㎡以下)
    个人/公司简介:
    设计年限:10年 2013年入职广东华浔品味装饰集团惠州有限公司 2018至2020年任惠州华浔设计总监 2021年至今任惠州华浔设计主管 设计奖项 : 2019年获金住奖中国(惠州)十大居住空间设计师 2021-2022中国家装设计百强人物 2021-2022中国设计新青年TOP100人物…… 设计案例 :东江学府复式,白鹭湖别墅,东方威尼斯别墅,双壁湾别墅, 帝景湾,山水江南复式,润园,中海凯旋城复式,中洲湾上, 哈施塔特别墅,奥园别墅,万林湖别墅,江湾南岸…… 设计理念:设计空间不仅仅是给人性化提供了可能,更应该承载其赋予的精神 文化。
    设计说明 | Design Instruction
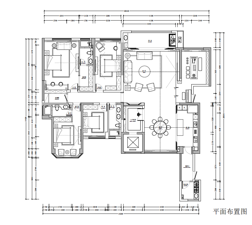
  • 艺术源于生活,生活被艺术所滋养。游走在铺陈阳光的空间,静观细微处的惬意瞬间,叙写着空间与居者的共鸣。大抵是设计赋予空间生命力的意义。 一方木桌,一副书画,没有过多累赘繁复的装潢和设计手法。 关于“云霞图幛子,一抹墨渲染”的东方诗文意境也在这里被勾勒出轮廓。当远离城市的喧嚣,放下手中的忙碌,品一盏茶、几缕香薰,静观时光流转,闲暇处才是生活。 面积:280平方 地址:广东省惠州市中洲·湾上花园 风格:轻奢,现代
  • 图片
  • 图片
  • 图片
  • 图片
  • 图片
  • 图片
  • 图片
  • 图片
  • 图片
  • 图片
  • 图片
  • 图片
  • 图片
  • 图片
  • 图片
  • 图片
  • 图片
  • 图片
  • 图片
  • 图片
  • 图片
  • 上一个 下一个
    《金腾奖优秀作品年鉴》 私宅丨地产丨餐饮丨酒店丨办公丨商业丨公共丨产品丨公益丨人气 jintengAWARD(小金_金腾奖组委会) 广州市海珠区琶洲大道68号华新中心21楼
    金腾奖视频号 金腾奖小红书号 监制:闫虹
    统筹:吴佳佳
    运营:朱倩仪 王赫萱 张芷莹 胡岚恩 小金
    新媒体:王贝贝 严洁 侯乐 鹅姐
    经纪:刘译遥 石征 曹凯月
    技术:张桐 黄天佑
    最终解释权归金腾奖主办方所有