biguyuan
作品详情
  • Details of the work 标题横线
    头像或者logo
    图片 吴东强 华浔品味装饰集团特约推荐
    城市:揭阳市
    公司: 华浔品味装饰
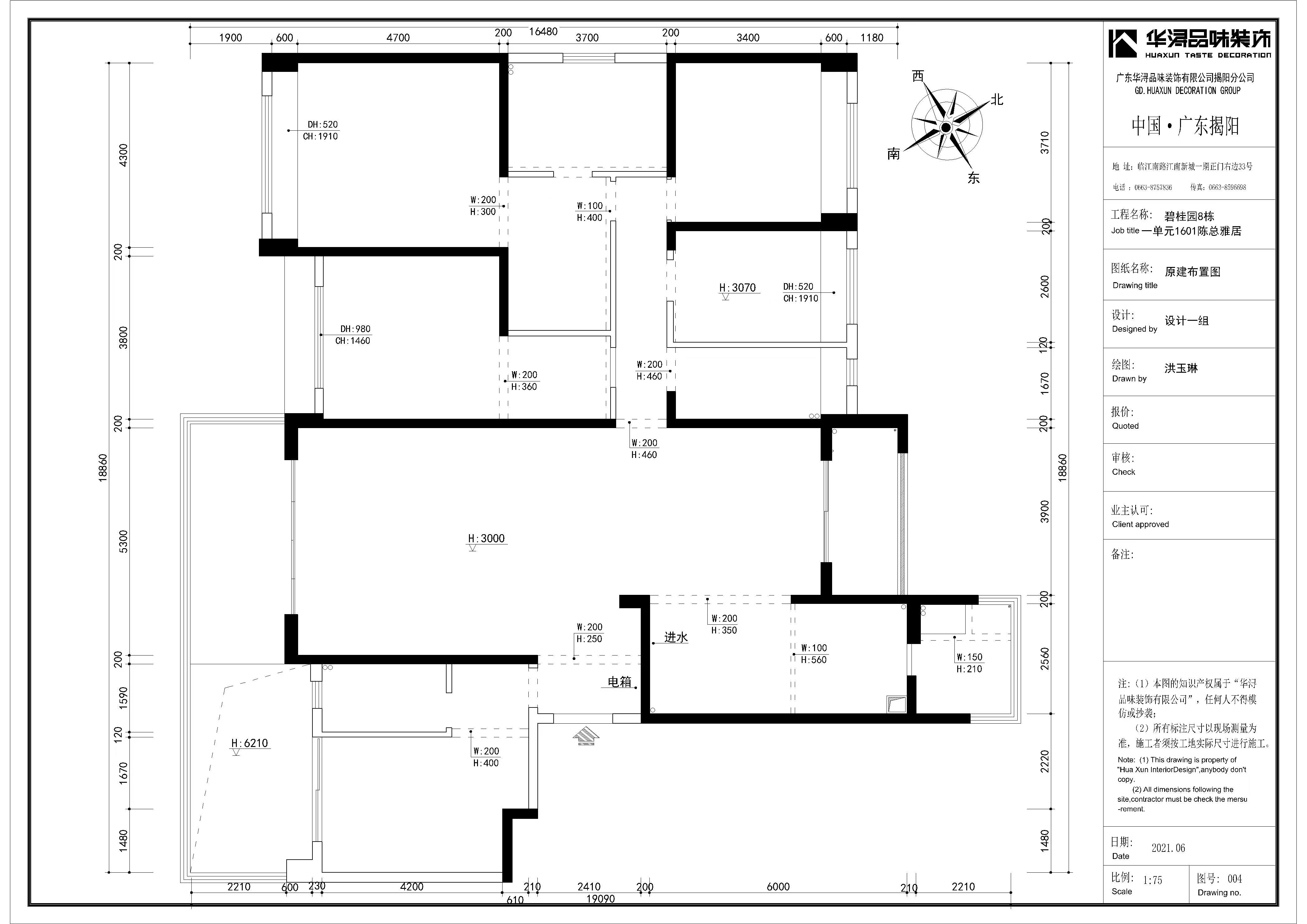
    参赛作品: 碧桂园
    空间类型:公寓(150㎡以下)
    个人/公司简介:
    设计创意总监 从事室内设计行业8年 果业于中国地质大学-环境设计专业进修于壹良囍术国际学院 实习就业于广东省轻纺建签设计院中国建筑装饰协会注册室内设计师 荣获华浔品味装节集圉年度金牌设计师 设计理念:设计源于生活,升华于品质细节 代表作品:碧桂园大平层, 碧桂园柏丽郡别墅, 东方首府大平层, 恒大绿洲叠墅,揭东自建别墅,东方首府别野万达极简私宅,帝苑豪宅等
    设计说明 | Design Instruction
  • 本案设计师:吴东强 案例地址:碧桂园十里江湾8栋1单元1601 造价:基础装修120万 设计理念: 这是一套碧桂园经典260户型,原本已经是精装房,拆除地面与天花,以及厨房柜体,全部重新设计规划,结合业主想要的风格,使用高级灰+蓝色 永恒的经典造就不俗的时尚
  • 图片
  • 图片
  • 图片
  • 图片
  • 图片
  • 图片
  • 图片
  • 图片
  • 图片
  • 图片
  • 图片
  • 图片
  • 图片
  • 图片
  • 图片
  • 图片
  • 图片
  • 图片
  • 图片
  • 图片
  • 图片
  • 图片
  • 图片
  • 图片
  • 图片
  • 图片
  • 图片
  • 图片
  • 图片
  • 图片
  • 图片
  • 图片
  • 图片
  • 图片
  • 图片
  • 图片
  • 图片
  • 图片
  • 上一个 下一个
    《金腾奖优秀作品年鉴》 私宅丨地产丨餐饮丨酒店丨办公丨商业丨公共丨产品丨公益丨人气 jintengAWARD(小金_金腾奖组委会) 广州市海珠区琶洲大道68号华新中心21楼
    金腾奖视频号 金腾奖小红书号 监制:闫虹
    统筹:吴佳佳
    运营:朱倩仪 王赫萱 张芷莹 胡岚恩 小金
    新媒体:王贝贝 严洁 侯乐 鹅姐
    经纪:刘译遥 石征 曹凯月
    技术:张桐 黄天佑
    最终解释权归金腾奖主办方所有