bailunuantian
作品详情
  • Details of the work 标题横线
    头像或者logo
    图片 黄航 华浔品味装饰集团特约推荐
    城市:广州
    公司: 华浔品味装饰集团
    参赛作品: 白露暖空·素月流天
    空间类型:公寓(150㎡以下)
    个人/公司简介:
    关于 • 黄航 /About Huang hang 电话 • 17620041770 邮箱 • 347947919@qq.com 华浔品味装饰集团 | 资深设计师 HA艺墅设计院广州院 | 资深设计师 从业室内设计9年 代表作品: 雅居乐剑桥汇(现代 380方) 保利海德公馆(现代 320方) 海滨花园北区(新中式 180方) 东方新世界熹园(现代 105方) 江南世家别墅(欧式 520方) 竹韵山庄(中式 156方) 华景新城(新中式 135方) 富颐华庭(现代 105方) 龙湖天宸原著(现代 135方) 设计理念:追溯根本,还原最理想的居住方式。
    设计说明 | Design Instruction
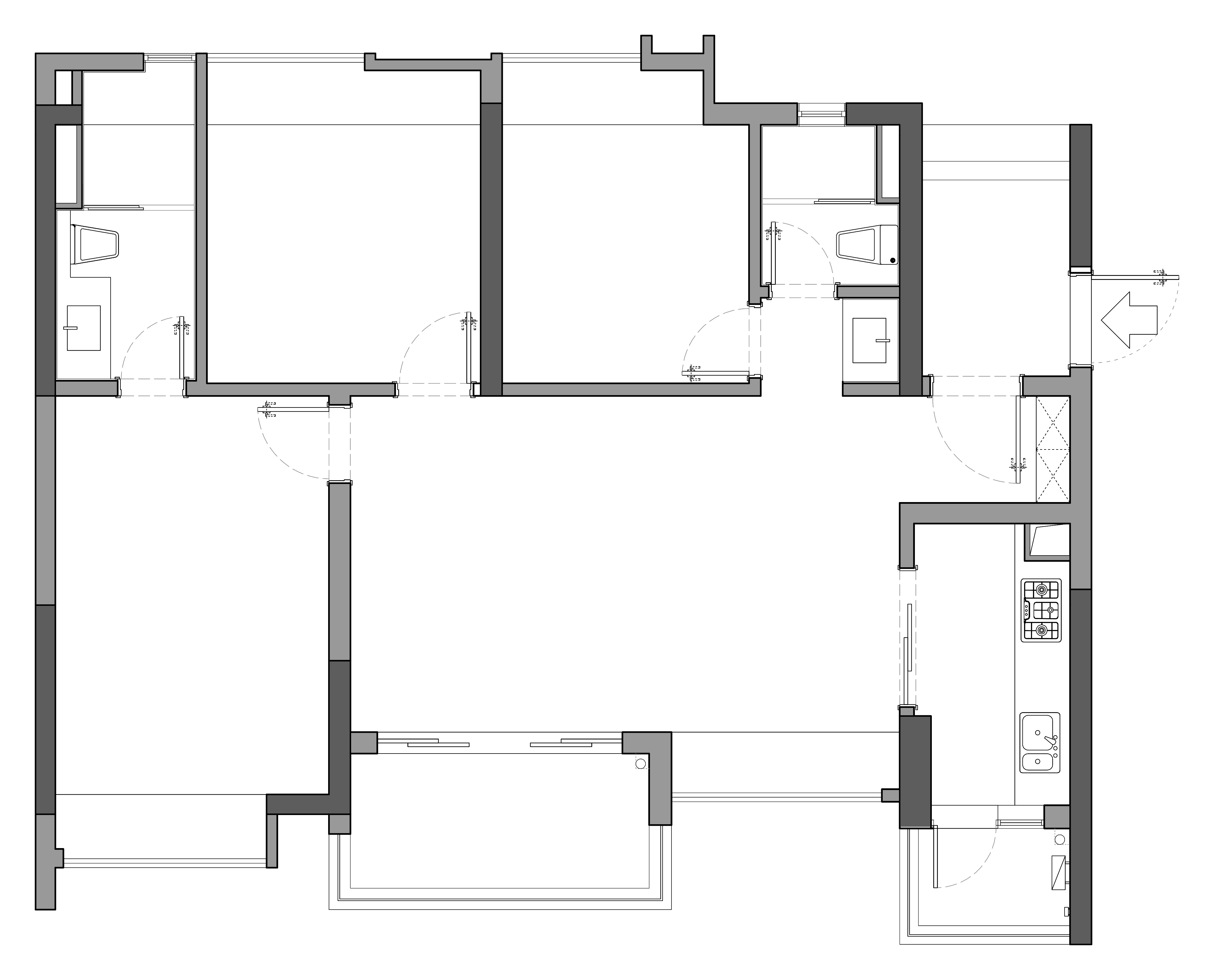
  • 本案是三室两厅两卫的户型,客餐厅是连厅设计,配有独立入户玄关。 业主夫妻是生意人,有一个男孩一个女孩,女业主喜欢简洁白,干净的空间。男业主则需要自己独立的工作间。 需求方向:简约温馨的色调风格,通透开阔的空间感,提升生活使用动线、便利性、实用性。 在广州这个快节奏的城市,忙碌了一天之后,回到自己温馨的小屋总是寻找一个宁静的角落享受家庭的温馨,空间不大,但是还是能让人找到家的感觉。 城市中五颜六色的生活困惑了我们的眼睛,让我们在偌大的城市迷失了方向,只有那么一个宁静的角落属于我们,那就是我们的家。 本案设计方向及风格:干净、极致简约、温馨,大面积留白的设计手法,局部色彩进行点缀。
  • 图片
  • 图片
  • 图片
  • 图片
  • 图片
  • 图片
  • 图片
  • 图片
  • 图片
  • 图片
  • 图片
  • 图片
  • 图片
  • 图片
  • 图片
  • 图片
  • 图片
  • 图片
  • 图片
  • 图片
  • 图片
  • 图片
  • 图片
  • 图片
  • 图片
  • 图片
  • 图片
  • 图片
  • 图片
  • 图片
  • 图片
  • 图片
  • 上一个 下一个
    《金腾奖优秀作品年鉴》 私宅丨地产丨餐饮丨酒店丨办公丨商业丨公共丨产品丨公益丨人气 jintengAWARD(小金_金腾奖组委会) 广州市海珠区琶洲大道68号华新中心21楼
    金腾奖视频号 金腾奖小红书号 监制:闫虹
    统筹:吴佳佳
    运营:朱倩仪 王赫萱 张芷莹 胡岚恩 小金
    新媒体:王贝贝 严洁 侯乐 鹅姐
    经纪:刘译遥 石征 曹凯月
    技术:张桐 黄天佑
    最终解释权归金腾奖主办方所有