banshe
作品详情
  • Details of the work 标题横线
    头像或者logo
    图片 冯绍平 华浔品味装饰集团特约推荐
    城市:海口
    公司: 广东华浔品味装饰集团海南有限公司
    参赛作品: 半舍
    空间类型:公寓(150㎡以下)
    个人/公司简介:
    【姓名】: 冯绍平 【手机】: 131 1193 6966 【所在地】:海口市 广东华浔品味装饰集团海南有限公司设计总监 中国建筑装饰协会高级室内建筑师 中国CIID注册高级室内设计师 中国海南省 江西商会会员 中国海南省海口市周易协会会员 荣获2015年中国(海南)室内与平面设计总评榜【年度最具人气奖】 【年度十佳公寓空间设计奖】 【年度十佳别墅空间设计奖】 荣获2015年诚品家居【最佳创意奖】 荣获2016—2023年连续八年华浔品味装饰集团【优秀设计师】 荣获2018年第二届海南国际原创文化艺术展暨青年设计技能大奖赛【优秀设计师奖】 荣获2019年华浔品味装饰集团【优秀设计师】 荣获2019年华浔品味装饰集团【最佳导演】 荣获2019年第九届国际空间设计大赛__【艾特奖】海口赛区【最佳公寓设计】 荣获2020年H&A米兰国际设计海南分院第一次优秀实景作品评选“亚军” 荣获2020年“我是华浔人,我骄傲”主题拓展活动实战PK节中【服务满意奖】 荣获“4040 UNDER 40 中国(海南)【设计杰出青年(2020-2021)奖”】 荣获2020年广东华浔品味装饰集团【谁为华浔赢得尊重之-服务之星】荣誉称号 担任广东华浔品味装饰集团海南分公司 2021年“迎新嘉年华”元旦晚会 【总导演】 荣获2021年H&A艺墅设计院海南分院“2021感动海南”第三季度实景案例评选【优秀奖】 荣获2021年“第六届金马可设计师大赛【年度品味陈设艺术奖】 荣获2021年第九届【HI-Design室内设计大赛荣获优秀奖】 荣获2022年守匠心担责任 海南华浔匠心主题演讲比赛【第二名】 参与2022年【金茂】疫情防控党员志愿者【采集点所属采集员】 荣获2022年度华浔品味装饰集团海南区域【设计之星】 荣获2023年华浔设计学会理事总监群【金牌讲师】
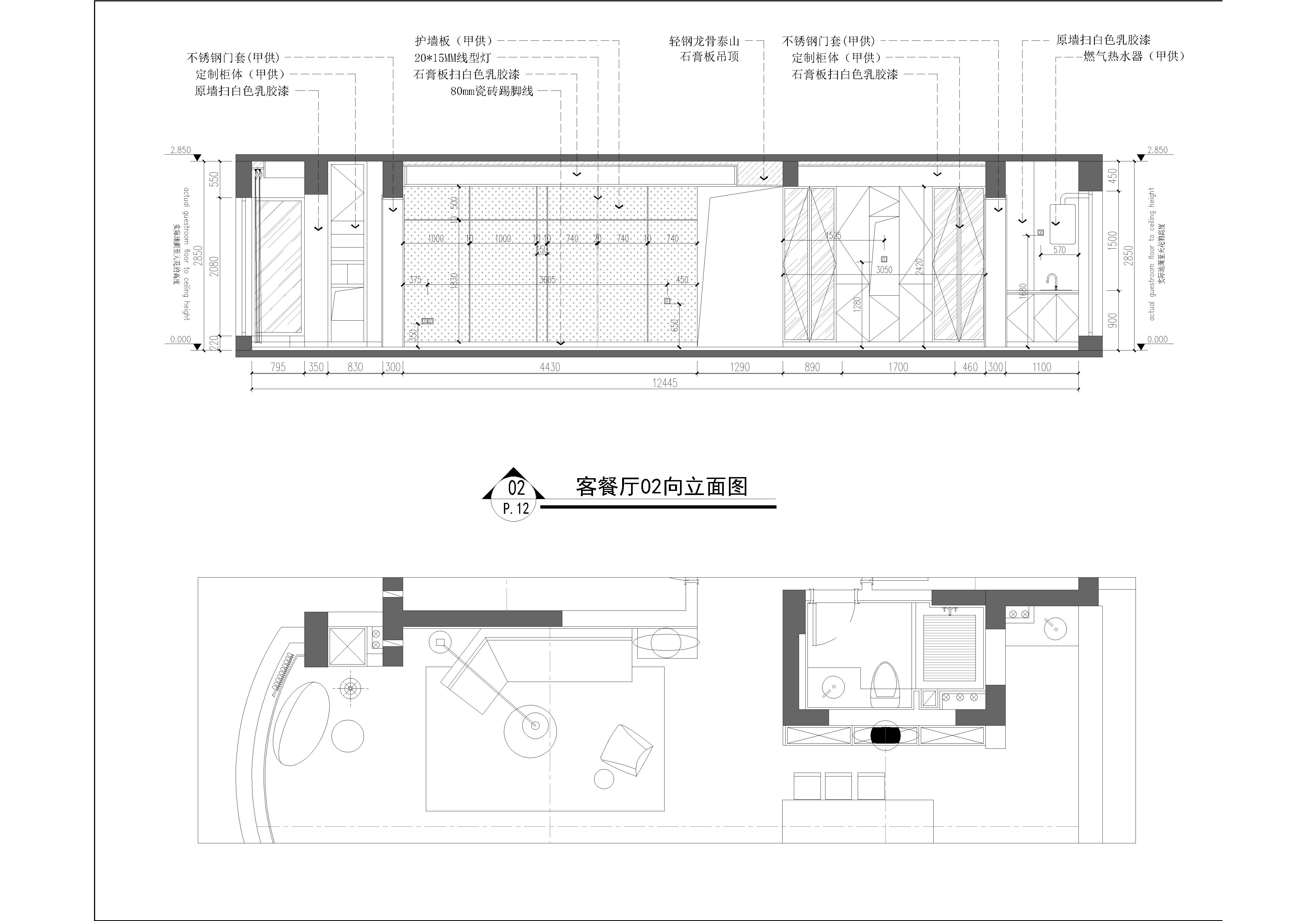
    设计说明 | Design Instruction
  • 项目名称:和风江岸 项目地址:海口滨江路 项目面积:180㎡ 项目主要用材:大理石、岩板、木格栅、护墙板...... 设计说明: 源于业主是90后,从事大学教育工作,对于品质还是要求颇高的,鉴于这些自身条件,最后决定为业主打造了极简黑白灰风格 【客厅】 客厅选择无主灯的设计,增加空间的通透感,电视墙用岩板和隔栅搭配,增加背景墙的丰富性。地面选择灰色的大瓷砖,看起来比较大气,而且非常好打理。半开放式的客厅布局,让空间得到重复利用,扩大每个空间的范围。 【餐厅】 轻奢风的餐边柜,选择玻璃和封闭式的搭配,大理石的餐桌台面,提升餐厅空间的品质,搭配几张真皮沙发,营造出轻奢的质感。 【卧室】 两个卧室都采用护墙板的背景墙,主卧用拼色得到搭配,周边做辅助光源,打造悬浮式的背景墙,让空间更加温馨舒适。 摆脱繁琐的形式,将生活的重心回归简约的纯粹中,褪去浮华的外表,将生命的意义回归宁静之中,当生活开启极度简约模式,找到最适合、最舒服的方式,延长我们生活的保质期 黑色是一种神秘的颜色,它的深沉与稳重的特性增加了空间力度感与稳定性; 白色是一种纯洁的颜色,它包容、纯粹、素雅、禅意,留有想象的空间以及无限的可能; 灰色介于黑与白之间低调柔和明暗变幻,高雅自然的气息又兼具沧桑感 黑、白、灰代表着客观事物的本源之色,拥有强大的包容性与亲和力,被赋予了更加人性化的感情色彩,黑、白、灰之间的巧妙搭配结合既有深沉而庄重的和谐,又有明快而不晦暗淡雅而不单调的统一 首先客厅自身原始结构就具备了南北通透的优点:通风好、私密性强、视野广阔,围绕回流这种明显的形式,定义了家的宁静和喘息感,房子说是四室两厅,房间多,但根据业主的自身条件只需要保留主卧、儿童房、老人房三个房间,另外一间我们了解到业主喜欢健身,所以考虑为业主打造了健身房,不仅满足了业主的需求又合理利用了每个空间 沙发背景墙| 使用了深灰色护墙板与黑色大理石的搭配拉满了整个客厅的层次感 电视背景墙| 灰色墙板搭配同色格珊和黑色大理石更是提升了整个空间的质感,黑色百叶窗贯通整个阳台,光线漫延窗 本屋代表的不仅仅是一种风格,更是一种高品质的生活状态
  • 图片
  • 图片
  • 图片
  • 图片
  • 图片
  • 图片
  • 图片
  • 图片
  • 图片
  • 图片
  • 图片
  • 图片
  • 图片
  • 图片
  • 图片
  • 图片
  • 图片
  • 图片
  • 图片
  • 图片
  • 图片
  • 图片
  • 图片
  • 图片
  • 图片
  • 图片
  • 图片
  • 图片
  • 图片
  • 图片
  • 上一个 下一个
    《金腾奖优秀作品年鉴》 私宅丨地产丨餐饮丨酒店丨办公丨商业丨公共丨产品丨公益丨人气 jintengAWARD(小金_金腾奖组委会) 广州市海珠区琶洲大道68号华新中心21楼
    金腾奖视频号 金腾奖小红书号 监制:闫虹
    统筹:吴佳佳
    运营:朱倩仪 王赫萱 张芷莹 胡岚恩 小金
    新媒体:王贝贝 严洁 侯乐 鹅姐
    经纪:刘译遥 石征 曹凯月
    技术:张桐 黄天佑
    最终解释权归金腾奖主办方所有