Liujinsuiyue
作品详情
  • Details of the work 标题横线
    头像或者logo
    图片 李玉华
    城市:惠州
    公司: 华浔品味装饰集团
    参赛作品: 流金岁月
    空间类型:公寓(150㎡以下)
    个人/公司简介:
    简介: 2012年毕业于专业院校 2018年广东华浔装饰集团惠州有限公司设计师 2019年至今广东华浔装饰集团惠州有限公司设计总监金住奖-2019年中国(惠州)十大居住空间设计师 中国建筑装饰协会高级室内设计师从业经验:11年 设计理念: 每一个空间都有它独特的背景和家文化,打造出实用且美好的生活空间。 设计作品: 星耀国际,方直君御,千花岛,帝景湾,新力城叠墅,荣灿中心,江湾南岸,方直东岸,凯旋城别墅,水岸城,誉山湖等
    设计说明 | Design Instruction
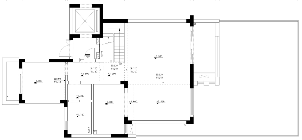
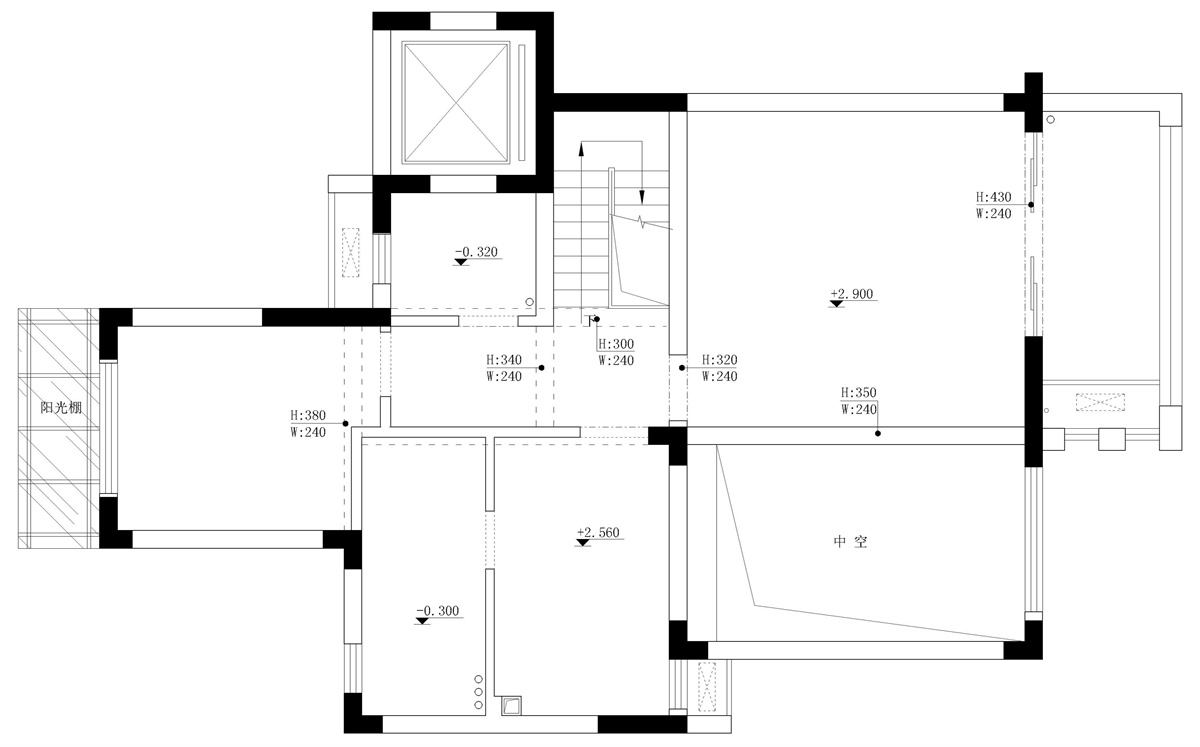
  • 【浔·案例】现代轻奢 | 流金岁月,遇见生活的格调 项目面积 ▏ 1 9 0 m ² 本案设计 ▏ 李玉华参与设计 ▏ 陈建英 主要用材▏ 大理石, 实木贴皮, 墙布, 定制, 长虹玻璃 设计说明: 本案是一套190 ㎡的叠墅空间, 住有业主夫妻二人和他们的两个孩子, 需要保留四房, 业主夫妻对于细节的把控, 与整体的设计感要求很高, 对楼梯和客餐厅的空间感也很看重, 主卧套间里的衣帽间要求宽敞, 设计师在设计客餐厅时将其设计成大横厅, 空间开阔室内采光好, 空气流通直通庭院。 【玄关】由外步入室内的连接点,是回家的第一仪式感,仪式的意义在于身,更达于心。这一过渡空间在功能 属性上,以空间结构的动线去做引导,由喧嚣紧张步入舒缓私密区域,承载归家后卸去所有累赘与疲 惫的轻松。 【客厅】在较为深色的木饰面与浅色布艺的酷炫质感之上,石材与布艺的调和,时尚单品的加入,日常收纳的贴 心,都兼顾了空间的品位张力,与生活温度感二者的平衡。 地面以灰色连纹的地砖打底,配上几何型地毯。内敛的墨绿色,高品质家具的呈现,个性的沙发抱枕, 让艺术性、趣味性、舒适感、生活质感达到和谐。 【餐厅】从客厅到餐厅的连接,空间的动线与格调都不断承续着高级感,表达处理上材质与色彩的灵动变化, 又将不同生活场景的需求契合生动演绎。 一体式的客餐厅结构,让光线和空气相互流通,模糊了客餐厅区域间的界限,让开放的空间拥有了更为开 阔的视觉。 【楼梯】采用了浅色系的大理石,不做扶手,用长虹玻璃隔断,使楼梯更具空间感。 【主卧】衣帽间与卧室的贯通,是空间延伸后的大气磅礴,也搭建起了两个空间互动的更多可能性。空间呈现更多以开阔及开放式的格局,收纳和展示功能的秩序感一览无余,多点位灯光延续了极简的风 格,偏暖色系的光线又强化了视觉效果,满足了对于精致生活品质的全部向往。 【次卧】儿童房床头壁纸采用了宇航员卡通图案壁纸,壁纸下有灯带,孩子起夜再也不怕啦。 【厨房】厨房深色的墙面和浅色的橱柜是精致派的标配,美貌和功用之间的双全平衡,柴米油盐的地气和雅人清致 的情趣,皆在设计的呈现之中。 【卫生间】以透明玻璃形式处理卫生间干湿之间的关系,空间通透、连贯又独立。
  • 图片
  • 图片
  • 图片
  • 图片
  • 图片
  • 图片
  • 图片
  • 图片
  • 图片
  • 图片
  • 图片
  • 图片
  • 图片
  • 图片
  • 图片
  • 图片
  • 图片
  • 图片
  • 图片
  • 图片
  • 图片
  • 图片
  • 图片
  • 图片
  • 图片
  • 图片
  • 图片
  • 图片
  • 图片
  • 图片
  • 图片
  • 图片
  • 图片
  • 图片
  • 图片
  • 图片
  • 图片
  • 图片
  • 图片
  • 图片
  • 图片
  • 上一个 下一个
    《金腾奖优秀作品年鉴》 私宅丨地产丨餐饮丨酒店丨办公丨商业丨公共丨产品丨公益丨人气 jintengAWARD(小金_金腾奖组委会) 广州市海珠区琶洲大道68号华新中心21楼
    金腾奖视频号 金腾奖小红书号 监制:闫虹
    统筹:吴佳佳
    运营:朱倩仪 王赫萱 张芷莹 胡岚恩 小金
    新媒体:王贝贝 严洁 侯乐 鹅姐
    经纪:刘译遥 石征 曹凯月
    技术:张桐 黄天佑
    最终解释权归金腾奖主办方所有