Haiya Building, the Pearl River Plaza
作品详情
  • Details of the work 标题横线
    头像或者logo
    图片 易俊超 华浔品味装饰集团特约推荐
    城市:广州市
    公司:
    参赛作品: 珠江广场海雅楼
    空间类型:公寓(150㎡以下)
    个人/公司简介:
    高级室内建筑师 高级住宅软配设计师 从业十多年来,较擅现代、欧式等风格的演绎,尤擅新中式空灵简约的表现手法。 设计理念:自然和谐的家居氛围为上品
    设计说明 | Design Instruction
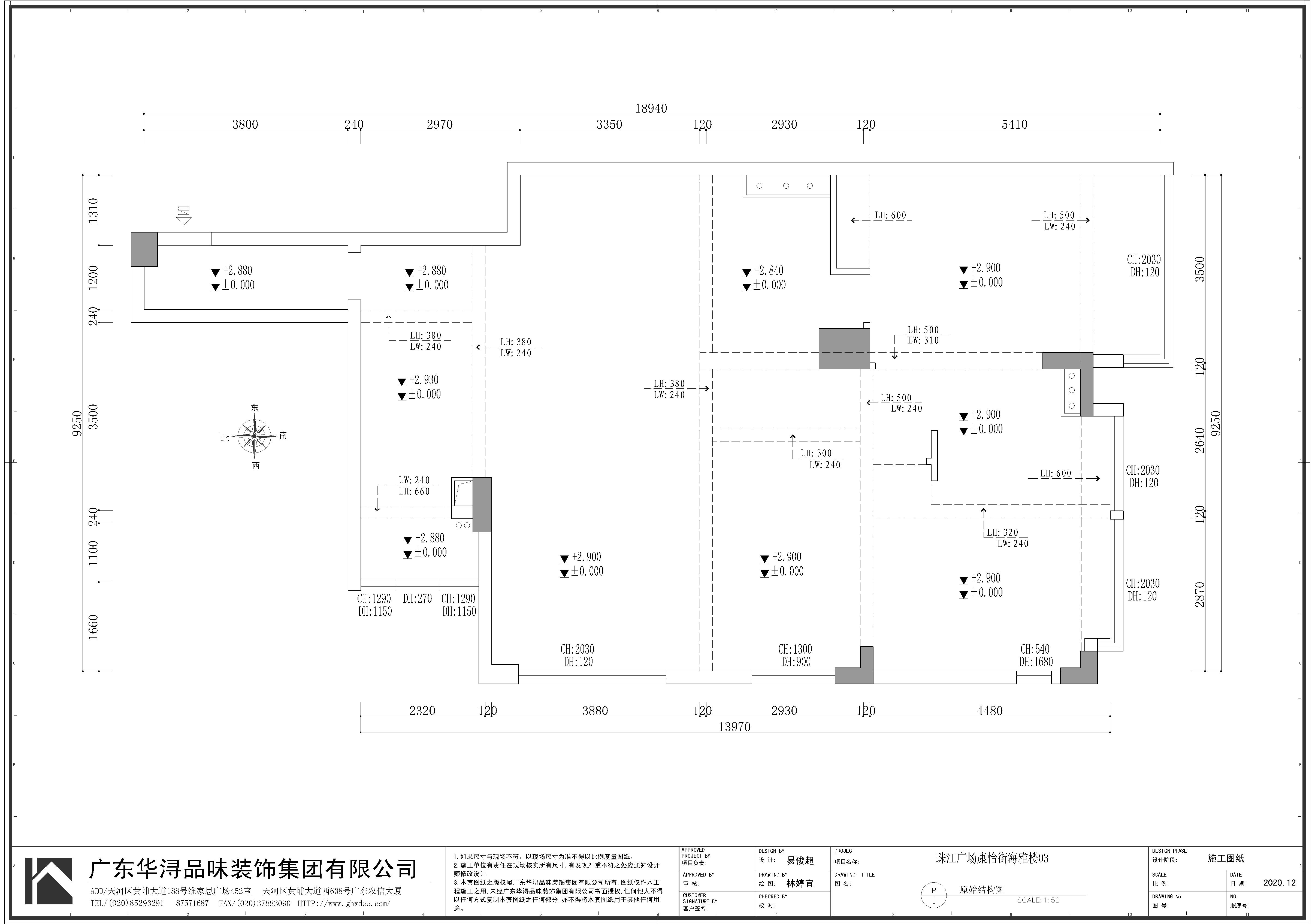
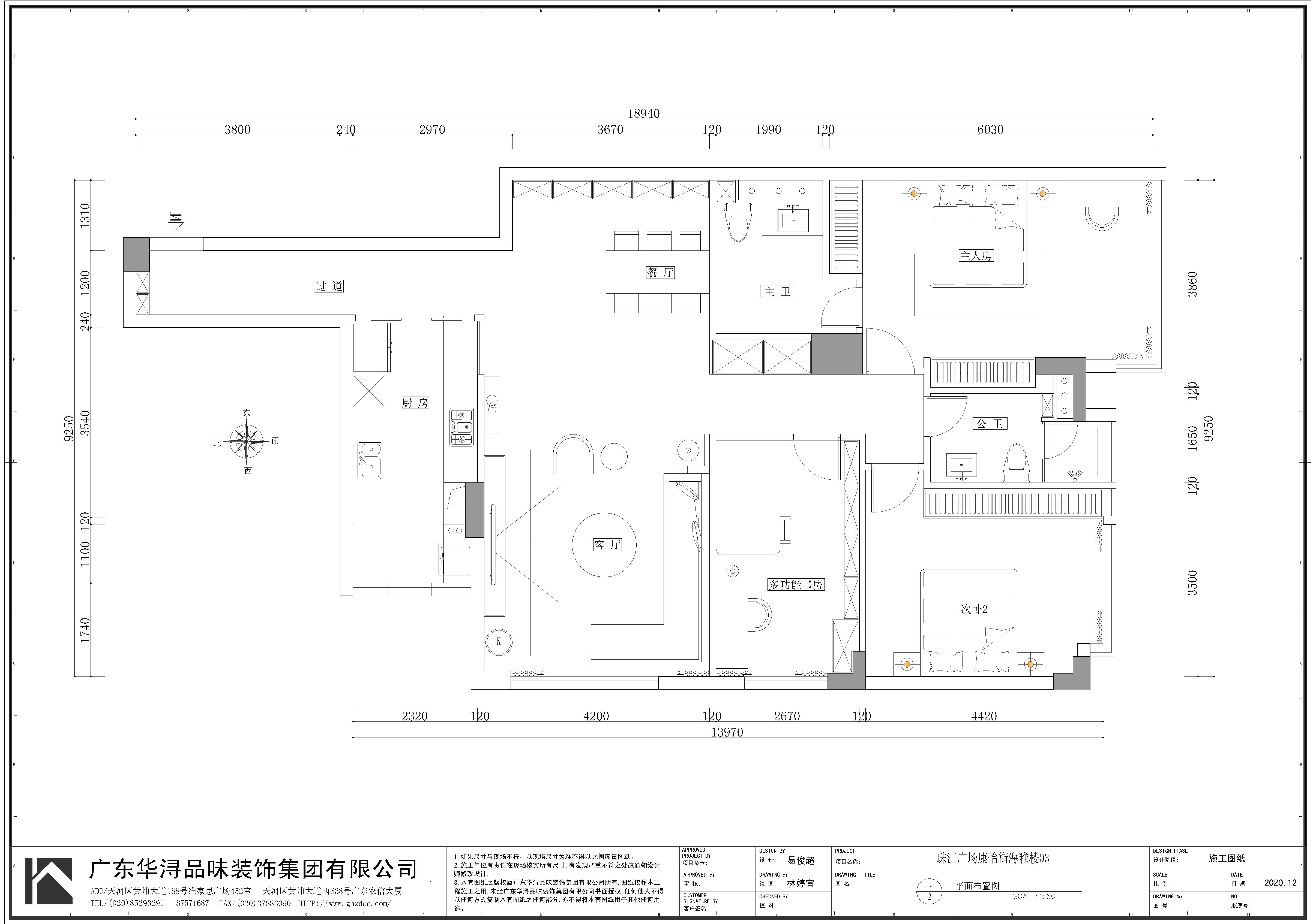
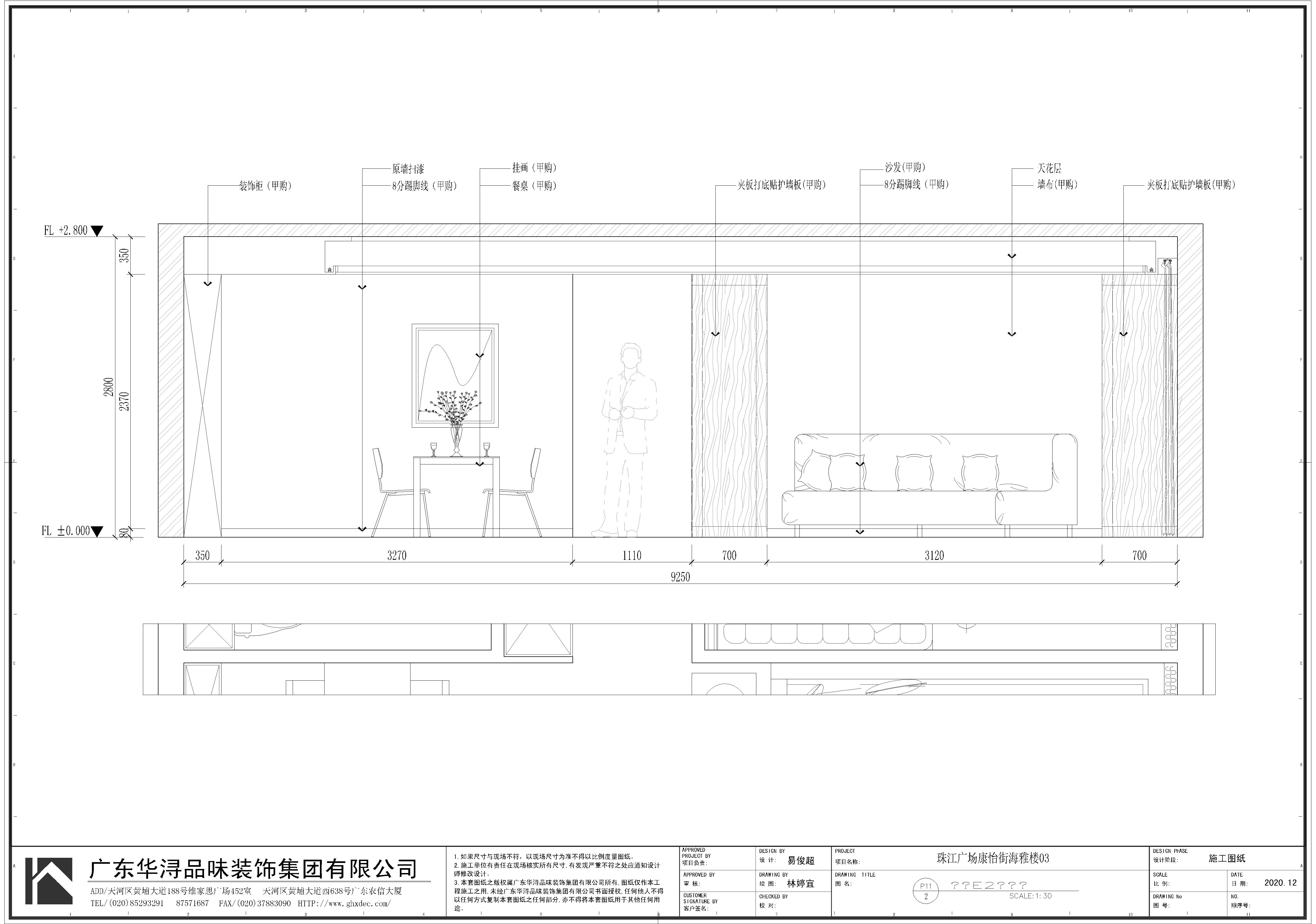
  • 1、整体风格:现代中式 2、主要色彩:米黄、原木色、暖白 3、主要元素:岩板、护墙板、艺术吊灯 4、设计主题:书香门第、通透 标题说明:极简悬浮无积尘土。客户夫妻二人,一位是人类灵魂的工程师广州省实中学的高级教师,一位是救死扶伤的广东省中医院的教授。结合客户的社会身份,故而设计定位为夫妻二人打造出一个书香门第的现代儒居。让二人归家之余,在此空间能够卸去一天的疲乏,放松身心。 5、平面布局说明:原户型入户有一条较长的走道,且因为厨房的墙体阻挡,导致餐厅的采光严重不足,其次原客厅的间距偏窄。结合以上问题,在规划新的平面时,利用几幅古色古香的仿古画,把原入户走廊打造成了文化长廊,缓解了过道压抑的感觉,同时进门瞬间体现了主人的格调。再就是把原来厨房的墙面开了一扇窗,让自然光可以透过厨房到达餐厅,也可以增加厨房跟客餐厅的互动跟趣味性。让整体空间更通透,动线更流畅。
  • 图片
  • 图片
  • 图片
  • 图片
  • 图片
  • 图片
  • 图片
  • 图片
  • 图片
  • 图片
  • 图片
  • 图片
  • 图片
  • 图片
  • 图片
  • 图片
  • 图片
  • 图片
  • 图片
  • 图片
  • 上一个 下一个
    《金腾奖优秀作品年鉴》 私宅丨地产丨餐饮丨酒店丨办公丨商业丨公共丨产品丨公益丨人气 jintengAWARD(小金_金腾奖组委会) 广州市海珠区琶洲大道68号华新中心21楼
    金腾奖视频号 金腾奖小红书号 监制:闫虹
    统筹:吴佳佳
    运营:朱倩仪 王赫萱 张芷莹 胡岚恩 小金
    新媒体:王贝贝 严洁 侯乐 鹅姐
    经纪:刘译遥 石征 曹凯月
    技术:张桐 黄天佑
    最终解释权归金腾奖主办方所有