Chuanyueshiguang
作品详情
  • Details of the work 标题横线
    头像或者logo
    图片 邹茉
    城市:赣州
    公司: 华浔品味装饰集团
    参赛作品: 穿越时光的童话
    空间类型:公寓(150㎡以下)
    个人/公司简介:
    暂无
    设计说明 | Design Instruction
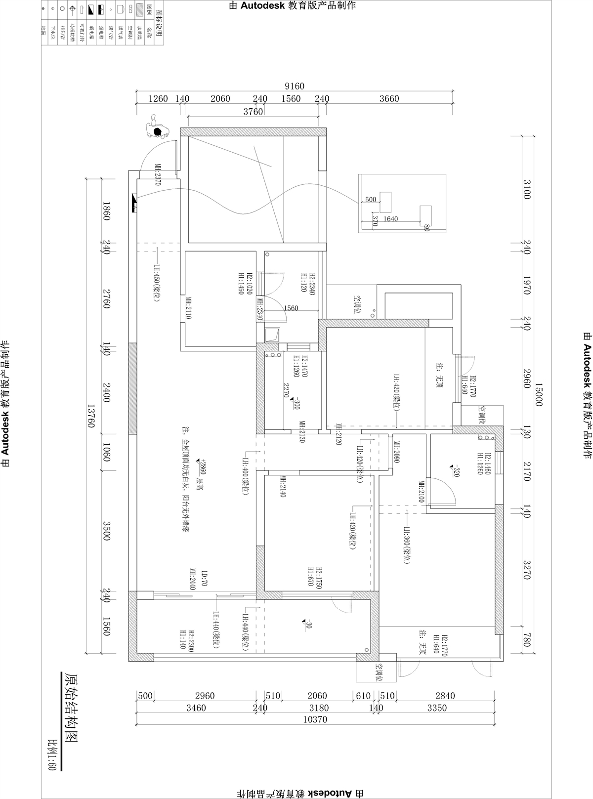
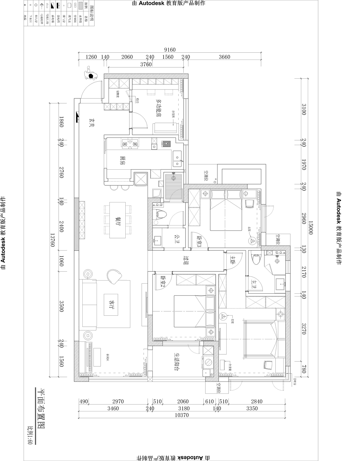
  • 穿越时光的童话,书写梦中的理想国度——第五大道126㎡复古北欧风格实景 童话镇 —————————— “总有一条蜿蜒在童话镇里梦幻的河, 分隔了理想分隔现实, 又在前方的山口汇合, 川流不息扬起水花, 又卷入一帘时光入水。” 生活里小惬意,像是刻板日子里,冒着热气的,浮生半日闲。 这是一场声势浩大的造梦, 业主的逐梦与设计师的筑梦,在现代化都市冰冷的铜墙铁壁下,显得格外动人与温馨。 亮白色与薄荷绿的配色碰撞,像极了夏天烈日碰上冰镇果汁,令人心驰神往地同时带着一丝或酸或甜的清爽,沁人心脾,欢快与灵动气息也随之散发在屋子里的每个角落。 宁静雅致的橄榄绿电视柜干净纯粹,与哑光柔白的沙发自成一体,原木色地板简洁温馨,仿若在将古老的城堡童话里王子与公主的故事娓娓道来。 生活没有标准答案,只要你愿意,你可以是任何样子。 吧台的窗口似是贩卖快乐的驿站,餐厅墙面一直延伸到厨房的的薄荷绿让整个空间充盈着夏天清爽沁心的味儿。 餐桌颜色延续了地板的温馨与淡然,整体空间自然清新不突兀。 拱形门的设计,浪漫又不失唯美,让整体的风格韵味提升到了另一个维度。 仿佛是少年时代的童话城堡,终有一天照进了现实的生活里。 童话里的魔法城堡,装满了童年时代的美梦,沿着幸福的河流穿过城市的喧嚣和人海,蜿蜒而来。 项目地址:恒瑞·第五大道 项目风格:复古北欧 项目面积:126㎡ 设计/施工:华浔品味装饰赣州公司 主创设计:邹茉 郭茜 设计团队:魏崎美 黄辉 项目经理:叶伟殷 摄 影:许鑫 图文编辑/排版:娟子
  • 图片
  • 图片
  • 图片
  • 图片
  • 图片
  • 图片
  • 图片
  • 图片
  • 图片
  • 图片
  • 图片
  • 图片
  • 图片
  • 图片
  • 图片
  • 图片
  • 图片
  • 图片
  • 图片
  • 图片
  • 图片
  • 图片
  • 图片
  • 图片
  • 图片
  • 图片
  • 图片
  • 图片
  • 图片
  • 图片
  • 图片
  • 图片
  • 图片
  • 图片
  • 图片
  • 图片
  • 图片
  • 图片
  • 上一个 下一个
    《金腾奖优秀作品年鉴》 私宅丨地产丨餐饮丨酒店丨办公丨商业丨公共丨产品丨公益丨人气 jintengAWARD(小金_金腾奖组委会) 广州市海珠区琶洲大道68号华新中心21楼
    金腾奖视频号 金腾奖小红书号 监制:闫虹
    统筹:吴佳佳
    运营:朱倩仪 王赫萱 张芷莹 胡岚恩 小金
    新媒体:王贝贝 严洁 侯乐 鹅姐
    经纪:刘译遥 石征 曹凯月
    技术:张桐 黄天佑
    最终解释权归金腾奖主办方所有