changhongyufu
作品详情
  • Details of the work 标题横线
    头像或者logo
    图片 莫琴珠 华浔品味装饰集团特约推荐
    城市:海口
    公司: 广东华浔品味装饰集团海南有限公司
    参赛作品: 长弘御府
    空间类型:公寓(150㎡以下)
    个人/公司简介:
    姓名:莫琴珠 中国高级室内建筑师 中国建筑装饰协会会员 中国高级软装配饰设计师 中国优秀室内设计师 毕业于广东轻工学院环境艺术系 代表作品: 广州:碧桂园、奥林匹克花园… 泉州:明鑫中心、祥景花园… 海南:天海国际别墅、荣域风情小镇、国兴城雅居,国瑞城,观澜湖、鸿洲江山别墅、江南城复式、滨江海岸豪宅、观澜湖、恒大美丽沙别墅、恒大旅游文化城别墅、海航豪庭豪宅… 设计宗旨:设计提升生活品质,热爱生活,让艺术与生活同行,结合业主的真实需求,融合专业技能为每位业主量体裁衣,打造出每位业主的专属风格。 2004年荣获广州羊城杯室内设计大赛季军 2005-2013连续8年荣获华浔”优秀设计师、优秀员工”荣誉称号。 2009年荣获“东鹏”空间优秀奖 2010年荣获海南华浔”优秀员工”荣誉称号。 2011年荣获海南华浔”优秀员工”荣誉称号。 2015年荣获“裕泰.龙湖湾”空间设计装修争霸赛荣获“最佳优秀设计师“荣誉称号 2015年荣获海南华浔“团队奖”荣誉称号 2016年荣获(海南)室内与平面设计总评榜:年度优秀公寓空间设计奖  2016荣获“高级软装配饰设计师“荣誉称号 2018年荣获海南华浔”优秀设计师、优秀员工”荣誉称号。 2019荣获海南华浔”签单开工双冠王”荣誉称号。 2019荣获华浔“品牌守护者”荣誉称号 2020荣获十大空间设计“金住奖” 2020荣获“品牌守护者”“年度感动之星”荣誉称号 2021荣获“金马克”年度陈设艺术奖 2021荣获华浔“品牌守护者”荣誉称号 2021荣获华浔“服务之星”荣誉称号 2022荣获华浔“品牌守护者”荣誉称号 2022荣获华浔“设计之星”荣誉称号
    设计说明 | Design Instruction
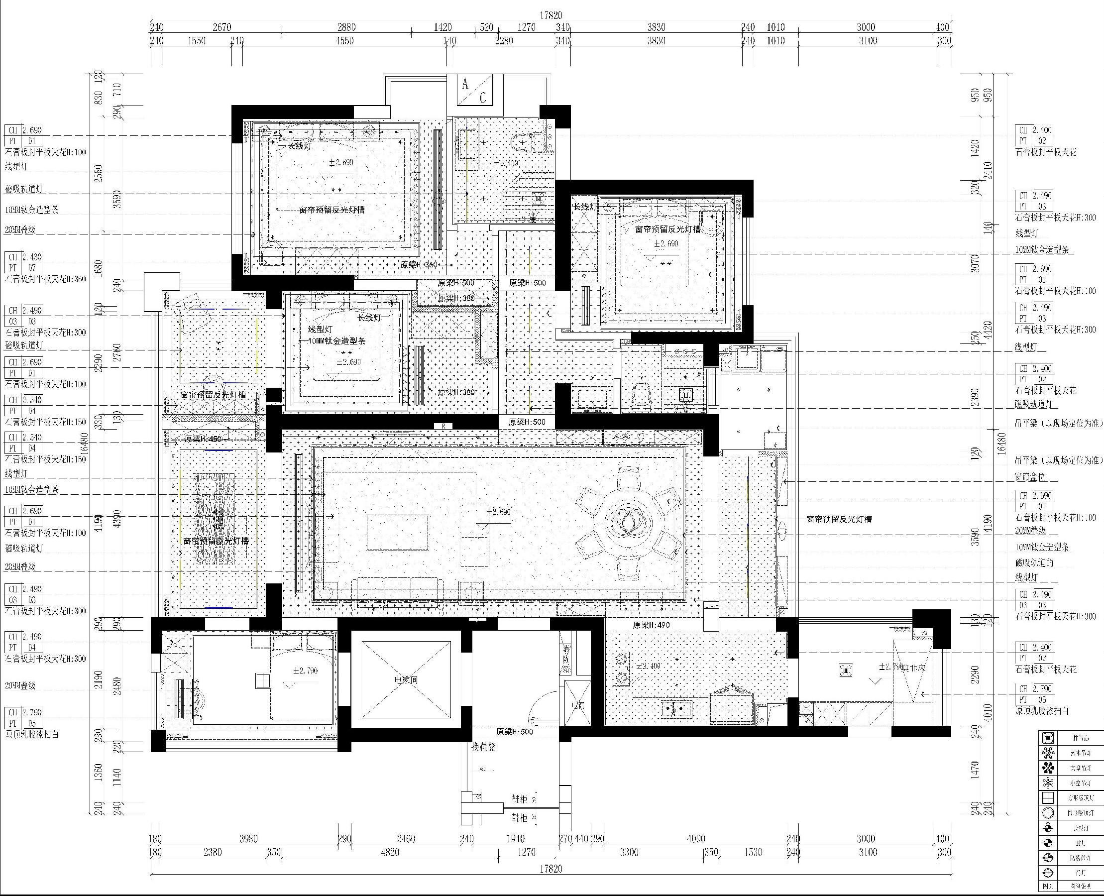
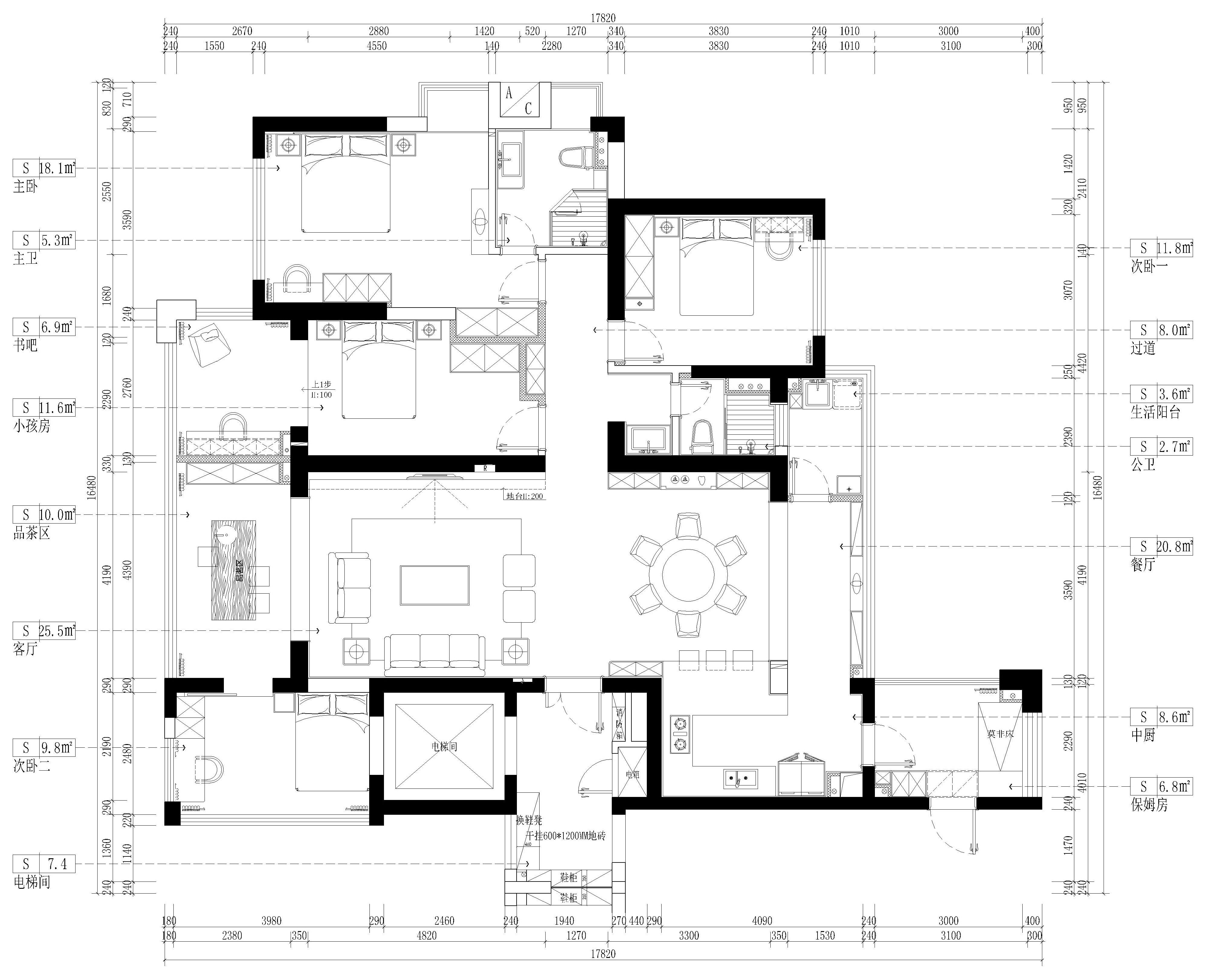
  • 项目说明 项目设计:莫琴珠(海口华浔) 项目地址:海口南沙路长弘御府3栋1单元 项目面积:158㎡ 项目户型:5室2厅1厨2卫 设计风格:现代轻奢 设计说明:本案业主 为一对年轻夫妇,两个儿子,大儿子13岁,小儿子8岁,老人偶尔来小住,男业主从商,女业主照顾孩子陪读! 客厅空间 黑白之美 黑白主色调高级大气,端庄、不失木色及其他亮色点缀 家具设计奢而不繁、 干净利落的线条和高级的轮廓感,搭配亮色沙发,深色柜体和金属玻璃框,色彩调和,打造超高辨识度的现代客厅。 阳光透过一整片落地窗洒下,清爽雅致的茶台,与装饰独特的展示柜共同组成了家中的休闲一角 开放式厨房接连小酒吧可以是简单的三两瓶酒,也可以是满当的器皿和酒杯,带来的快乐都是相同的。大理石与餐桌 都是灰白两色,简约又和谐。 静谧高级 卧室空间 不同于客厅黑白色调,卧室更显温馨恬静,亮色床头,既有设计感又不过分高调,造了一种高级又舒适的睡眠氛围。 开阔视野浴室空间 家中最为重视的浴室。和客餐厅格调恰好互补,镜柜+洗手台底部留空的设计,让整个空间更显通透。
  • 图片
  • 图片
  • 图片
  • 图片
  • 图片
  • 图片
  • 图片
  • 图片
  • 图片
  • 图片
  • 图片
  • 图片
  • 图片
  • 图片
  • 图片
  • 图片
  • 图片
  • 图片
  • 图片
  • 上一个 下一个
    《金腾奖优秀作品年鉴》 私宅丨地产丨餐饮丨酒店丨办公丨商业丨公共丨产品丨公益丨人气 jintengAWARD(小金_金腾奖组委会) 广州市海珠区琶洲大道68号华新中心21楼
    金腾奖视频号 金腾奖小红书号 监制:闫虹
    统筹:吴佳佳
    运营:朱倩仪 王赫萱 张芷莹 胡岚恩 小金
    新媒体:王贝贝 严洁 侯乐 鹅姐
    经纪:刘译遥 石征 曹凯月
    技术:张桐 黄天佑
    最终解释权归金腾奖主办方所有