Sensing temperature and returning to nature
作品详情
  • Details of the work 标题横线
    头像或者logo
    图片 曾若华 华浔品味装饰集团特约推荐
    城市:广州市
    公司: 华浔品味装饰
    参赛作品: 感知温度,回归自然
    空间类型:公寓(150㎡以下)
    个人/公司简介:
    高级设计师 毕业于中山大学,在8年设计的职业生涯里,曾到国内外多个设计圣地深造和学习,多年沉淀磨砺出成熟的风格,严谨的设计思维,擅长现代主义风格和轻奢风格,注重人与空间、空间与自然,形态与色彩的平衡关系,着力传达出设计的意境及本位美。
    设计说明 | Design Instruction
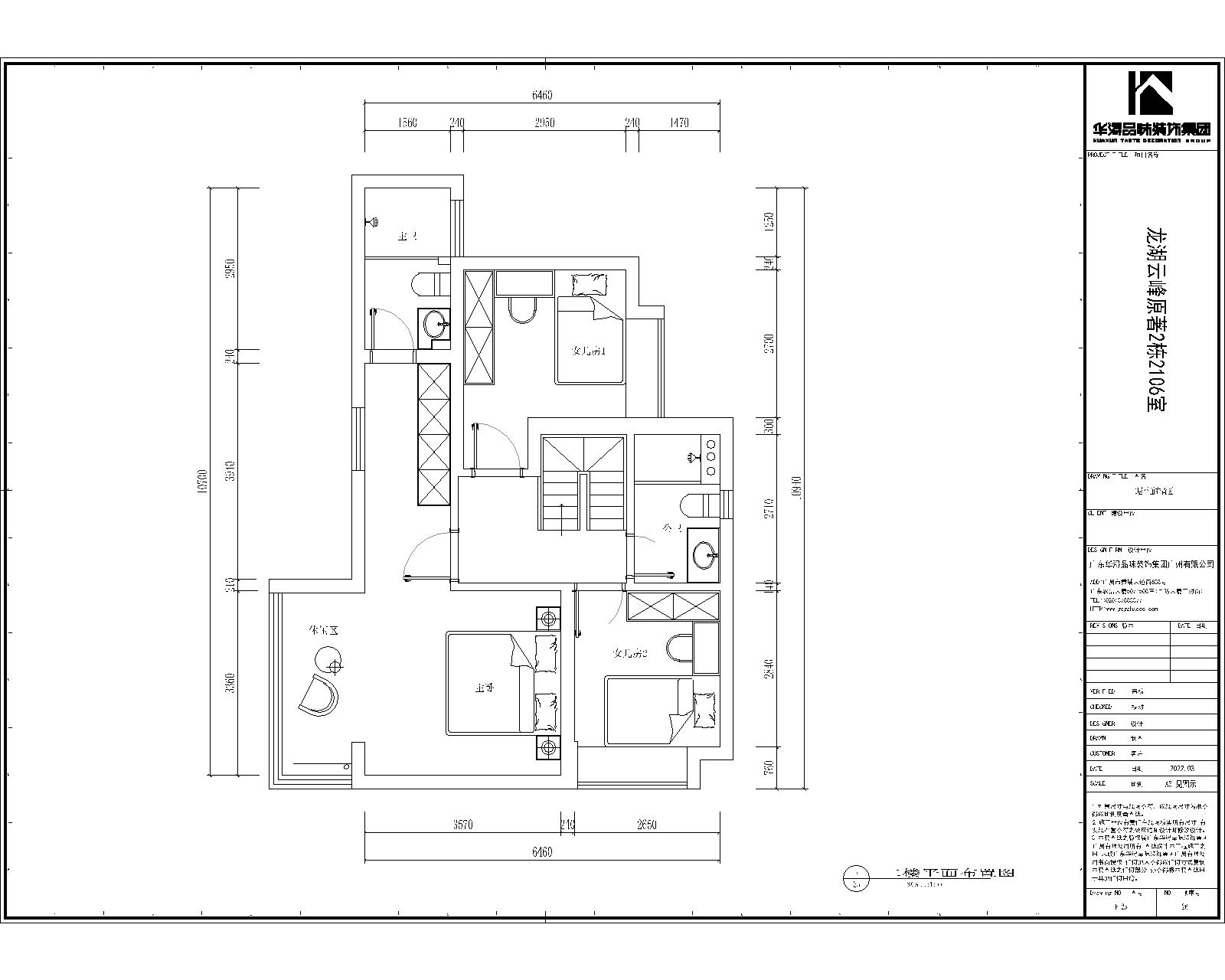
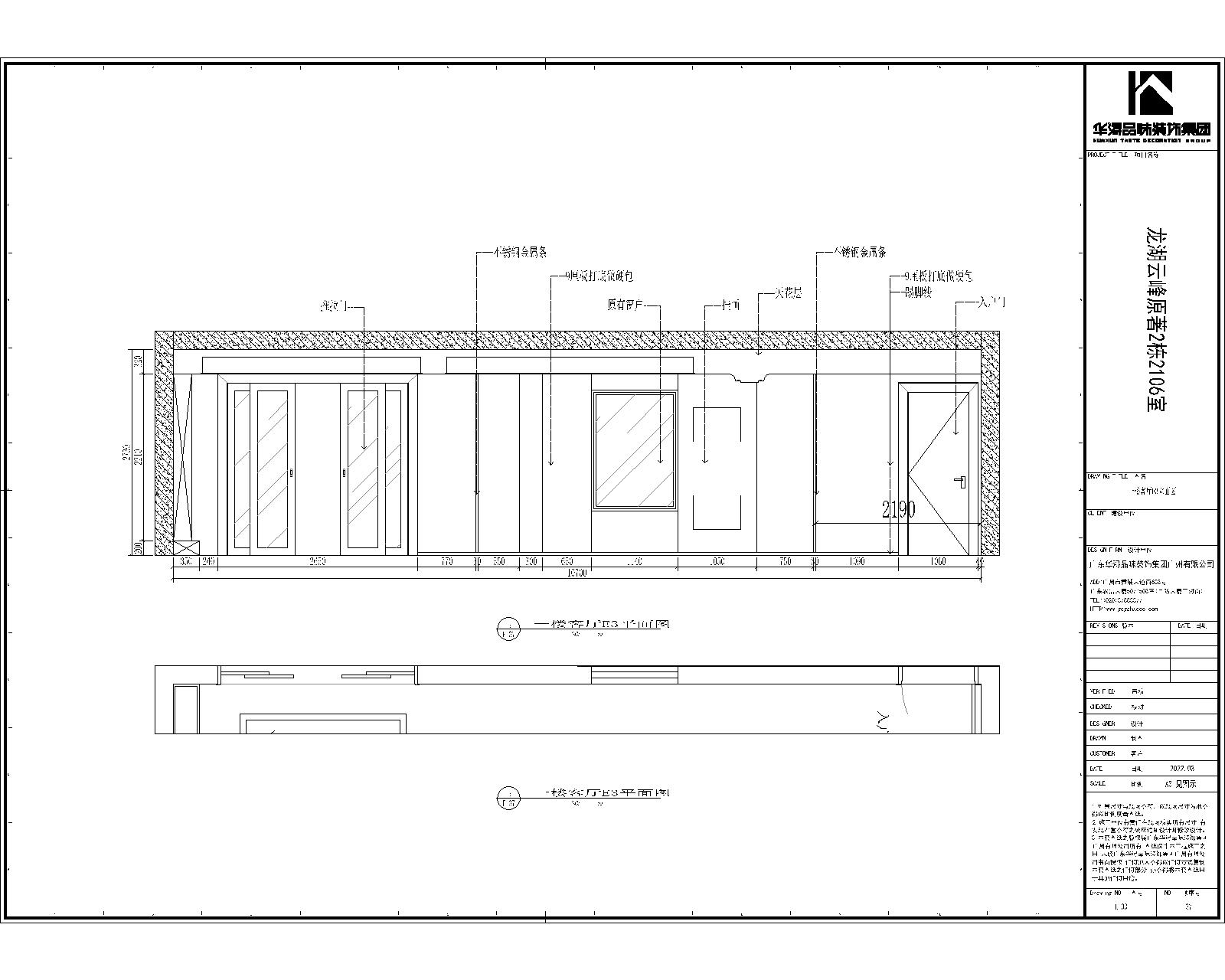
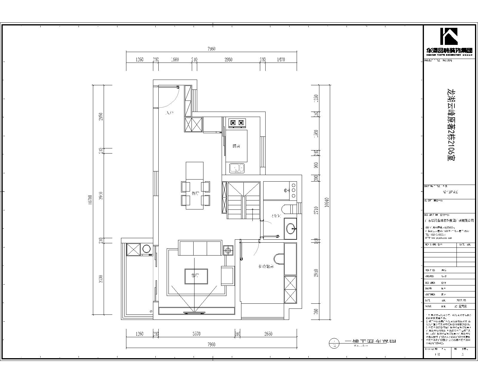
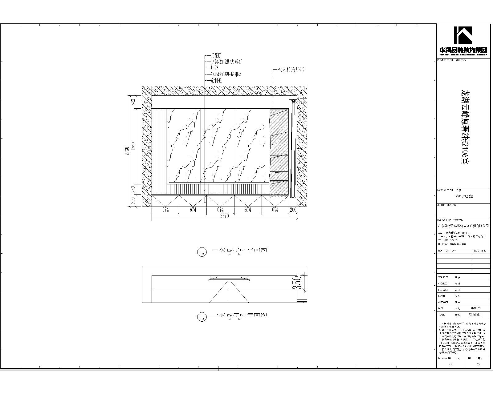
  • 项目坐落于广州市黄埔区,亲临粤秀山,囊括城市生活与优越自然资源,私享生活的快与慢、简与奢,形成一座水乳交融的水岸花园。以“为当代城市居所注入心灵度假生活”为核心理念,展示了美好生活的不同打开方式。本案以四口之家为设计原型,男主人是事业型强者,女主人是活泼有亲和力的财会工作者,有两个可爱的小公主,串联起一个温馨幸福的家庭,分享一个有温度的舒适之家。 原户型的玄关、餐厅、厨房细长狭小因此做了格局的改造,将玄关与餐厅做了一体设计,半开放式厨房干净透亮,餐厅区域结合岛台设计,做家庭的营养补充站。 简洁有序的居家氛围,离不开精细化的美学收纳体系。复合型空间,看似随意,实则精心设计。玄关处、电器柜、橱柜、电视墙、酒柜等,都将收纳魔法演绎到极致。 真正的热爱生活不是简单的断舍离或模仿式的极简主义,而是化身收纳师,将凌乱无序归于井井有条,做生活的主人,直面内心的真实需求与生活习惯,提升生活质量,构建属于自己的生活美学。 整体空间以白色为主色调,搭配金属色与木色,温柔舒适的包裹感如烟弥散,恰似秋日的温存唤醒居家的愉悦与归属感。材质强调纯粹性,以原木、石材等为主,自然材质与现代家具巧妙融合与对话,简洁中透出生活的温度,沐浴着日光,自然里的优雅与诗意慢慢舒展开来。
  • 图片
  • 图片
  • 图片
  • 图片
  • 图片
  • 图片
  • 图片
  • 图片
  • 图片
  • 图片
  • 图片
  • 图片
  • 图片
  • 图片
  • 图片
  • 图片
  • 图片
  • 图片
  • 图片
  • 图片
  • 图片
  • 图片
  • 图片
  • 图片
  • 图片
  • 图片
  • 上一个 下一个
    《金腾奖优秀作品年鉴》 私宅丨地产丨餐饮丨酒店丨办公丨商业丨公共丨产品丨公益丨人气 jintengAWARD(小金_金腾奖组委会) 广州市海珠区琶洲大道68号华新中心21楼
    金腾奖视频号 金腾奖小红书号 监制:闫虹
    统筹:吴佳佳
    运营:朱倩仪 王赫萱 张芷莹 胡岚恩 小金
    新媒体:王贝贝 严洁 侯乐 鹅姐
    经纪:刘译遥 石征 曹凯月
    技术:张桐 黄天佑
    最终解释权归金腾奖主办方所有