sanyiniaozhihuizhanting
作品详情
  • Details of the work 标题横线
    头像或者logo
    图片 萧晨曦 华浔品味装饰集团特约推荐
    城市:海口
    公司: 海南华浔品味装饰
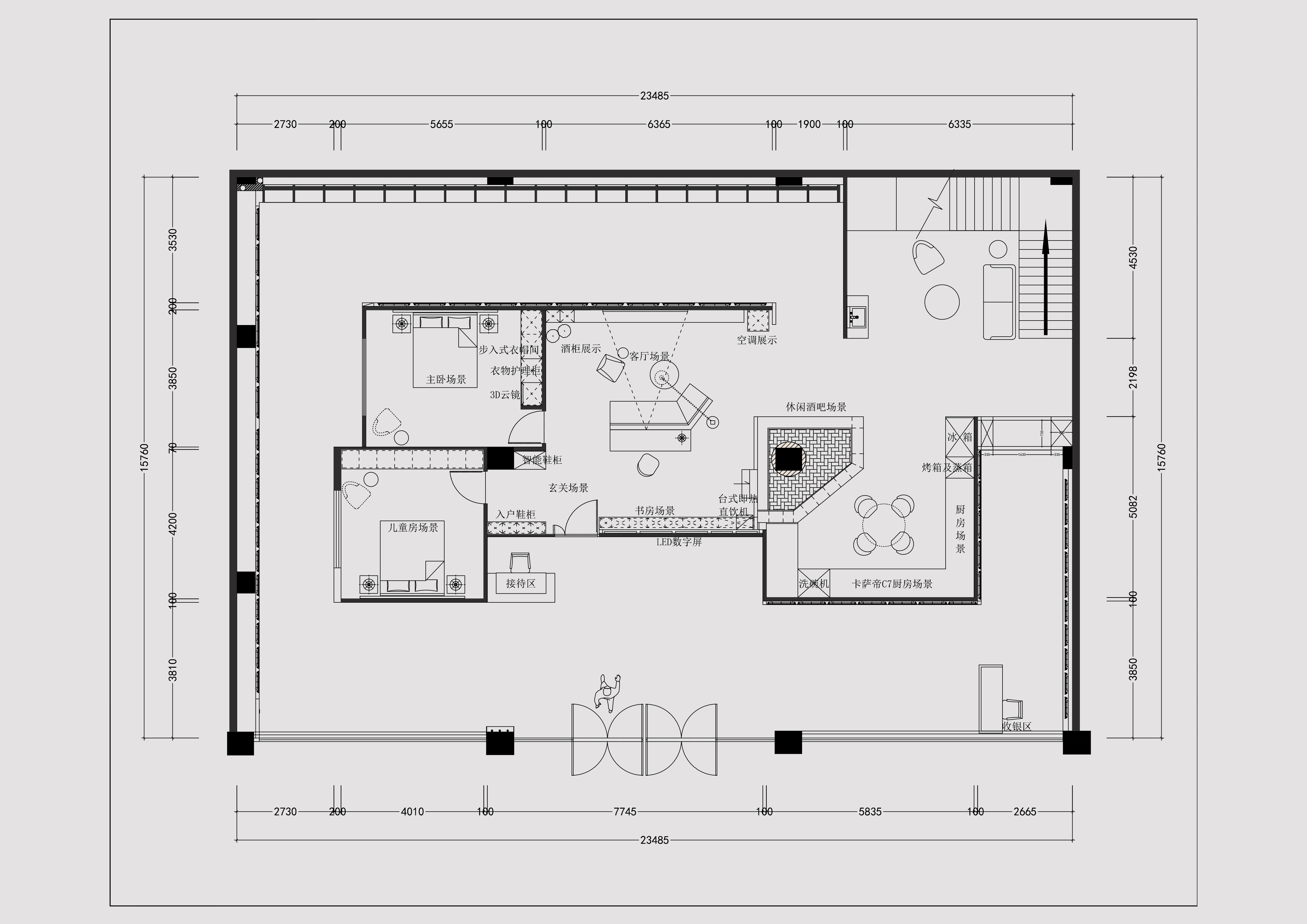
    参赛作品: 三翼鸟智慧展厅&卡萨帝电器展厅
    空间类型:办公
    个人/公司简介:
    萧晨曦 海南华浔品味装饰设计总监, H&A米兰国际设计院海南分院副院长, 尺墨设计创始人之一 2008-2010任深圳康之居装饰南昌分公司专家设计师 2010-2013年任南昌雅方装饰公司首席设计师 2014至2016任华浔品味装饰公司主任设计师 2016至2018任华浔品味装饰公司首席设计师 2018至今任华浔品味装饰公司设计总监 2013年赴景德镇陶瓷古镇学习陶瓷文化 2015年提出新亚洲风格,并学习海南岛派设计风格 2016年获得艾特奖国际空间设计大奖优秀奖 2017年赴东欧近距离学习欧式建筑---哥特风格建筑 同年获得“世界青年设计师中国区百大青年设计师”称号 2018年获得海南省室内装饰协会“新锐精英设计师”荣誉称号 同年7月赴英国学习零距离英式建筑---参观学习温莎古堡,感受英式文化 2019年获奖荣誉: WYDF世界青年设计师大中华区百大设计师 亚太空间“最具原创设计师”奖 红棉中国设计奖·“最美时尚空间设计奖” 年度设计新青年奖(2019-2020) 2021年荣誉: 4040中国(省区)设计杰出青年 G+全球设计大赛海口十佳 2021金住奖·中国(海口)十大居住空间设计师 获第六届金马克品味别墅Top50 获五届红鼎创新大赛红鼎优秀作品奖 设计理念: 设计源于生活,取之生活,用于生活,升华生活。 作品案例: 别墅类:泰达天海国际,碧桂园中央海岸,长弘御墅,恒大天寰湾,明华小区,三水澜湾,南光西海湾,黄金海岸,美兰高尔夫等; 样板房:海阔天空国瑞城,耀江西岸公馆,蓝城一号,蓝城印象,海航豪庭,滨江海岸等; 公共商业空间:天使水榭中式茶楼,法式甜品店,潮8时尚造型基地,上饶中西餐厅,江西省国骤车行、南昌市巨鑫网吧、南昌市红谷滩中环网络会所等
    设计说明 | Design Instruction
  • 项目名称:三翼鸟智慧展厅&卡萨帝电器展厅 创作时间:2022年 姓名:萧晨曦 指导老师:萧晨曦 专业职称:高级室内设计师 送展单位:广东华浔品味装饰集团海南有限公司 参赛作品说明:本案设计作品为两层,一层为三翼鸟智慧展厅,涵盖了多种场景下的不同空间,用于居家智能展示,提升体验感,增加生活品质;二层为卡萨帝家电展厅,从冰箱、电视、洗衣机到衣帽间的智能穿衣镜,再到热水器、中央空调等等家里所有的电器可以说一应俱全、应有尽有,在未来化、科技化的产品竞争中以及生活中独领风骚。 设计理念:一楼以居家的空间展示各个区域的智能化场景,让体验者有最佳的视觉感,空间感,触感及体感,让智能与生活充分融合。 二楼以深色为背景色,强化产品视觉焦点,让客户把注意力更集中于产品上,关注产品的功能与优势。
  • 图片
  • 图片
  • 图片
  • 图片
  • 图片
  • 图片
  • 图片
  • 图片
  • 图片
  • 图片
  • 图片
  • 图片
  • 图片
  • 图片
  • 图片
  • 图片
  • 上一个 下一个
    《金腾奖优秀作品年鉴》 私宅丨地产丨餐饮丨酒店丨办公丨商业丨公共丨产品丨公益丨人气 jintengAWARD(小金_金腾奖组委会) 广州市海珠区琶洲大道68号华新中心21楼
    金腾奖视频号 金腾奖小红书号 监制:闫虹
    统筹:吴佳佳
    运营:朱倩仪 王赫萱 张芷莹 胡岚恩 小金
    新媒体:王贝贝 严洁 侯乐 鹅姐
    经纪:刘译遥 石征 曹凯月
    技术:张桐 黄天佑
    最终解释权归金腾奖主办方所有