Junhuishijia
作品详情
  • Details of the work 标题横线
    头像或者logo
    图片 陈礼林
    城市:广州
    公司: 华浔品味装饰集团
    参赛作品: 君汇世家
    空间类型:公寓(150㎡以下)
    个人/公司简介:
    设计师:陈礼林 华浔品味装饰集团广州公司设计总监 个人简介: 中国室内注册设计师 中国装饰协会会员 高级室内建筑师(证号: A054711SA110413) 个人介绍: 毕业于九江大学室内设计专业,后进修于清华大学美术学院,台湾亚洲大学新包豪斯学院。 从事设计行业18年以上; 2005年加入广东华浔品味装饰集团广州公司 荣誉奖项: 2021年度荣获“年度优秀色彩空间设计”。 2021年荣获”包豪斯现代设计奖(2021-2022)“年度观点人物奖”。 2020年荣获第四届红鼎奖暨首届中国家装产业创新大赛优秀设计师。 2020年获得年度“华浔开工王”。 2019年度荣获“全国金牌设计师”。 2019年荣获”美雅奢空间设计先锋人物奖”。 2019年度荣获”华语设计领袖榜100位卓越设计人物奖”。 2019年度荣获“年度优秀色彩空间设计”。 2005-2013年连续多年被公司评为“全国华浔优秀员工”。 2012-2013年连续两年被评为“全国金牌设计师”。 2011年全国华浔品味装饰首届金马克杯设计大赛“三等奖”。 2011年广州市建筑装饰设计大赛银奖。 2010年君汇世家案例被南方电视台选做“家天下”栏目的样板工程项目报道。作品多次发表于羊城晚报、城市住宅、 家居主张、 新居有礼等杂志。 设计理念: 设计源于生活,注重于生活中的细节,敞开心扉,大胆的创新,精雕细琢,和业主一起携手打造和谐,舒适,有品味的精品空间。让您生活中少点烦恼,多点快乐。
    设计说明 | Design Instruction
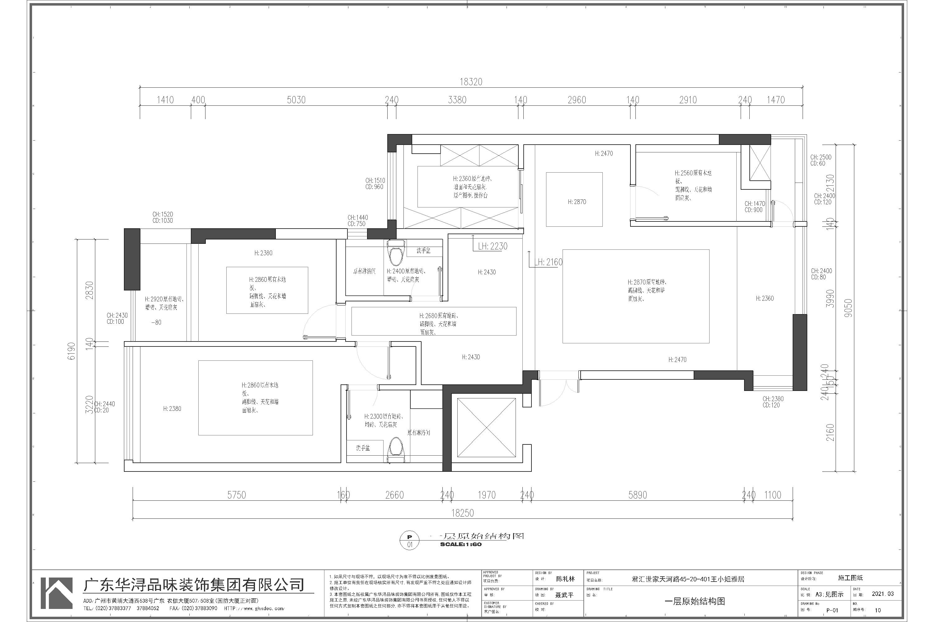
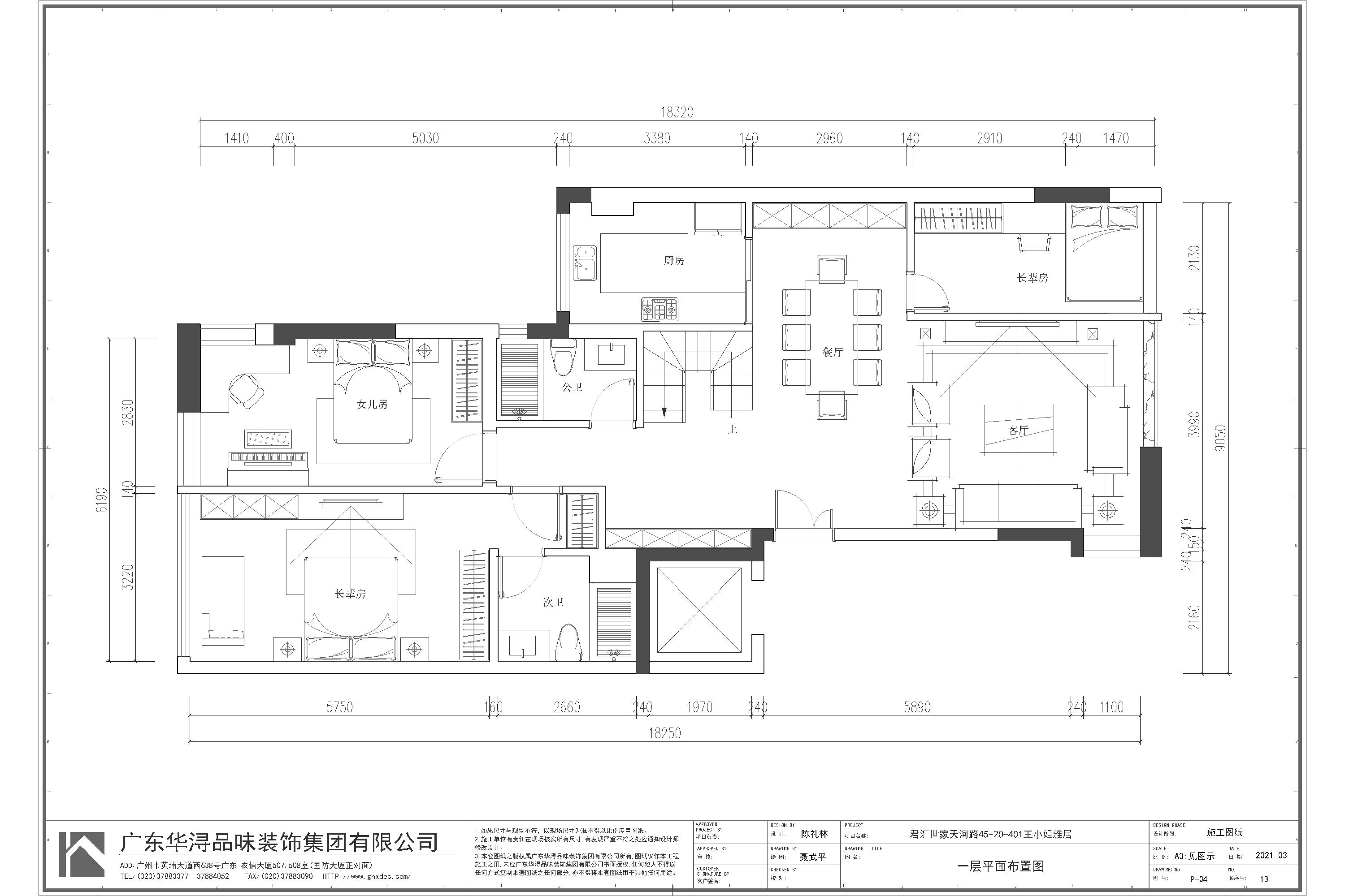
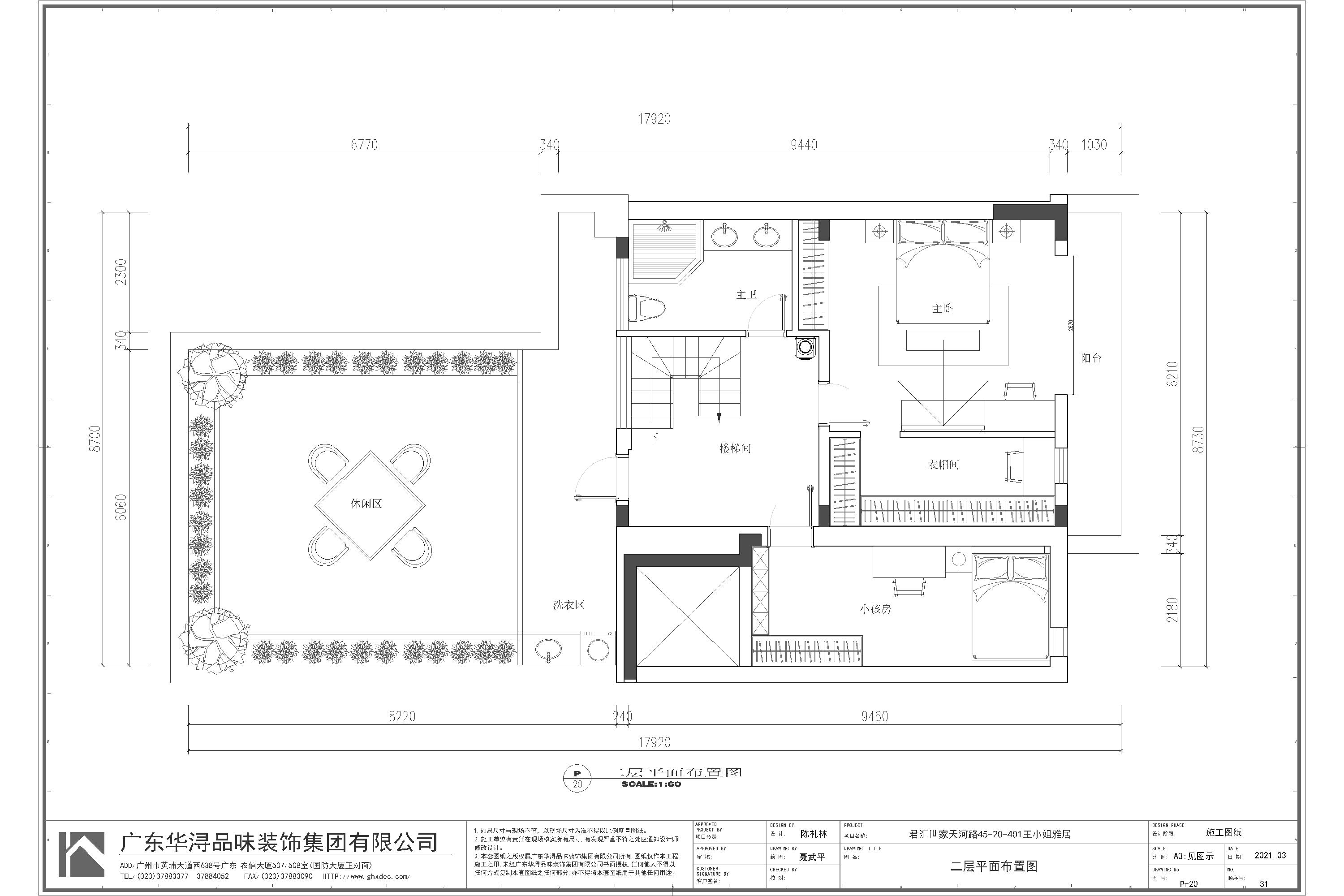
  • 家,不仅是居所 更是心灵的港湾,人生的驿站 是感情的归宿,灵魂的延续 是充满烟火气息的,其乐融融 是能让你在工作之余卸下疲惫,让心灵栖息的好地方。 本案是一套300㎡的复式套房,整个房屋以现代风为基调,设计师利用自然光线、灯光搭配,为室内带来通透明亮的视觉感受,搭配了金属制品的元素,呈现出轻奢的质感,以简单的方式创造出温暖与舒适。在色调上,以米白色为基底,整体搭配趋向于简约温暖的,打造出了一种舒适优雅、淡然惬意的氛围。设计师在客厅、餐厅等地方大量使用了留白艺术,破解了审美疲劳,留给主人无尽的想象空间。空间储物上合理利用,电视墙的处理即可收纳又可摆放装饰品,使住宅有条不紊的居住环境。 客厅的整体设计简约大方,极简的四周边吊,时尚舒适的沙发,金属吊灯与筒灯结合,在深色窗帘和装饰品的点缀下空间显得活泼明快。电视背景墙底部留空藏灯带,见光不见灯,空间悬浮感得到体现,细节满分,更显高级! 封闭式厨房,选择黑框透明玻璃门,简约立体。厨房内采用U型布局,设计线条流畅,一气呵成,注重细节和实用性,将电器嵌入橱柜,保持厨房的整洁,增加了空间的收纳。 延续了整体的简约优雅,金属环形吊灯优雅垂落于餐桌之上,颜色与细腿餐椅有一个相呼应,让整个餐厅多了几分轻奢和质感,更是给人一种温馨舒适的感觉。。餐厅和厨房之间用玻璃推拉门作为隔断,餐桌旁侧做了餐边柜,留空部分可作为展示搁架,把每个空间都完美的利用上。一整面墙的储物柜设计,满足收纳与展示的功能,利用色调变化与柜内装饰品的搭配,让画面更有层次。米白色和深棕色是一种温馨的搭配,明朗又不过于显眼。利用空间及采光让整个空间更加阳光清新,极简线条天花板暗藏灯光带,采用书桌衣柜于一体的形式,满足孩子衣物收纳和学习空间的需求。每一个女孩都有一个公主梦,运用嫩嫩的粉色,暖白色打造不经意的温暖,营造温暖梦幻的童话氛围。天蓝色床头柜与可爱壁画、玩具等就像是生活在动画世界里一样,照进孩童稚嫩又恬静的小小心灵,窗边的钢琴更是多了些娱乐空间。 没有过多装饰,以舒适为主,一面到顶的衣柜,延续房间整体的色调,在背景墙和电视柜做一些别出心裁的床头饰品,装点不一样的优雅。房间采用边沿吊顶,让空间显得有层次,并借顶部 “留白”的空间让疲惫轻松卸下,享受难得安宁。 优美的线条,优雅而干净,简约的线条不简单的设计感,干净利落的质感,是对生活品质的追求也是对生活态度的坚持。这风格你喜欢吗?
  • 图片
  • 图片
  • 图片
  • 图片
  • 图片
  • 图片
  • 图片
  • 图片
  • 图片
  • 图片
  • 图片
  • 图片
  • 图片
  • 图片
  • 图片
  • 图片
  • 图片
  • 图片
  • 图片
  • 图片
  • 图片
  • 图片
  • 图片
  • 图片
  • 图片
  • 图片
  • 图片
  • 图片
  • 图片
  • 图片
  • 图片
  • 图片
  • 图片
  • 图片
  • 图片
  • 图片
  • 图片
  • 图片
  • 图片
  • 图片
  • 图片
  • 图片
  • 图片
  • 图片
  • 图片
  • 图片
  • 图片
  • 上一个 下一个
    《金腾奖优秀作品年鉴》 私宅丨地产丨餐饮丨酒店丨办公丨商业丨公共丨产品丨公益丨人气 jintengAWARD(小金_金腾奖组委会) 广州市海珠区琶洲大道68号华新中心21楼
    金腾奖视频号 金腾奖小红书号 监制:闫虹
    统筹:吴佳佳
    运营:朱倩仪 王赫萱 张芷莹 胡岚恩 小金
    新媒体:王贝贝 严洁 侯乐 鹅姐
    经纪:刘译遥 石征 曹凯月
    技术:张桐 黄天佑
    最终解释权归金腾奖主办方所有