haiyieryuan
作品详情
  • Details of the work 标题横线
    头像或者logo
    图片 余乐 华浔品味装饰集团特约推荐
    城市:海口
    公司: 海南华浔品味装饰
    参赛作品: 海医二院
    空间类型:公寓(150㎡以下)
    个人/公司简介:
    09年福建福清名匠设计师 15年江西吉安星艺任职首席设计师 16年吉安三星装饰任职设计组长 18年海南海口凯文设计任职设计总监 19年海南海口华浔设计师 设计荣誉: 13年荣获福建福清精英室内设计师 14年注册室内设计师 16年荣获江西吉安(滨江首府)平面布局设计三等奖 16年加入江西吉安设计协会会员 18年加入H&A米兰国际设计海南分院高级设计师 21年金马克室内设计大赛年度格调住宅类TOP50 设计感悟:所有的设计都来至于业主内心对家的憧憬,我们在千万种选择中去芜存菁,设计出符合业主自身的品味与灵魂的空间 设计案例:海长流三期、保利中央海岸、吾悦广场、海航城、海航豪庭北苑二期、富力盈溪谷、昌江自建别墅、滨海幸福里、海医二院、富力首府.....
    设计说明 | Design Instruction
  • 楼盘: 海医二院 风格: 奶油风 设计理念: 业主在自贸岛人才引进的政策吸引下,来到了自由贸易港。男业主是全国知名医生,女业主高级知识分子,一个女儿子在国外学习,平时夫妻二人居住。 本案是精装员工宿舍,因不符合业主的审美需求和功能布局需求。经过沟通后重新进行功能规划,扩大厨房空间增加厨房岛台,增加收纳空间。满足业主的功能需求,设计上满足业主的精神需求。
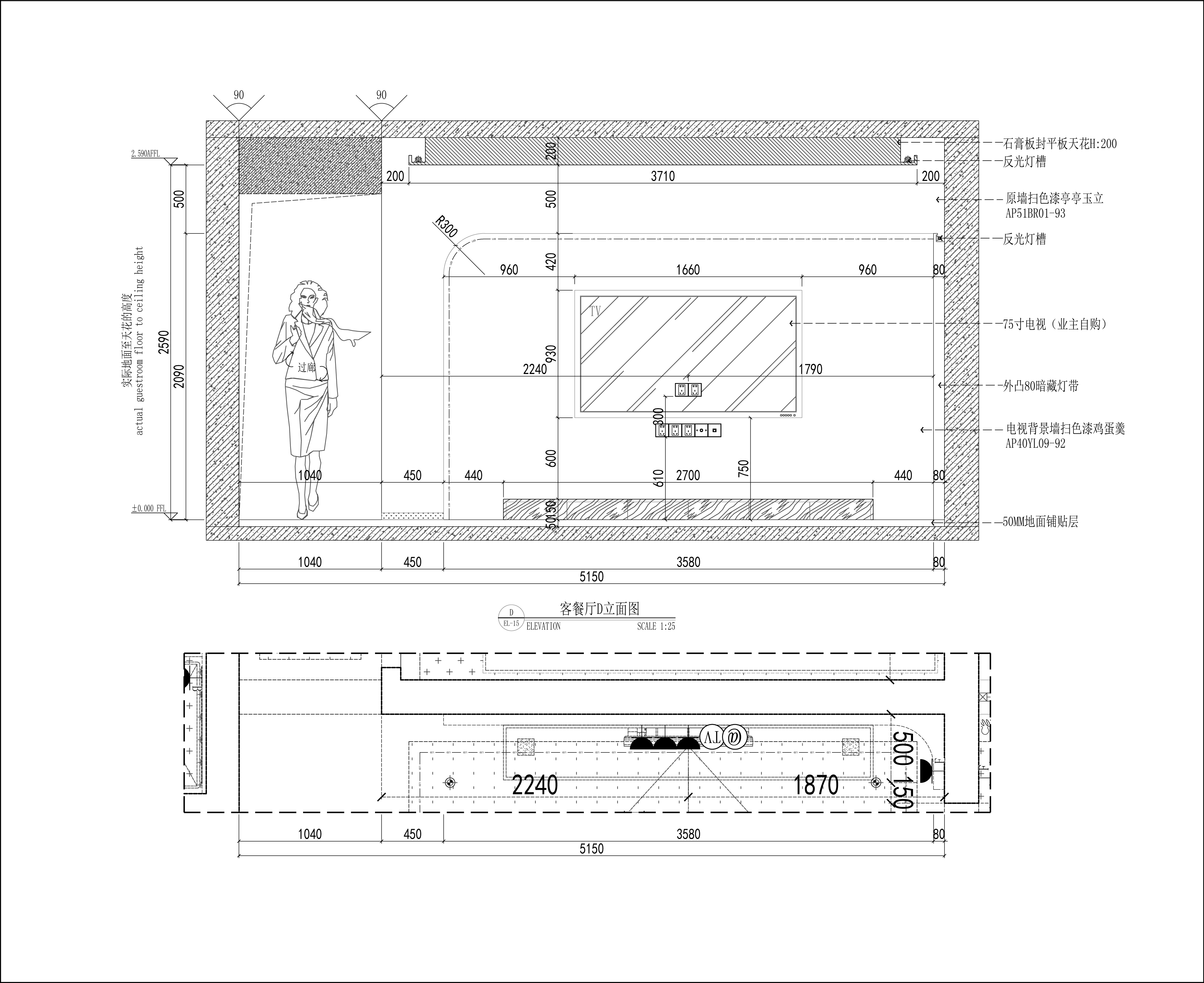
  • 图片
  • 图片
  • 图片
  • 图片
  • 图片
  • 图片
  • 图片
  • 图片
  • 图片
  • 图片
  • 图片
  • 图片
  • 图片
  • 图片
  • 图片
  • 图片
  • 图片
  • 图片
  • 图片
  • 图片
  • 上一个 下一个
    《金腾奖优秀作品年鉴》 私宅丨地产丨餐饮丨酒店丨办公丨商业丨公共丨产品丨公益丨人气 jintengAWARD(小金_金腾奖组委会) 广州市海珠区琶洲大道68号华新中心21楼
    金腾奖视频号 金腾奖小红书号 监制:闫虹
    统筹:吴佳佳
    运营:朱倩仪 王赫萱 张芷莹 胡岚恩 小金
    新媒体:王贝贝 严洁 侯乐 鹅姐
    经纪:刘译遥 石征 曹凯月
    技术:张桐 黄天佑
    最终解释权归金腾奖主办方所有